湖北十堰张湾区的焦先生自己是做建筑工程的,自己买了一套178平米的房子,去年12月份交的房子,自己就琢磨着搞中式装修,应为他自己喜欢红木家具,今年开年3月份就动手装修了,请的装修公司设计的。
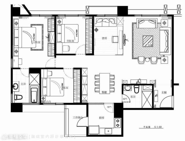
房子的整体平面图
跟装修公司确定了装修风格以后,就要考虑到红木家具,到选材这一块儿他就纠结了,到底是选择红酸枝,还是缅甸花梨木,最终他老婆喜欢浅颜色的,最终选择了缅甸花梨木,170平米的全部配缅甸花梨的,历时3个月的装修,终于完成了,把家具配上特别有感觉,下面是他分享的一些家里图片,大家可以看看,看完评价一下是不是你理想中的家的样子。

客厅
这个房子虽然面积大,但是客厅不是很大,是5/4.5的,所以在选择沙发的时候没有考虑11件套,放的是9件套的,把单人位中间的平几去掉了,这样放客厅就要看起来开阔一点,如果太挤了,恰恰没有那种大气的风格,你说呢?电视柜选择的是两门四抽的,旁边放两个花架,种上植物,客厅就显得有生机多了。

过道
这个是他进门的一个过道,过道两边放了很多东西,左边是个二联柜,上面放的是他在木雕城买的一个雕件,右边是放的一个153的酒柜,采用的是一个月亮门的隔断,这个是定做的,走过去就可以看到他的餐厅,餐厅是用的138的圆餐桌。用的灯也是很漂亮的。

主卧

主卧

主卧
主卧选择的是一张国色天香大耳朵的床,配的山水顶箱柜,还有个1.8米的电视柜,都是缅花的,他自己在选家具的时候就知道卧室一定要选择缅花的,缅花的香味有助与睡眠,他说家具配上了,他睡眠质量都提高了,不知道是不是家具漂亮,心情影响导致睡眠质量提高,看床上用的4件套也是质量非常好的,看来这家女主人是一个生活质量要求很高的人。

梳妆台
这个是女主人选的梳妆台,和首饰盒,看梳妆台上面的应该是绿松石和南红吧,他们还喜欢文玩啊,果然是有品位的人。

休闲室
在客厅背后采用的是个4门餐边柜做位隔断,后面放的是一套麻将桌,麻将桌用的是象头麻将桌,跟沙发交相呼应。他说他是一个非常喜欢打麻将的,他老婆是重庆人,也喜欢打麻将。

书房
这个书房稍微有点小,书桌用的是1.8米的,房间原因书柜没有放在书桌背后,不过这样放整体感觉都还行。配的是花鸟书桌,和花鸟书柜。
餐厅
餐厅放的是1.38米的圆台,后面就是厨房了。

次卧
次卧配的是3门缅花山水衣柜,床是1.8/2米的财源大床。孩子从小睡缅花啊,祝愿茁壮成长。

走道
家里全部的线条都是在东阳定做的,背景墙也是,定的是那种比较好的木头,家具全部放好是不是感觉不错呢?你对这种装修感觉满意吗?



