原标题:混搭老上海复古风,颜值高且有个性的家!
本案是一套面积为118平米混搭风格案例,女主人是一个爱喝咖啡的精致姑娘,对家的要求是高颜值且有个性。

风格上,最初定为北欧咖啡厅风格,但到最后却变成了混搭的老上海复古风格,整个家的颜值超高,甚至连卫生间都时髦得不行。
图赏
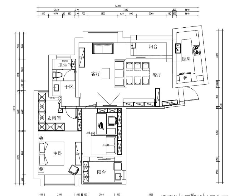
▲平面布局图
原始结构是两房两卫户型,考虑到常住人口就两个,一件主卧一间书房一间卫生间足矣,就将原先的主卫改成衣帽间。
| 玄关 |
入户玄关长虹玻璃既可以形成玄关空间又不显得压抑。
| 餐厅 |
通过玄关就是餐厅了,进入室内就能感觉了浓浓的复古怀旧气息了。
餐边柜是餐厅必需品,餐边柜里面是一块黑板漆,可以给文艺范儿的女主人一个发挥专长的地方。
| 客厅 |
客厅、阳台、厨房全部打通,扩大了客厅空间。开放式的厨房吧台木饰面,一直延伸到阳台,可以做靠窗吧台也可以做植物架。
客厅和餐厅一体,中间用了铁艺屏风隔断,挂了一些植物做装饰,电视机和餐边柜统一定制,简单的造型和干净的白色,做为陪衬,突现表现灯具的精致。
玻璃的使用,空间的功能独立,但却又不完全隔绝,互动性很好。
水泥墙+白色文化砖,深褐色的家具,在这里可以看出一点最初咖啡厅的风格。
客厅是双向的,也就是说不是明显的固定单一朝向,两个沙发。
公共区域全景,整体给人的感觉就是很有味道!
| 厨房 |
开放式厨房,颜值为主,老榆木台面搭配白色面包砖,加上几盆郁郁葱葱的植物,生活气息扑面而来。
| 阳台 |
阳台地面是瓷砖+花砖拼接,与餐厅的过度自然而然。
| 卫生间 |
卫生间做了干湿分离,干区设计了半墙马赛克,配色走的是黑白金的主题。
湿区十分精致,老钢窗配2cm的黑白马赛克。
| 卧室 |
卧室打造了复古绿色半墙,老钢窗后面就是衣帽间,衣帽间的柜子特意做的没有背板,保持空间明亮通透。
飘窗用木地板包了一圈窗套,地板45度切角与墙面完美对接,完全不用受收边条影响。
| 书房 |
原本是书房,暂时作为装饰和收纳空间,南阳台也用的老钢窗铁门,精致通透。
绿色涂料上墙上顶,穿插着黑色涂料,在老上海复古风里加入了俏皮的元素。



















