四合院是中国的一种传统合院式建筑,大约诞生于西周时期,至今已有3000多年的历史。其格局为一个院子四面建有房屋,从东、南、西、北四个方向将庭院合围在中间,故名四合院。
四合院以多样化的类型分散于中国各地,明清时期,这种建筑形式逐渐得到完善,后来形成了北京特有的建筑风格。到了今天,我们一说起四合院,一般都特指最为典型的北京四合院。

四合院的外观一般是封闭式的,不显山不露水,走进去却自成天地,一砖一瓦都散发出古朴浓厚的生活气息。
最美不过四合院,这才是适合中国人居住的房子!
曲折幽深的小胡同,
温馨美丽的四合院,
天空中飞过的鸽子,
小院里斑驳的阳光……
四合院里度过的悠悠岁月,
是记忆中不变的温暖时光,
惊艳了无数人的快乐童年。
在我们的印象中,四合院的建筑形式大多是呈“口”字形的,然而并非如此。
中国传统四合院的形制规整,设计十分讲究,有门屋,有影壁,有厅堂,有游廊,有厢房,有深闺......关上大门,自成一统。
【 第 一 篇 】
四合院常识
四合院是我国古老、传统的文化象征
“四”指东、西、南、北四面
“合”是四面房屋围在一起
形成一个"口"字形
四合院至少拥有三千多年的历史
是汉族的一种传统合院式建筑
其格局为一个院子四面建有房屋
将庭院合围在中间
故名四合院
▼
老北京正规的四合院
一般依东西向的胡同而坐北朝南
大门辟于宅院东南角"巽"位
四合院中间是宽敞的庭院
庭院中植树栽花
备缸饲养金鱼
是四合院布局的中心
也是人们穿行、采光、通风、
纳凉、休息、家务劳动的场所
而四合院做为中国最具乡土风情的
五大传统住宅建筑形式之一
并不是只有简单的"口"字形哦~
▼
“口”字形的称为一进院落
“日”字形的称为二进院落
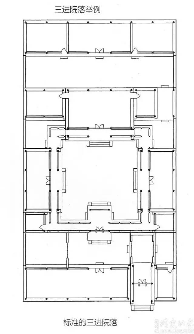
“目”字形的称为三进院落
在你以为“三进”就是满级了的时候
机智的中国古代劳动人民并不满足于此
▼
其中
三进院落是明清时期
最标准的四合院结构
其布局最为合理、紧凑
是民间大量采用的形式
▼
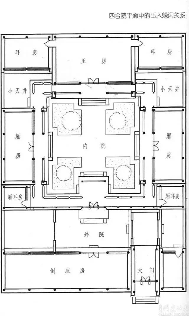
看了平面图
大家有没有发现了什么奇怪的地方?
▼
为什么四合院的大门
不开在正中而要开在东南角?
这个问题的答案
我们留到最后再揭晓!
有兴趣的朋友们可以猜猜看~
现在先来说说
四合院的大门有什么讲究
▼
其实中国的建筑向来等级森严
各种建筑单体
按照主人的身份分为不同等级
就连大门也不例外
✿
介绍完大门
让我们一起
走进四合院转转吧~
▼
从大门进去
迎面就是影壁
影壁有遮挡外人视线的作用
即使敞开大门
外人也看不到宅内
还可以烘托气氛
增加住宅气势
▼
看到影壁后再往里走
就到了第一进院和第二进院之间的一道门
——垂花门
▼
垂花门是整个四合院
最漂亮、最带感的一道门!
过了垂花门
就是第二进院了
若遇到雨雪天气
或无重要活动不开放垂花门时
想进入正院
就要经过抄手游廊
▼
四合院的参观就到这儿啦~
是不是很喜欢这样古朴的房子~
✿
哦对了
大家还记得前面说过的问题吗?
▼
【 第 二 篇 】
四合院建筑解析
垂花门
大门构造
带八字影壁广亮大门
带花园四合院
带花园四合院1
单卷棚垂花门
二进带游廊平面
房间透视
广亮大门
脊
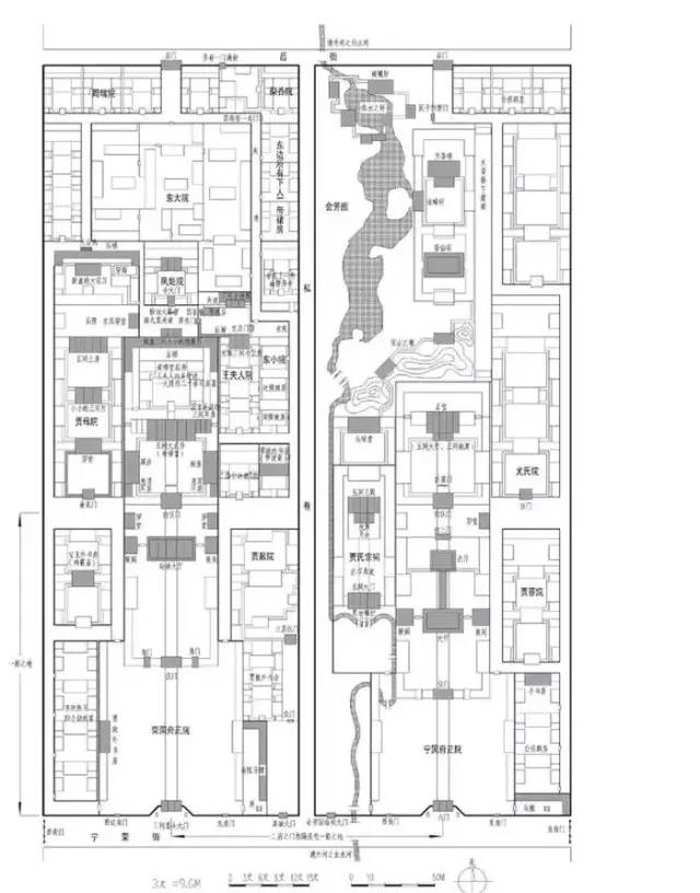
贾府建大观园前总平面图
贾府建大观园前总平面图02
建筑构架
金柱大门
蛮子门
门墩
如意门
如意门砖雕1
如意门砖雕2
三进四合院
三进四合院平面图
山墙犀头
书房立面
书房平面
四进四合院
随墙门
堂屋家具陈设
堂屋家具陈设里面
堂屋家具陈设平面
五出五进
西洋门
巽门
一殿一卷垂花门
一进四合院和三合院平面图
一进四合院平面图
一主一次并列四合院
影壁花心
总之:四合院,以其古朴雄浑的风格与精巧玄妙的工艺,成为建筑史上的一枚瑰宝;它承载着国人百年来的文化习俗跟生活习性,经典的院落形态和细节之处的装修彩绘,蕴含着深刻的文化内涵,相信没有什么建筑物,能跟四合院这样,意蕴浓厚!

























































































































