文章来源:小户型装修风格效果图
有粉丝给小编留言求长条形户型的装修参考,于是呢,小编给大家找来啦~
55平的长条形小户型,房子在一楼,自带露天小院,不过采光一般,特别是夹在中间的客厅。此次改造选择了北欧风格,以白色作主色为空间提亮,部分以黑色和灰色作点缀,打造时尚质感。

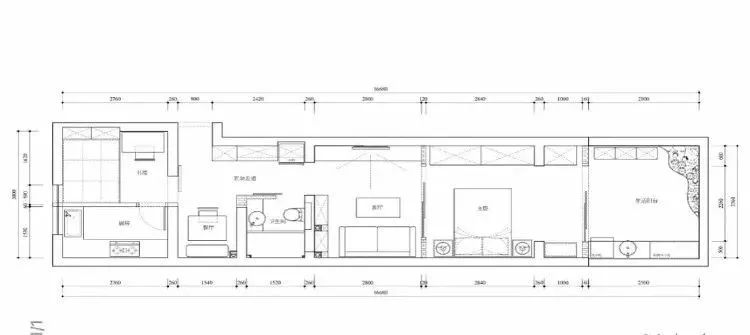
▲平面布置图
餐厅布置在入户正对的一角,空间比较迷你,相应地选择了腿较细长的小方桌。对于这样一个小空间来说,丰富的细节更能呈现它的“分量”,绝不是随便划个空间用餐而已。所以选用黑白色描绘的海浪图占据了整墙,一点也不浮夸,反而不显空洞。
这里大概能看到围绕玄关的一个布局,餐厅的左右两侧分别是改造后的次卧和卫生间,同款地板和白色墙面连接不同的空间。
▲粉色系的软装,这个次卧有点“甜”
次卧改成带书桌和柜体的榻榻米房,增加了办公的功能。除了侧面的抽屉收纳外,床头也加入了收纳设计,做成底部留空的吊柜,脚就刚好放进去啦。
厨房就在次卧的边上。L型的厨房是最适合小户型长条形厨房的设计了,靠着次卧的这面墙做了很多方便取放的收纳设计,麻雀虽小,五脏俱全。
▲外移的洗手台
长条形的户型就是要将过道两侧充分利用起来,于是洗手台和冰箱都排排站出来,和组合挂画或者贯穿过道的条形柜体比起来,这样浓厚的生活气息似乎也挺不错。
整个房子主要的采光只有院子处,过道也比较窄,所以全屋包括过道都同一铺设灰色木地板,并且大面积运用了白色,不会那么单调,又能够明亮一些。
做在走道上的洗手台,这样平时吃完饭也可以直接洗手,不用再进去卫生间,也方便了早晚的洗漱,不用争抢卫生间。
卫生间里的干湿分离就用浴帘和挡水条来组成,没那么拥挤。
走道之后就是客厅啦。又是一个被左右“夹住”的客厅,地面以上的地方都是白色,同时,主卧与客厅好院落的隔断墙都换成了通透的玻璃隔断。用文化砖作为电视背景墙,搭配沙发边的书架,又糙又真实。
这次选择的是方形的小茶几,和横平竖直的玻璃门框线、书柜格子搭配起来,好像设计感更强些。当然也不能少了懒人沙发、布艺抱枕和桌布这些元素,软硬结合的小客厅好像温馨、理性都能给到你。
▲卧室搭配窗帘,也能保证隐私性
主卧的空间还是比较充足的,毕竟有了个院子,阳台的空间可以并一部分到主卧内,屋外留下一部分方便下雨天晾晒衣服即可。
露天的小院子,适合种些花花草草,家具一定要选择防腐木的!!
-end-














