
土袋房技术是一种廉价,简单可持续的建筑结构方法。从军事掩体建设和防洪方法演变而来,土袋房建筑以其防火,防洪,飓风,地震和害虫能力而闻名,并且被用于世界各地的灾区。在尼泊尔有55个土袋房建筑物在7.8级地震中幸存,没有结构损坏。
土袋房技术可以最大限度地减少水泥,混凝土,钢材和木材的使用,以及运输它们所需的燃料。这种技术在建筑中很容易,并且不会耗尽稀缺的自然资源。
土袋房技术比其他传统建筑方法要少很多专业知识,只需要掌握基本知识和最简单的工具。土袋房技术是一种墙体系统,其结构主要由施工现场的普通土壤组成。土壤被塞在聚丙烯袋中,然后像砖石一样交错排列并牢固地夯实。在袋层之间使用带刺铁丝网代替传统砌石砂浆。对于地震活动区域,建议使用支撑,垂直钢筋和粘结梁等增强材料。土袋房构造中使用的经典基础是瓦砾沟基础。屋顶设计可以是任何偏好,只要保证它是轻质的。
土袋房构造最大限度地减少了对熟练劳动力的需求,并且不需要任何特殊工具或机械。在有土袋房建筑资质人的监督下,一群非技术工人可以很容易地建造一个土袋房建筑。由于土袋房技术主要依赖于现场的材料,因此运输需求减少,燃料成本降低。这使得土袋房建筑成为偏远地区的理想选择。
虽然土袋房技术相对“新”,但其真正的起源可以追溯到数千年来通过类似的技术夯土建筑。一些人称土袋房技术为“捣鼓地球在袋子里”或“强化夯土”。采用类似夯实固体土技术的结构仍然从西班牙的阿尔罕布拉宫到国内的长城。
近几个世纪以来,使用填充有沙子或泥土的袋子建造墙壁并堆叠它们的方法已被军事和工业所利用。
市政当局将其用于防洪,防治侵蚀和挡土墙。道路建设者还部署了土袋墙,将它们置于高速公路下。
1976年,德国卡塞尔实验楼研究实验室的Gernot Minke开始研究如何利用沙子和砾石等天然建筑材料建造住宅。
20世纪80年代,伊朗出生的建筑师Nader Khalili推广了用装满土制材料的袋子建造永久性结构的概念。
目前,全球有超过15000个土袋房建筑物,最近土袋房建筑获得了严格的美国建筑法规的批准。在尼泊尔建造的55个土袋房,在2015年地震中幸存,从Solokumbu到Sindhupalchok到加德满都。
土袋房建筑比现有技术具有许多优势:
安全:地震前在尼泊尔建造的土袋房结构没有结构损坏,传统的建筑技术悲惨地失败了。
易于施工:乡村村民可以轻松学习土袋房技术。
减少材料的使用:土袋房结构需要少量的水泥,混凝土,木材和钢材。
减少燃料和运输的使用:使用当地材料和少量材料意味着减少运输需求和降低燃料成本。
减少污染: 用土壤建造意味着更少的工厂和烟囱,更少的用于运输负荷的污染,以及减少森林和自然资源的枯竭。
具有低成本效益:使用土袋房进行构建非常便宜。比如,典型的土袋房房屋每平方英尺可能需要500元,而混凝土砌块建筑则需要2000元。
主要建筑材料:
土壤:土袋房结构的主要材料是在现场上可获得的普通土壤,大多数土壤都是足够的,不需要精确的比例,但必须有足够的粘土和水分将沙土粘合在一起。使用跌落试验或滚动试验,无需任何设备即可轻松测试土壤。最常见的组合是:25%-30%粘土,70%-75%的沙土,10%水分(最佳水分含量)
聚丙烯袋:表面涂抹袋结构是耐用的,如果在聚丙烯袋适当地涂抹,结构可以持续数百年。美国联邦公路管理局的一项研究发现,聚丙烯织物在良性环境中的半衰期可达500年或更长。袋子本身的抗拉强度甚至高于钢的抗拉强度,并且可以抵抗由上述重量产生的周向力。
铁丝网:有助于将袋子锁定在一起,并在墙壁系统内形成矩阵。带刺铁丝抵抗由上方重量引起的墙壁向外膨胀,其抗拉强度抵抗面外力。铁丝网应为14号,4号尖。
地震结构抗震的关键部件:
土袋房结构尽管很重,但具有很高的柔韧性,使它们具有很强的抗震性能。
瓦砾沟的沟槽基础于1922年由Frank Lloyd Wright首次推广,并用于他的帝国酒店设计。这家酒店在关东大地震中幸存下来,这是日本历史上最具破坏性的地震。土袋房建筑利用自身的重量将自己固定在瓦砾沟基础上。由于上部结构没有通过螺栓或钢筋连接到基础上,因此基础和上部结构能够独立地移动,从而最小化冲击传递到墙壁。瓦砾沟槽也由单个单元构成,而不是连续梁以进一步吸收冲击。
土袋房很有弹性,根据国内三所大学(河海大学;河海大学商学院;合肥工业大学)进行的减振实验研究,土袋房具有较高的阻尼比,水平和垂直振动均有效降低。
铁丝网的抗拉强度,带刺铁丝网有助于将袋子锁定在一起并在墙壁系统内形成矩阵。它有助于抵抗由于上面的重量而导致壁向外膨胀的任何趋势。在地震期间,带刺铁丝网的抗拉强度有助于抵抗面外力。
厚壁(16英寸 - 19英寸)土袋房结构灵活,厚实的墙壁使结构更稳定。
混凝土粘结梁为结构提供完整性
垂直钢筋提供额外的剪切强度,支撑和角部加强增加了墙的平面内刚度。
带有镀锌或塑料网的厚石膏为墙壁提供额外的强度,以抵抗平面内和外面的力。
聚丙烯(PP)袋中的夯土,由于PP袋具有抗拉强度甚至比钢的高,它们可以抵抗袋中的土硬化之前由上述重量产生的周向力。在2到3个月之间,袋子里的泥土像砖一样硬化。所有这些组件都使土袋房结构具有极强的抗震性能。根据IBC标准进行的测试发现,土袋房构造远远超过了4区标准,旨在防止最高水平的地震活动。在美国建造了许多土袋房结构。加州建筑规范允许使用地球袋结构,这是美国最强大的地震活动区。
土袋房建筑细节:
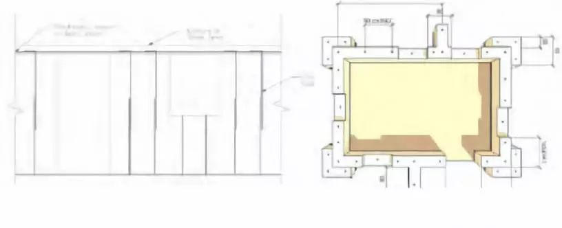
基础:土袋房结构通常采用瓦砾沟槽基础,但也可以使用更传统类型的基础。瓦砾沟槽基础仅适用于中等或硬土。一个2英尺3英寸深,2英尺宽的沟槽充满了地面以下6英尺的碎石。
砾石充填袋在碎石沟基础的顶部放置2-3个充满碎石的袋子。第一道砾石袋应放置在土壤水平面下6英寸处。最好使用双层袋来增加力量。从砾石充填的袋子开始低于等级并且在洪水易发区域中延伸到远高于等级,降低了水损坏的风险。
土袋房墙由聚丙烯袋或填充土壤的桶袋组成。在每个袋子之间应该使用至少两股4点带刺铁丝网。倒钩的间距不应超过100mm,倒钩的最小弯曲强度应为200N。夯实是土袋房墙体施工的一个非常重要的步骤。它有助于保持水平并固化袋内的土壤。
构建土袋房墙需要遵循许多规则:
墙上的任何开口都应该很小并且位于中心位置。开口应远离内角至少900 mm。开口之间应至少有900毫米的间距。允许的最大开口为1500毫米。
无支撑墙的最大长度不应超过其厚度的10倍。如果墙壁长度超过其厚度的10倍,则应以不超过壁厚10倍的间隔放置支撑。
土袋重叠:为了达到土袋房壁的全部强度,应遵循下面规定的共同键。
在地震多发地区,强烈建议使用角部加固。
角加固有5种类型:
角扶壁:扶壁加强了角落,加固了直墙。直墙需要一个支柱或一个墩,一个相交的内墙或一个每隔3-5米(10'-11')的小角落。它们还可以更容易地添加到土袋房上以扩展未来的房屋。支撑可以是直的,倾斜的或阶梯状的。如果,长凳或更宽的墙基也将加强直墙袋子很好地编织在墙上。垂直边缘的支撑物必须从墙壁伸出至少60厘米(24英寸),以及75厘米(30英寸)的倾斜或阶梯支撑。
拐角钢筋:这是加强土袋房建筑物角落的最简单方法。墙壁高度达到1.5米(60英寸)时,高度为1.5米 (5')长条钢筋通过角落袋敲打。袋子总是在角落交替,袋子接头交错以增加强度。
网眼角钢:坚固网格宽的条带被放置在从顶部到底部角部的外侧,外部网固定。应在内角放置金属杆或竹杆或附加网。如果使用竹子, 它可以很好地包裹在土中或留下未覆盖的用于检查。充满土袋房袋子在角落处交替。
波纹金属:如果每5个袋子重复一次,这个角部加固会加固和加强以及将墙壁联合起来。60厘米(24英寸)长的钢筋通过拐角处的波纹金属带驱动将钢筋系在下面的墙上。在金属条的末端或每隔60厘米(24英寸)重复。波纹金属屋顶被切成20-30厘米(8-12英寸)宽,至少75厘米(30英寸)长的条带。它们重叠在角落并钉在下面的袋子里。使用强绳或网每隔60厘米(24英寸)捆扎在金属周围紧紧固定三层袋子。
码头:码头通常是加厚的墙壁部分,它只从墙上伸出一个袋子的宽度。
垂直加固:钢筋安装在关键部分(即墙壁的角落,墙壁和门框)和每隔1.2米的正常墙壁部分。角落和墙壁交界处的垂直钢必须进入屋顶带。
结合梁:为结构提供完整性。它将墙壁连接在一起,为屋顶结构提供了刚性连接。建议使用混凝土粘结梁。深度应至少为6英寸,宽度应为袋宽的2/3。它是单独加强的,嵌入粘结梁钢筋部分的长度应至少为钢筋直径的60倍。
屋顶:作为一般规则,重型屋顶更具地震危险性。因此,屋顶和棚面应该在结构和功能上尽可能轻。对于土袋房构造,建议在所有地震带中使用桁架屋顶。
结论:土袋房技术提供安全,简单和可持续的建筑选择。我们鼓励工程师和建筑专业人士探索这项令人兴奋的新技术,并将其应用于最需要帮助的地区。
一步一步地建造土袋房
•End•















































