这个项目位于福建省龙岩永定市的乡下,周围村民房屋密集而且质量低劣,我们这个房子站在中间,虽然高度不大,但是因为经过深度的设计和推敲,明显要精致、美观很多,有点鹤立鸡群的意思。但总不能为了低调就设计得丑一点吧?
我相信再过一些年,周围的村民的审美意识觉醒之后,慢慢都开始重视设计和施工质量了,那些丑哭的垃圾建筑就会越来越少。这也是我几十年职业生涯中最大的心愿。希望那一天早点到来,我们毕竟是一个曾经有过很高审美水平的文明国度。
下面是本案的效果图:

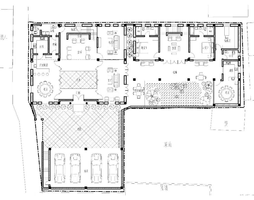
场地是L型的:
下图是现状的测绘图,右下角是一块菜地,邻居不肯卖,于是整个拟建场地成了一个倒过来的L型,看似不好用,但实际上,这正是本案最有意思的一个点。有了这个大缺角,刚好可以把这个场地分成大小合适的三个部分。
如何利用不完整的地形:
左上角是主要的庭院,左右对称,坐北朝南,规格最高,建筑高度也是最大的,是整个住宅的制高点,功能包括堂屋、客厅、餐厅、厨房、书房、健身房、以及四间卧室,它的外面是一个很大的坪,给主院一个充分展示的机会,就是有足够的空间能够看到主院的正立面。
但是这个坪地又不能太大,很多农村住宅有一个巨大的坪,那是用来晒谷子的,现在哪还有什么农业生产?搞那么大会导致夏天非常热。于是我在那里设计了一个车库,可以停放四辆车,二楼用作客房。但是客户想要取消这个车库,做个很大的坪地,那夏天停车会有暴晒,我个人觉得长远地看,还是室内停车更科学。
舒适安静的主卧区域:
右边就是主人的卧室区域,采用不对称的设计,有大量使人亲近的建筑材料,比如实木外墙板,比如竹子做的栏杆等等。有7套主卧,全部自带洗手间,这个区域还单独设置了一个小一点的厨房和餐厅,设施齐备,自成一体,不必借助主院就可以单独存在,而且有一个巨大的休闲长廊,正对一个朝南的大花园,是一个晒太阳、发呆的好地方。
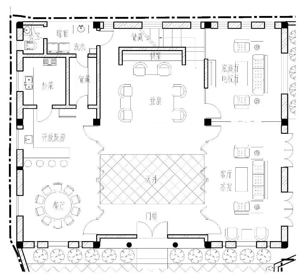
完整而庄严的客家四合院:
下面是主院放大的平面,这个平面来自新民居多年研制的经典平面,但是由于尺寸狭小,取消了天井周围阔绰的走廊空间,借鉴客家民居的天井设计,把餐厅、堂屋和客厅围绕在天井周围,同时用作交通的功能,节省了大量面积,还提升了这几个空间的采光效率,一举两得。以前没有25米见方的场地我都不敢设计四合院,但是去年以来经过北京、南阳两个小项目之后,像本案这样面宽15米,进深13米也可以做四合院了。
全新的外观设计:
外观上,我们准备采用钢模板现浇清水混凝土做结构梁柱,表面不再抹灰刷漆,会显得特别朴素、耐看,而且特别耐久。其它部分采用白色墙漆,和灰色的混凝土以及黑色的小青瓦形成黑白灰的高级搭配,力求简洁高雅,如下图:
屋顶设计有了升级:
在以往木构架隔热层的基础上增加了实木的封檐板,给建筑一个提神的暖色调的线条,力求挺拔,然后把混凝土屋面板悬挑出来200-300的距离,减小木构架的悬挑深度,防止天长日久之后在重力作用下木材发生过大的弯曲。如下图:
对永定客家民居的继承和发扬
永定土楼名满天下,就在本案的村子里就有好几座规模宏大的土楼,我还去拍了很多的照片,在那里驻足,屏息,感受来自遥远年代的建筑智慧和家国情怀,可惜现在已经年久失修,无人居住了,一片荒凉的景象中,我希望我的设计能够将其精神有所传递。
当然了,现在是工业化时代,不可能去采用夯土墙,或者真木结构,我也不屑于模仿其雕梁画栋的装饰细节,同时必须承认,永定土楼的居住质量是很低的,采光、通风、景观都不好,类似集体宿舍或者大杂院。但是永定土楼那种对于规则、秩序、层次的研究与追求,还是有很多可以汲取的营养。
下面是我在当地拍摄的土楼照片:
交钥匙工程:
这个项目我们准备要帮助客户直接建造完成,包括室内装饰和家具配置,如果没有这样的深度介入,像清水混凝土、倒圆角的柱子和大梁这样的高端做法我是不敢用的,交给哪个施工队也不能放心,那种失去控制的感觉已经折磨了我很多年,希望这一切在今年能够结束。
我们不按照实际造价收费,业主想要高端或者廉价的材料那是业主自己的选择,我们不愿意从中渔利或者蒙受损失,我们只收取一个固定的服务费用,不要材料回扣。我知道大部分豪宅装饰公司都是主要依靠材料回扣生存的。我祝他们好运,但我不认同那种商业模式。
这个项目将会是新民居历史上里程碑式的一个作品,从设计到施工一体化的服务极大地刺激了我的创作热情,一方面能够深刻地介入建造的过程,另一方面能够得到体面的收入去支撑漫长的现场工作。今后新民居的项目都会提供这种服务,也只有如此,像新民居这样的设计驱动型企业才能健康地生存下去,否则单靠收取设计费而无暇顾及施工效果的话,长期地看一定是死路一条。各位年轻的建筑师们,你们get到了吗?
鲁仲鹏
2019年2月27日18:30:41
深圳


















