
黄金一公里岸线
黄浦江与苏州河汇聚之处,苏河湾,踞纯粹上海城市中心,见证时代风云际会。今天,华侨城在苏河湾东区重塑上个世纪名人偏爱的居住胜地,为精英权贵们打造全球顶级都会新生活。
东临外滩,与陆家嘴隔江相望;南接人民广场、南京路等国际商圈。自上海开埠后,苏河湾一直占据着城市中心最繁华的地段,见证了城市百年来的风云变幻,被誉为“沪上清明上河图”。
■ 苏河湾一角
如今,随着华侨城的到来,苏河湾打造出“黄金一公里岸线”的概念。希望借此重新勾勒历史建筑与全新地标交相辉映的城市肌理,谱写上海全球时尚中心的新篇章。
■ 东区鸟瞰效果图
在黄金一公里岸线起点位置的东区,宝格丽大楼、外滩滨水别墅、上海总商会大楼、白渡桥共同筑就起东区的繁盛。
■ 白渡桥
其中,作为中国第一座全钢结构铆接桥梁,年逾百岁的白渡桥默默承载着城市的荣辱记忆。如今桥梁的交通功能虽退居其次,却成了网红打卡的圣地,每天都有很多中外游客在这里架起相机,记录下沪上最美时刻。
■ 中央公园规划效果图
沿着东区往西,可以抵达中央公园,天后宫、慎余里、徐园等历史遗迹都在这儿。作为苏河湾的一个重要节点,片区由2005年普利兹克奖得主汤姆·梅恩担纲设计,区别于东区的繁华盛景,在这里可以感受闹市中久违的一份宁静。
■ 矗立苏河湾西区的仓库群
继续向西北走,就是黄金一公里岸线的终点。这里保留了一大批银行仓库群。透过清水红砖,似乎隐约可见上世纪金融家和冒险家在此逐鹿的画面。
张先生的家低调奢华 藏而不露
在整个苏河湾黄金一公里岸线,位于东区的滨水别墅,可谓是大隐隐于市,低调奢华,藏而不露。它不仅融合了老上海建筑特有的海派风情神韵,在室内设计上更是增添了多种国际顶级奢侈元素。
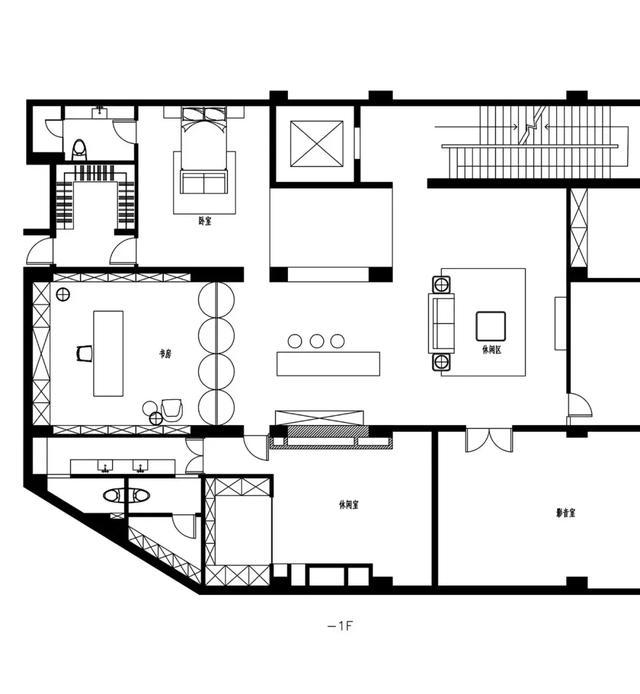
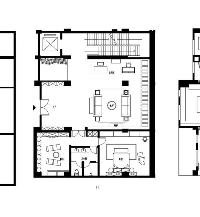
■ 从上至下为负一层至第四层户型图(共5张)
张先生的家就在这里,这套占地1500㎡的别墅,分为上下七层独立空间。相对复杂多样的空间形式赋予了每个区域以特定的功能,从而满足了张先生一家的生活需求和兴趣爱好。
■ 红砖墙面,别有一番韵味
正对大门,最里侧的清水红砖墙面惊艳了一楼的起居空间,每一砖都继承了城市历史建筑的神韵,似在述说古老上海的故事。
■ 挑空设计的钢琴区
二楼钢琴区域,是双层挑空结构,彰显了大户型与众不同的非凡气质。
木智工坊|几何手推车:https://s.click.taobao.com/zFoZbEw
■ 客厅
大面积通透的窗墙系统让光影和风景在室内尽情交汇,仅一块翡翠绿的丝绒地毯,就将客厅的主体空间划分地独立且精致。
■ 正对客厅的厨房
为了阻隔油烟,厨房特别设置了玻璃折叠门。富有休闲趣味的吧台让烹饪变得不再单调,一边做饭一边把酒言欢,别有一番情调。
■ 用餐区
餐区可以容纳两张大体量的餐桌,满足了张先生高频率的宴客需求。胡桃木定制墙柜不仅只有收纳功能,精心布置的艺术摆件,光线氤氲其间,用餐的同时会感觉身边萦绕一股艺术气息。
■ 会客厅
会客厅在三楼,其电视背景墙选用纹理丰富的英伦玉大理石,结合木质墙身金属线条的装饰,和谐而不繁杂,打破空间沉闷。
■ 主卧空间
位于四楼的主卧上开天窗,让阳光洒进房间,简洁的层叠天花,利用灯带光影增加出一种层次感。床头背板使用深咖皮革软包,与床尾凳两相呼应,流露出些许简致的奢华之气。
■ 书房
书房在负一楼,这里是张先生工作的场所,采用深色胡桃木为主要硬装材质。两侧书柜墙面,被柔和的隔板灯光打亮。配合金属光泽的灯具,更显现代摩登。
■ 入户起居室
这便是张先生的家,堂皇之中,气韵天成。
鸣谢
开发商:华侨城
项目规划:Foster+Partners
室内设计:DIA 丹健国际
软装设计:美璟
家具品牌:木智工坊、可续
视频策划:DAT影视
虚拟现实技术:黑瓯科技
摄影:Legolas1024、夏宇
本项目有360°VR全景和视频,欢迎前往小程序“美璟世界”深度体验


























