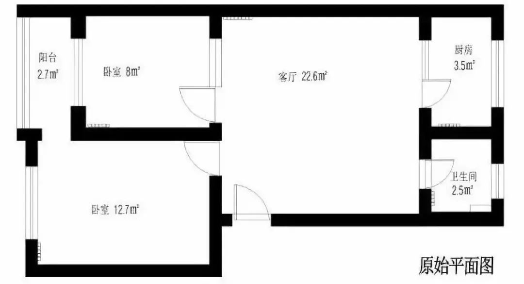
我们先来看下这样一张户型图,试想可能会发生的生活场景:

在外面吃过晚饭带了半个西瓜,回到家经过客厅到厨房把西瓜放进冰箱;去卧室拿了换洗衣服再路过客厅去卫生间,洗过澡出来路过客厅去阳台把衣服扔进洗衣机,最后再走回厨房拿出西瓜开始享受美味。
发现没,你的时间都花在来回走动上了,客厅已经变成了过道,如果家里刚好有客人在,洗澡出来的场面……
同样的情景发生在另一个户型里:
走动有所减少,不需要总是穿过客厅了。
之所以出现这样的区别,关键在于家居动线的设计是否合理。
1、什么是家居动线
就是我们在家里进行做饭、打扫、洗衣晾衣、洗漱睡觉等日常活动时走来走去的路线,好的动线能让我们在最短的时间里快速做完事,舒适且有效率。
常见的家居动线分为三种:
居住动线——一般是睡觉休息的事情,涉及卧室、书房等私人区域;
家务动线——像打扫、做饭、洗衣等家务,对应厨房、餐厅、阳台等区域;
访客动线——会客,多在客餐厅等公共区域;
2、好的家居动线
规划家居动线时要时刻思考平时的生活习惯,知道自己什么需求频率高,什么状态持续久,想要的区域是哪些,这样设计出的动线才会更好更有合理性。
好的家居动线应该满足的条件:动静分区少交叉、路线越短越方便、做好收纳
动静分区少交叉
动区就是家里人活动量大的区域,包括客餐厅、厨房、阳台等。
静区则指较少走动,需要相对安静、隐私的空间区域,包括卧室、书房、次卫等。
动区和静区应该分割明确,尽量避免动线交叉。这样客人在聊天吃饭、找卫生间时,就不会误入卧室这样的隐私区域。
有的户型如果本身就是客厅对着卧室的,为了保护主人隐私,可以考虑设置隔墙或者屏风,更好地划分动静两区。
路线越短越方便
● 活动比较频繁的的区域应当尽量集中在一起,比如做饭一整套的活动(家务动线):
取材➝清洗➝处理食材➝烹饪➝装盘,这里的动线设计要考虑到如何操作方便、节约时间。
不管厨房是L型、U型、平行,只要形成金三角,做饭的活动都是在三条边上,就能保证你不会来回反复的走路去拿取、清理东西。
● 厨房安排在最靠近入户门的地方,买回来的食材能第一时间放到厨房。
● 餐厅尽量靠近厨房,传菜方便,吃完收拾碗筷也便捷。
● 洗衣机放在阳台上,洗完直接晾晒。
洄游动线
这是日本家居设计中的常用手法,通过增加门洞的数量,改变家具摆设,形成一个环形动线,避免交叉或绕路。
小户型非常适合这种洄游动线设计,既提高了空间利用率,增加采光和通风,也增加了家人的互动性。
3、做好收纳
总觉得家里很乱,整理不明白。可能是因为动线上没有考虑收纳。
比如回到家时从进门到坐下这一动线,很多人家里一进门就是客厅,你进家后一股脑先把手上东西全甩在客厅沙发上。然后你回房间呆着了,可能到你下次需要的时候才想起来去整理。
解决这个问题就要在这一动线增加收纳空间,玄关的合理设计能保证客厅的整洁。
有些家庭在进门附近会设计一个小的储藏室,回家时随手将买的卷纸、牙膏等日用品顺路放好。
如果这个储藏空间不在你进门到目的地坐下的这个动线上,很大可能你就不会特意走过去,手上东西也随缘走哪丢哪了。
总之,越是合适自己生活习惯的动线越合理,越是节省时间提高效率的动线越好。






















