
店铺立面 © Christian Gahl / gmp Architekten
2018年底时装品牌之禾位于上海的旗舰店正式开业。店面高两层,外立面由gmp·冯·格康,玛格及合伙人建筑师事务所执笔设计。800个传统工艺制造的陶瓷管组成的巨大帷幕构成立面最重要的装饰元素。
The flagship store of the ICICLE fashion label opened in Shanghai at the end of 2018. The architects von Gerkan, Marg and Partners (gmp) were commissioned to design the two-story shop facade. The most important design element consists of a curtain of 800 porcelain tubes made in the traditional Chinese way.
800只陶瓷管帷幕照明效果
© Christian Gahl / gmp Architekten
gmp于2018年设计的之禾上海旗舰店位于南京东路的世茂广场购物中心内,世茂广场地处南京路步行街西首,其内国际品牌和奢侈品牌云集。之禾店面总面积600平方米,分布在两层之上。二楼是之禾空间,出售男女时装、意大利家具和日本陶瓷,店内还设有咖啡厅和书店。室内设计多使用木材和天然材料,回应之禾时尚“天人合一”的设计理念。
The ICICLE flagship store, for which gmp designed the shop facade in 2018, is located in the Shimao shopping center at East Nanjing Road—a fashionable location in Shanghai, particularly for international brands and luxury labels. The store has a total floor area of 600 square meters arranged over two stories. The upper floor accommodates the ICICLE Space: this is where, in addition to men’s and women’s fashion, Italian furniture and Japanese ceramics are sold. Furthermore, there is a café and a bookshop. The interior consists mainly of wood and other natural materials—in line with the ICICLE company philosophy, “Made in Earth”.
店铺内部幕墙效果
© Christian Gahl / gmp Architekten
之禾空间 © Christian Gahl / gmp Architekten
之禾店面设计简洁清新,反应了之禾品牌淡然平衡的设计理念。建筑立面的框架与结构元素被极大简化,材料语言强调了其通透感与统一性。入口处800只白色陶瓷管组成的巨型帷幕一直覆盖至建筑上层。自然纯朴的陶瓷材质作为材料的主角与橱窗边框的黑色金属型材形成对比。陶瓷管帷幕的通透实现了之禾空间与城市之间的视野交流。
陶瓷管由中国陶瓷品牌spin提供,全部在景德镇遵照传统工艺手工制成。它们由白瓷制成,手工涂抹上釉,烧制完成后表面呈现柔和哑光色泽。每个陶瓷管形态以及釉色之间的微小差别强调了手工作品的天然朴拙。黑色ICICLE标志位于帷幕正面的中心位置。
A special feature of the shop facade is its clear structure. The frame and structure have been kept to a minimum and, similar to the typical ICICLE styling, can be seen as an understatement. The overall concept underlying the facade design focuses on reduction, transparency, and uniformity of materials. Above the entrance area is a curtain of 800 hand-made white porcelain tubes reaching all the way to the upper floor. The architects have chosen ceramics, a natural material, as the main element that forms a contrast to the dark gray metal profiles of the shop window front. The gaps in the curtain allow views from the ICICLE Space to the city and vice versa.
The porcelain tubes were produced by the Chinese ceramics manufacturer, Spin. They are manually produced using traditional methods in Jingdezhen, the center of Chinese porcelain manufacture since the Ming Dynasty. The tubes consist of pure white porcelain with a satin glaze, which is applied by hand. Slight irregularities in the shape of the tubes and in the glaze emphasize the hand-madenature of this façade element. The black ICICLE logo has been placed centrally above the entrance area.
手工陶瓷管 © gmp Architekten
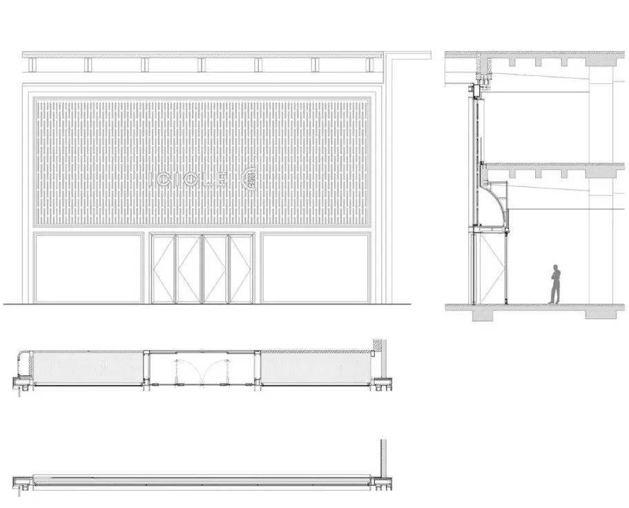
店面幕墙为自身承重钢结构,支撑结构被隐藏于煤黑色金属框架表皮之后,从而实现了橱窗玻璃幕墙面积的最大化。幕墙由六组三层夹层安全玻璃构成,厚50毫米,高5.4米,可承担钢框架以及帷幕钢索悬挂荷载。
The load bearing structure of the facade consists of a steel frame, which is self-supporting and has been placed in front of the shell construction of the building. The anthracite-colored metal cladding of the frame conceals the loadbearing structure, which made it possible to glaze the entire area of the shop front. The six triple-laminated glass panes are 50 mm thick and 5.4 meters high; they absorb loads from the steel frame and the steel cable suspension.
之禾商标与幕墙装饰的对比
© Christian Gahl / gmp Architekten
幕墙细部节点大样
© gmp Architekten
gmp与之禾长期以来保持着非同寻常的合作关系。此前之禾时装从gmp的建筑设计中获取灵感,发布了2017/2018季度系列女装。此次合作还促成了《gmp x ICICLE,建筑与时尚的对话》展览的举行,籍gmp中国20年庆典之际,展览将来到汉堡的巴拉赫展览馆展出,2019年6月29日起在汉堡建筑之夏系列活动中与公众见面。
For some time, gmp and ICICLE have been involved in an unusual cooperation. A 2017/2018 collection by the Shanghai-based fashion house was inspired by the architecture of gmp. Based on that cooperation, the shared exhibition “architecture x fashion, gmp x ICICLE, a dialog” was created, which will be coming to Germany on the occasion of the “20 Years of gmp in China” anniversary, and will be shown in Barlach Hall K as part of the Hamburg Architecture Summer from June 29, 2019.
钢结构节点大样 © gmp Architekten
陶瓷管帷幕节点大样 © gmp Architekten
集成照明系统节点大样 © gmp Architekten
设计:曼哈德·冯·格康和尼古劳斯·格茨以及玛德琳·唯斯
施工阶段项目负责人:贺繁怡
施工阶段设计人员:拉尔夫·多纳尔,钱烈,杨楚豪
中国项目管理:沈慧雯
业主:上海之禾时尚实业(集团)有限公司
专业咨询:DSPlan
幕墙施工:Gartner Permasteeliza
竣工时间:2018年10月
建筑面积:140m²
照明设计:iGuzzini
DesignMeinhard von Gerkan and Nikolaus Goetze with Magdalene Weiss
Project managementof detail designFanny Hoffmann-Loss
Detail design teamRalf Donner, Qian Lie, Yang Chuhao
Project managementShen Huiwen
ClientICICLE Fashion Group
Specialist plannerDS Plan
Facade construction companyGartner Permasteeliza
CompletionOctober 2018
Facade area140 m²
Lighting designiGuzzini
© Marcus Bredt / ICICLE
《gmp中国20年》展览信息
《gmpx ICICLE,建筑与时尚的对话》
展览时间:2019年6月29日至7月12日
开幕式:2019年6月28日
展览地点:Barlach Halle K, Klosterwall 13, Hamburg
展览开放时间:周一至周五,11点至19点,可预订导览
Exhibition dates for the “20 years of gmp in China” anniversary
“architecture x fashion, gmp x ICICLE, a dialog”
Dates of the exhibitionJune 29 – July 12,2019
Opening event Friday June 28,2019
VenueBarlach Halle K, Klosterwall 13, Hamburg
Opening time sprovisionallyMon–Fri, 11–19hours, guided tours available













