炭素焙烧炉是一种将高压成型的炭素材料制品,在隔绝空气的条件下,按照规定的焙烧温度进行间接加热,以提高炭素制品的机械强度、导电性能和耐高温性能。
炭素焙烧炉一般为连续多室,连续多室炭素焙烧炉又分密闭式和敞开式两种。
A 密闭式焙烧炉
密闭式焙烧炉,以铝工业中常用焙烧电解槽用阴极炭块,因此又常称为阴极焙烧炉。其重要部位,有炉底、焖坑、料箱、横墙、连通烟道等几个部分。
密闭式焙烧炉又分为带火井焙烧炉,不带火井焙烧炉,如图12-6、图12-7所示。

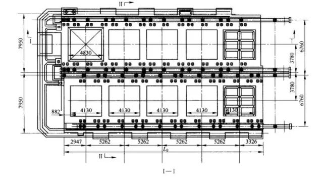
B 敞开式焙烧炉
敞开式焙烧炉主要用于浇制铝电解槽用阳极炭块,因而又常称为阳极焙烧炉,其主要结构有炉底、侧墙、火道、连通火道等几个部分,如图12-8所示。
炭素焙烧炉砌筑材料的选用
炭素焙烧炉,由于各部分所承受高温不同,所选用的耐火材料也不尽相同,如密闭式焙烧炉底部砖墩,坑面砖承受上部砌体和所焙烧制品的重量,火井受到1400℃以上的高温作用等,因此常采用机械强度高,热稳定性较好的黏士砖砌筑;密闭式焙烧炉炉盖,由于生产过程中需要移动,常采用轻质耐火砖砌筑,以下列举几个主要部位用砖理化指标。
2.1 密闭式焙烧炉主要用耐火材料理化指标
A 炉底用轻质砖理化指标
炉底轻质砖.主要用QI-0.8、QI-1.0轻质高强砖,其满足技术条件见表12-4。
B 料箱墙用砖、火井用砖的理化指标见表12-5.
C 炉盖主要用两种容重不同的轻质高强砖分别为GQI-1.0和GQI-1.5,其理化指标见表12-6。
2.2 敞开式焙烧炉用砖理化指标
炉底、侧墙常用以下牌号的轻质砖,分别为4-1、4-2、3-3、3-5、3-6、3-7.其理化指标见表12-7。
火道砖理化指标见表12-8。
敞开式炭素焙烧炉各种耐火材料用量见表12-9。













