焦炉用耐火材料主要还是硅砖。然而由于焦炉炉体不同的部位,所承担的任务、经受的温度、承载的结构负荷、机械磨损、介质侵蚀等各不相同,所以除硅砖之外,尚部分使用具有不同性能的耐火砖,此时要用到三石。
关于熄焦
焦炭生产过程中的重要环节是熄焦。熄焦方法主要有湿(法)熄焦和干(法)熄焦。湿熄焦是传统的工艺,它是用水作载热体(喷水方法)将炽热的焦炭(温度约1000℃)降低到300℃以下;而干熄焦采用非水方法熄焦,具体是采用惰性气体(一般为氮气)鼓入装入熄焦炉的炽热焦炭冷却,然后从熄焦炉下部排出。
由于熄焦方法不同,效果不同:
(1) 焦炭质量。干法熄焦优于湿法熄焦。后者因用水将炽热焦炭冷却,焦炭裂纹增多,焦炭质量下降,不利于高炉炼铁。据有关资料分析,干熄焦因焦炭质量提高,可使高炉炼铁入炉焦比下降2% ~5%,提高高炉生产能力约1%。
(2) 节约水资源,减少环境污染。
(3) 降低有害杂质,保护环境。在湿法熄焦过程中,水与炽热焦炭接触, 产生的大量化合物、硫化物等有害物质,自由排放,污染环境。干熄焦采用惰性 循环气体在密闭的干熄炉内对炽热焦炭进行冷却,对粉尘、污染物易于控制。
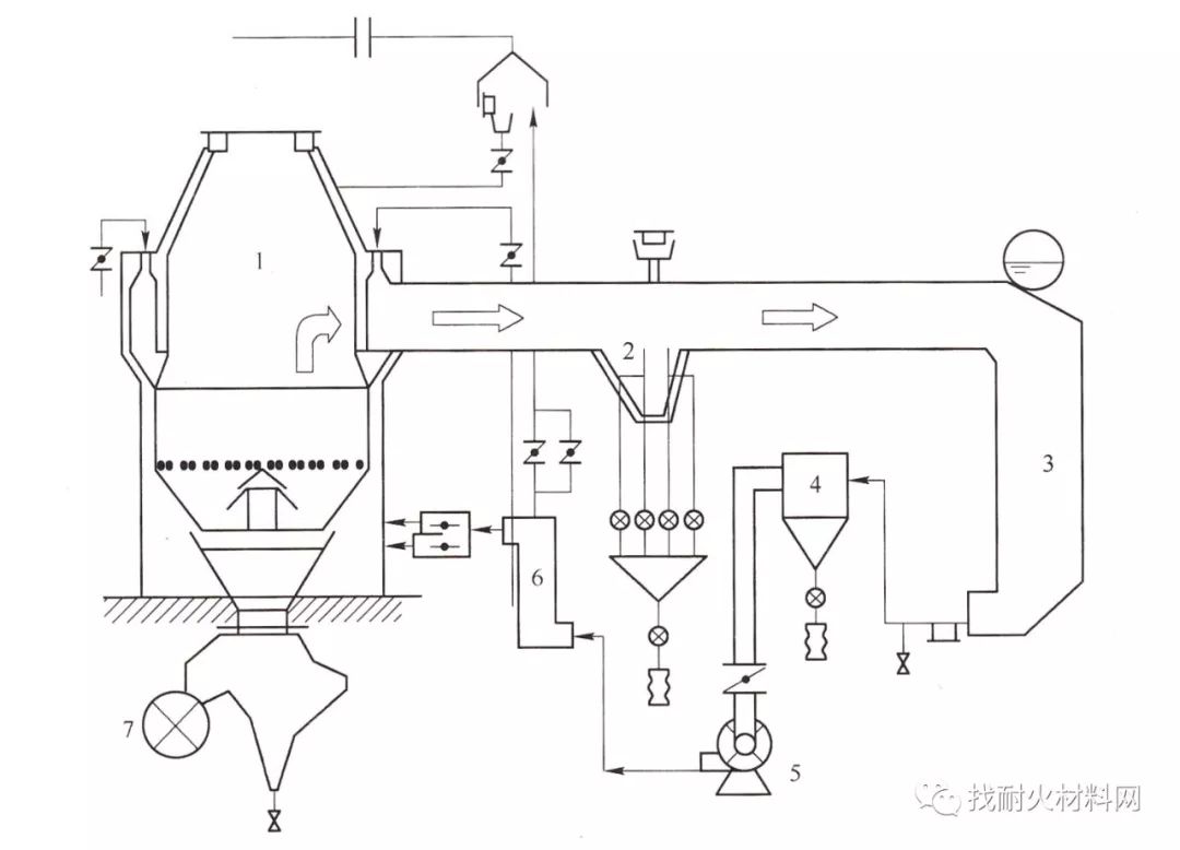
基于此,国家大力倡导干熄焦,对传统湿(法)熄焦不断进行改造,图12-1 为干熄焦工艺流程。

图1 干熄焦工艺流程图
1 一干熄炉;2—1DC (—次除尘器);3—锅炉;4—2DC (二次除尘器);
5—循环风机;6—给水预热器;7—旋转密封阀
干熄焦对耐火材料的要求
干熄炉由预存室、斜道区和冷却室组成。分别分布在干熄炉上、中、下部。干熄炉为圆形截面竖式槽体,外壳用钢板及型钢制作,内层采用不同耐火砖砌筑,有些部位用耐火浇注料。
预存室的上部是锥顶区,中部是直段实心耐火砖砌体,下部是环形烟道。分内墙及外墙二层环形砌体,内墙要求高强度耐火砖。
斜道区内层砖要求:抗热震、高强度、耐磨。为此,选用莫来石-SiC砖。干熄炉入口耐火砖也如此。
干熄炉预存室的耐火砖,热冲击大。装焦炭的机械冲击和磨损,要求高强、耐磨、热震好的耐火材料,如莫来石砖;冷却室因温度变化频繁,因此良好的抗热震性是耐火材料最基本要求。
干熄焦用的干熄炉工作环境,耐火材料应具备如下优良特性:
(1) 抗热震性。
(2) 耐磨、强度要高(耐压强度、抗折强度)。
莫来石(红柱石)-碳化硅砖
21世纪初,鞍山焦耐研究设计院,武汉科技大学,山东鲁耐窑业公司等单位,曾对干熄焦用耐火材料进行攻关,主要材质是莫来石-碳化硅质。莫来石线膨胀小(a=5.3x10-6/℃),而碳化硅热导率大(1000℃时,λ=38.49 W/(m·K)),有利于材料的抗热震,同时,碳化硅硬度大,有利于提高材料的强度,显然选材对路。目前除山东鲁耐窑业公司生产外,江苏宜兴地区不少厂家也在生产。这里特别指出,红柱石矿物原料具有抗热震的优良特性,制作莫来石-碳化硅砖少不了。
干熄焦用莫来石(红柱石)-SiC砖理化指标见表2。
表2 莫来石-碳化硅砖理化指标


