
杭州木守西溪酒店位于西溪国家湿地公园西南角龙舌嘴入口的尽端,西溪以湿地风光、人文历史见长,自古以来便是隐逸之地。冷、静、孤、野、幽的自然生态为设计提供了理想的环境条件。酒店包括43间客房以及大堂、餐厅、酒吧、宴会厅等公共区域,建筑面积约7000平方米。这座拥有着绝佳湿地生态的酒店已然成为一个四时皆宜的度假胜地。
BOB CHEN DESIGN OFFICE完成了酒店大堂、餐厅、客房及酒吧在内的各个区域的基于场景化设计的家具定制,部分产品出自旗下家具品牌TOUCH FEELING。家具设计的重点在于与空间结构、气质的联结,自然的、未经深度加工的材料成为首选,镜面、瓦楞玻璃等具有不同反射效果的材质在这里呈现出诗意的品质。 野堂 Yetang 大堂 Lobby
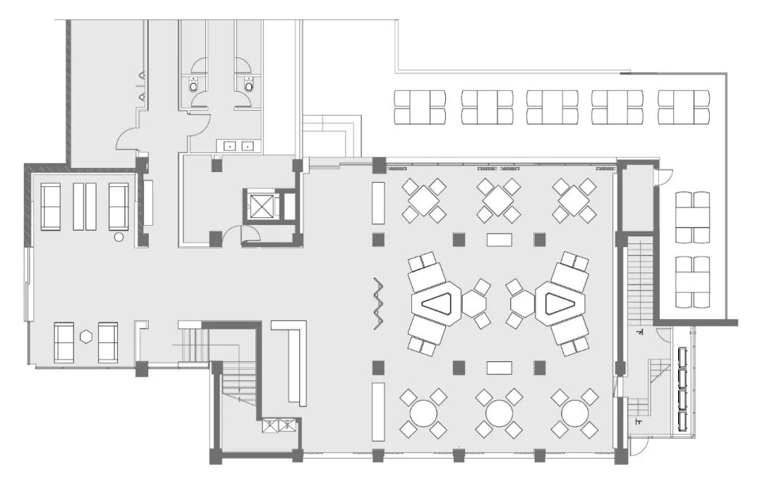
进入大堂,视线直抵窗外,景观引入和动线关系成为大堂家具排布与设计的着眼点。接待台设立于入口的右侧,表面选用水波纹石材,意在与户外的水面相呼应。
休息区设置于临窗的一侧,由三组沙发构成。中央的沙发朝向开阔的景观面,其后背开发了搁放阅读物的功能,使之与后方空间发生联系。 溪隐 Yinxi 餐厅 Restaurant
餐厅的设计始于对平面格局排布的思考。从酒店餐厅的经营出发,分别设计了矩形、圆形、六边形等造型各异的桌面,满足2~6人不同人数的用餐需求。
餐厅中央设有两组根据餐位排布而设计的六边形沙发中岛台,兼具放置花艺的功能,在空间内形成自然的隔断。
四个备餐台设置于柱子之间,以家具的形式明晰空间的区域划分。台面上方的双面镜设于人的视线高度,意在反射人的动态,同时将户外的景观引入,在室内交织为动态的影像;灯光隐藏于镜子之下,成为家具体系的一部分;备餐台背面则开发了放置阅读物的功能。
屏风选用咖色瓦楞玻璃、辅以同色系铜配件,以保持内外空间的通透。两侧特地设计了铜烛台,高低错落的烛光在玻璃上折射出影像,从而营造出更为丰富的动态关系和亲切感。
餐厅二楼设有不同大小规格的包厢,家具的设计重点在于满足宴会需求。 客房 Room
酒店的43间客房分布于四栋独立的建筑内,内含5个房型。客房的家具设计针对不同的房型展开,包含茶室家具、床、床头柜、床尾凳、电视柜、沙发、迷你吧、洗手台等。
可调高度吊灯的设计目的是解决酒店加床的需求。
下午茶、酒吧 Tea&Bar
有了阴影,光明才更耀眼。 ——保罗·海泽 亱丘选用黑色为空间基调,沉静质朴的黑色反衬着窗外的旖旎盛貌,石材、玻璃等材质则以其反射特征显现于“黑”“暗”之中,持续为空间引入流动的生机。
石材、木板、布面、皮革等材质共同演绎黑色主题,从“木守柿”的生长中所汲取的缃色、琥珀色则作为点缀,呼应户外的草木之色。
临水的桌面倒映出蓝天白云,为客人带来在“云端”享用下午茶的体验;底座则选用了金属网面,以保持视觉上的通透感。
建筑隔绝了户外的声音,如何使人多感官地与户外联结也是设计考虑的重点,窗边的声音装置便应运于这一思考。
该装置利用固体声波振动传递原理:铜管从底部伸向建筑的各个方向,通过上方的圆锥形听筒可以聆听来自湿地的四季之音。
无论昼夜,或是呼应或是隐匿,灯具和灯光的设计充分考虑了室内的最佳视野。
包厢 Box
化妆台 Dresser
项目信息 项目面积:7000平方米 项目地址:中国,杭州 项目业主:杭州木守世业酒店有限公司 建筑与规划设计:GOA大象设计 设计单位:Bob Chen Design Office 主创设计:陈飞波 设计管理组:胡冰、沈云峦 室内设计组:刘亚楠、梁宝江、吴炜 家具软装组:茹燕、刘亚楠、梁宝江 平面视觉组:李芳雨、李弘驰、王媛媛 工程施工:芝麻装饰、华跃装饰 设计撰文:SALOME STUDIO 项目摄影:汪敏杰 家具品牌:触感空间TOUCH FEELING 导视制作:宁波匠天标识制作有限公司
















































