所有的新房测评全都是我们团队人肉亲身感受出来的。在新房测评里,我们会用3分钟很直白地讲明白每个楼盘的优点和缺点,即便是我们推荐的项目,也会直接注明有待改进之处。
因为在我们的眼里,市面上只有一成的新房是值得买的。
➢ 项目:浦发东悦城
➢ 评定星级:★★★★(五星为满分)
➢ 地址:浦东新区-周浦-康沈公路2201号
➢ 价格:均价4.4-4.5万;
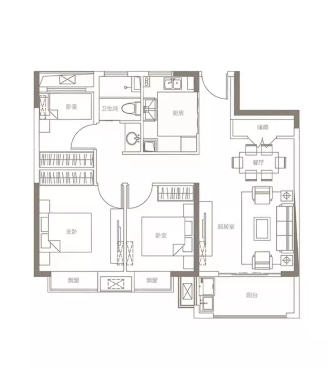
➢ 产品户型:最低起步71平一房,96平两房,128/130平三房;
➢ 销售动态:蓄客中,预计8月认筹,9月开盘;
➢ 楼盘概况:小区开发商为浦发,总体体量为1190户,半人车分流,车位配比1:1.25,小区外围有路边停车位,内圈中央花园无法车行进入。此次一期先开的是2/3/4/7/10这五栋楼,一梯两户设计,总高在22-28层不等。

➢配套品质+优势:
1.价格低,价格低,价格低。销售说均价不会超过4.5甚至接近4.3,可以说这个价格在周浦非常有竞争力。
2.交通上:小区距离最近的18号线站点繁荣路站大约1.7公里的距离;距离16号线周浦东站大约3.6公里的距离;
3.产品上:户型总体方正,相对隔壁明天华城,96平已经做到了三房,功能性更佳;130平户型更在西边套加了个观景阳台,直看中央花园,观景舒适;
➢ 瑕疵劣势:
1.区位上:小区北边为监狱,后排朝北房间直接看得到监狱内部每天在干啥,总有些膈应(下面会讲到未来的区域规划,这里会拆);
2.小区毛坯交付,又是接近1200户的大体量小区,可以想见未来几年内小区内的场景;
3.交付时间为20年底或者21年初,期房时间较长;
4.小区距离18号线繁荣路站点隔了一个明天华城,步行超过1.5公里,已经不算轨交房范畴。
➢ 适合人群:刚需+改善需求
➢ 总体评价:比较推荐。
放眼周浦,别家都是往高了开,浦发东悦城往低了开,在预计4.4万的均价为前提考虑,整体开发的新商品房(非动迁)大体量小区,人车分流、中央花园啥都有,可以说极具性价比。如果对监狱在隔壁有介意的朋友,可以看看下面这张图:
由图可见,东悦城隔壁的地块未来规划为居住用地,也就意味着现在的监狱肯定会拆,就是个时间问题。
未来在18号线通车以及整体居住片区规划起来后,东悦城的价格底就是个很好的优势。
实地踩盘图:
户型图:
虽为毛坯交付,但是中空百叶窗为标配:
遥望远方的监狱:
20楼北边的监狱景观:











