在我们中国,别墅这种大户型居住空间,一般会更多偏向于中式、欧式或者是现代轻奢风来作为整体的装修风格。而这套东莞桥头帝庭山260平的别墅,选择以法式浪漫风进行装修设计,打造出一个奢华浪漫的自由居住空间。
蓝色的家居软装为白色的空间里酝酿出浪漫矜贵的格调,亦是这唯美的蓝,将浪漫与高雅的法式风格渲染到极致。
客厅

本案客厅体现了法式风格的浪漫与唯美之感。“海”与“天”明亮的色彩,仿佛被水冲刷过后的白墙、薰衣草、玫瑰、茉莉的香气、路旁奔放的成片花田色彩、历史悠久的古建筑、土黄色与红褐色交织而成的强烈民族性色彩。
取材天然的水晶吊灯,与墙壁、大理石地砖、壁画完美融合。巧妙的自然光线运用,富有流线及梦幻色彩的线条等软装装饰特点,体现出居住者向往自、亲近和感受自然的生活情趣以及浪漫情怀。
玄关
护墙板的“柔”和大理石的“刚”还有硬包布料的“软”融合在一起,使得空间不会给人一种冷冰冰的感觉,仿佛材质是有生命的。
餐厅
餐厅秉持典型的法式风格搭配原则,窗帘、餐桌和餐椅均为海洋的蔚蓝色,餐桌家具表面略带雕花,显得优雅矜贵。在卷草纹窗帘、水晶吊灯、落地灯、瓶插鲜花的搭配下,浪漫清新之感扑面而来。
空间在优雅浪漫的主基调下,营造出移步换景的空间美感,强调建筑绘画与雕塑以及室内环境等的综合性,亦平衡贵气极致的感官冲击,绚丽相映的水晶光芒,凝聚偌大空间的情感,华丽却不落俗。
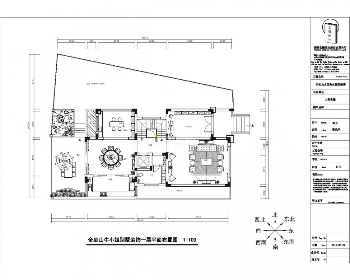
平面图1
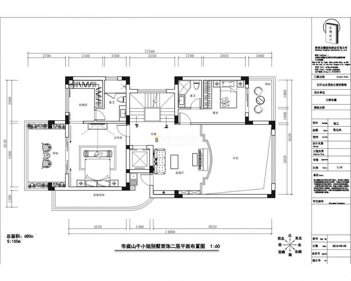
平面图2
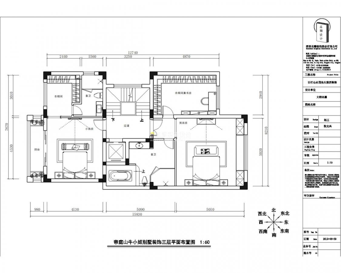
平面图3
你喜欢这个浪漫清新雅气的法式别墅吗?






