房掌柜消息,作为武汉最具创新创业活力的地区,光谷近年已聚集了小米在内的50多家知名互联网企业的第二总部。小米武汉总部从确定到拿地到动工,上演着小米速度。2019年8月13日,武汉自然资源和规划局公示了小米武汉总部(东湖1号项目)项目规划方案,据了解,小米武汉总部大楼主体结构已经封顶,将于10月前完成总部大楼的竣工建设,年底将进驻办公。

光谷小米武汉总部规划方案公示
2018年8月31日,小米拿下武汉光谷中心城P(2018)073号地块,拟定建设小米武汉总部基地。2018年11月25日,武汉小米总部动工。
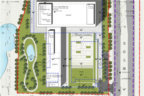
2019年8月13日,武汉自然资源和规划局公示了小米武汉总部(东湖1号项目)项目规划方案,项目规划净用地面积28658.07平方米,场地道路占地面积5676.11平方米,总建筑面积52946.04平方米,计容建筑面积31513.28平方米。容积率1.1,建筑密度34.6%,绿地率30%,机动车停车位511个,其中新能源车位120个,非机动车停车位475个。
目前,小米武汉总部大楼已经初显轮廓,毗邻地铁11号线光谷五路站,西侧与东湖高新区政务服务中心隔水相望,东侧与竣工在即的湖北科技馆新馆一路之隔。
小米武汉总部大楼的造型颇为简洁干脆,棱角分明,建筑主体采用钢结构形式,外立面为全玻璃幕墙,恰似两个方方正正的玻璃盒子。可以想象,夜晚灯光透过玻璃,映衬出光影错落的“光BOX”之效果。
小米武汉总部大楼不高,主楼地下2层、地上7层(局部8层),高度为35.5米,为集中办公区,附楼3层,高度为13.9米,为小米公司展厅和员工餐饮区。作为互联网公司总部大楼,小米武汉总部大楼会应用何种炫酷高精尖的科技元素同样令人关注。
小米武汉速度惊人 光BOX年底入驻
2019年7月,美国《财富》杂志发布2019年世界500强排行榜,小米集团首次登榜排名468位成为最年轻的世界500强! 雷军按捺不住激动之情,赠予每位小米同学1000股小米集团股票,网友们纷纷刷屏祝贺。
目前,小米总部大楼已实现主体结构封顶,正在进行幕墙施工。据小米公司项目经理李坤介绍,小米总部大楼将于10月前完成小米武汉总部大楼的竣工建设,年底进驻办公。
据介绍,大楼内将采用能耗智能监控系统、智能停车系统、人脸识别系统等高科技手段,对大楼的后期运营进行管理。小米武汉总部大楼竣工后,约能满足2500名研发人员办公。
小米武汉总部以万人规模来建设,未来将成为整个小米集团最大的研发总部,承担小米AIoT、大数据、云服务、电商、新零售等核心技术和业务的研发等工作,是小米全球化战略布局中的重要一步。
来源 | 房展柜武汉
END




