室内外消火栓系统:
概述:室外消火栓是指设置在建筑物外的一种供水设备,其作用是供消防车从市政管网或室外消防给水管网取水,其次可直接接水带和水枪灭火。
类型:地上式消火栓、地下式消火栓
施工安装:应按照《建筑给水排水及采暖工程施工质量验收规范》GB50242-2016相关标准执行,可参考国家建筑标准设计图集01S201《室外消火栓安装》。
室内消火栓系统示意图:

组成:
消火栓:由消防龙头,水带,水枪组成。安装于消火栓箱内。
给水管网:应构成水平或垂直或立体环网,至少两条进水管。
消防水泵:消防水泵应保证在火警后5min内开始工作。
消防水箱:消防水箱应设在建筑物的最高部位,且应为重力自流供水方式。
消防水池:当生产、生活用水量达到最大时,市政给水管道、进水管或天然水源不能满足室内外消防用水量时;市政给水管道为枝状或只有一条进水管,且消防用水量之和超过25L/s 时,应设置消防水池。
水泵接合器(消防结合器):消防车向建筑内消防管网送水的接口设备。应设置在便于消防车接近、使用、不妨碍交通的地点,距消火栓和贮水池15~40米之内。
布置:
室内消火栓的设置位置:室内消火栓应设置在明显易于取用地点。如走道、楼梯间附近、消防电梯前室等。
水枪的充实水柱:应由计算确定,一般不小于7m,甲乙类厂房、超过六层的民用建筑、超过四层的厂房和库房,不应小于10m;高层工业建筑、高架库房内水枪的充实水柱不应小于13m。
水枪的保护半径:水枪出来的水柱必须达到建筑物的任何位置。
室内消火栓栓口处的静水压力不应超过1.0Mpa,如超过时,应采取分区给水系统;消火栓栓口处出水压力超过0.5Mpa时,应有减压措施。
多层建筑及高层工业建筑室内的某段给水管道损坏时,关闭的竖管不应超过1条(立管总数超过4条,可关闭不相邻的2条)
临时高压给水系统的每个消火栓处应设直接启动消防水泵的按钮,并应设有保护按钮的设施。
高层建筑的屋顶应设一个装有压力显示装置的检查用的消火栓,采暖地区可设在顶层出口处或水箱间内。
消火栓给水系统的供水方式:
1.无加压泵和水箱的消火栓给水系统:当室外给水管网的水压和水量任何时候均能满足室内最不利点消火栓的设计水压和水量时采用。
2.设有水箱的消火栓给水系统
常用在水压变化较大的城市或居住区。当生活、生产用水量达到最大时,室外给水管网不能保证室内最水利点消火栓的压和流量,而当生活生产用水量较小时,室外管网的压力又较大,能向高位水箱补水。
3.设有消防水泵和消防水箱的消火栓给水系统
当室外给水管网的水压和水量经常不能满足室内消火栓给水系统的水压和水量要求,或室外采用消防水池作为消防水源时室内应设置消防水泵加压,同时设置消防水箱,储存10分钟的消防用水量。
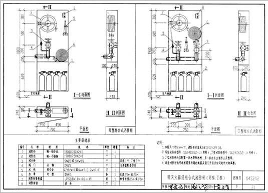
箱式消火栓安装要求:
栓口朝外,并不应安装在门轴侧;
阀门栓口中心距地面为1.1米(以水平线为准),允许偏差±20mm(栓口离挡板≧15cm,在带卷盘的情况下为≧22cm);
阀门距箱侧面140mm,距箱后内表面100mm,允许偏差±5mm;
消火栓箱体安装的垂直度允许偏差为3mm;
消火栓箱安装高度需统一;
消火栓箱的进出尺寸需统一;
消火栓安装平整牢固,各零件齐全可靠;
消防箱内各配件安装影响相互使用;
常用消火栓安装图集示例:
消火栓的施工安装:应按照《建筑给水排水及采暖工程施工质量验收规范》GB50242-2016相关标准执行,可参考国家建筑标准设计图集04S202《室内消火栓安装》。
自动喷水灭火系统:
概述:自动喷水灭火系统由洒水喷头、报警阀组、水流报警装置(水流指示器或压力开关)等组件,以及管道、供水设施组成,并能在发生火灾时喷水的自动灭火系统。
分类:
闭式系统:湿式自动喷水灭火系统,干式自动喷水灭火系统,预作用自动喷水灭火系统,简易自动喷水灭火系统;
开式系统:雨淋系统,水幕系统,水喷雾系统。
自动喷水灭火系统的适用范围:湿式自动喷水灭火系统适用于环境温度大于4℃和小于70℃的场所。
湿式系统的组成与工作原理:
组成:湿式系统由闭式洒水喷头、水流指示器、湿式报警阀组以及管道和供水设施等组成,准工作状态时管道内充满用于启动系统的有压水的闭式系统。
湿式自动灭火系统应在开放一个喷头后自动启动。
工作原理:当保护区发生火灾时,火源周围环境温度持续上升当环境温度达到闭式喷头动作温度时,致使喷头感温元件动作,喷头开启、洒水灭火。水在管路中流动后,使管网一侧(系统侧)水压下降,湿式报警阀阀瓣因上下压差而开启,向系统供水灭火。安装在区域干管的水流指示器因水流作用动作,将水流信号转化为电信号,报警控制盘接收到水流指示器发来的电信号后发出声、光报警信号,显示失火区域。同时由于湿式报警阀的开启,使一部分水流入报警管路,通过延迟器延时5-90s后,水流冲击水力警铃发出声响报警铃声。报警口压力升高使压力开关动作,直接向消防泵控制柜发出电信号启动消防泵加压供水,同时将信号传至消防控制中心,达到持续自动喷水灭火的目的。
自动喷水灭火系统动作流程图:
系统组件:
闭式喷头,定义:闭式喷头是指带有热敏感元件的喷头,其喷水口由热敏感元件组成的释放机构封闭。当设置场所发生火灾,温度达到喷头的公称启动温度范围时,热敏感元件启动,释放机构脱落,喷头开启。在自动喷水系统中,闭式喷头担负着探测火灾、启动系统和喷水灭火的任务,是自动喷水系统的关键组件。
喷头标识:
例:K-ZSTX15-68℃:表示快速响应、下垂型,公称口径为15mm,公称动作温度为68℃的洒水喷头。
类型特征代号,标准响应:性能代号前无代号;特殊响应:T;快速响应:K。
性能代号,通用型喷头:ZSTP ;直立型喷头:ZSTZ ;下垂型喷头:ZSTX ;直立边墙型喷头:ZSTBZ ;下垂边墙型喷头:ZSTBX ;水平边墙型喷头:ZSTBS 。
公称口径:10,15(k=80),20(k=115)。
公称动作温度(常见玻璃球) 57℃ 橙色,68℃ 红色,7 9℃黄色 ,93℃ 绿色。
喷头流量计算:
例:在一公斤的工作压力下,DN15(k=80)的喷头的流量为:q=80L/min=1.33L/s。
湿式报警阀:报警阀结构原理为单向阀。在伺应状态下,由于旁路管和补偿器在供水压力波动的情况下可使阀瓣上部水压大于其下部水压。当发生火灾使喷头动作,喷水而造成系统侧水压下降,而旁路管的节流作用不能立即使系统侧压力与供水侧压力平衡,这个压力差就将阀瓣打开并向已开启的喷头连续供水,实施灭火。
报警阀上下各设一只信号蝶阀,一个湿式报警阀组控制的喷头数不宜超过800只,每个报警阀组供水的最高和最低位置喷头,其高程差不宜大于50m。报警阀安装距地面高度为1.2m,安装报警阀的部位应设有排水装置。
延迟器:延迟器是一个罐式容器,入口与报警阀的报警水流通道连接,出口与压力开关和水力警铃连接,延迟器入口前安装过滤器。
在准工作状态下可防止因压力波动而误报警。当配水管道发生渗漏时,有可能引起湿式报警阀阀瓣的微小开启,使水进入延迟器。但是,由于流量小,进入延迟器的水量会从延迟器底部的节流孔排出,使延迟器无法充满水,更不能从出口流向压力开关和水力警铃。只有当湿式报警阀开启,经报警通道进入延迟器水流将延迟器注满并由出口溢出,才能驱动水力警铃和压力开关。
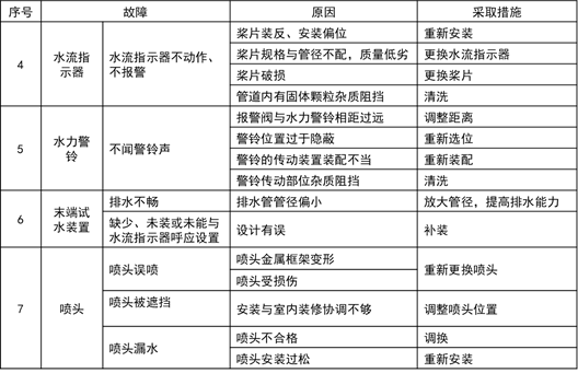
水力警铃:水力警铃是一种靠水力驱动的机械警铃,安装在报警阀组的报警管道上。报警阀开启后,报警水流进入水力警铃并形成一股高速射流,冲击水轮带动铃锤快速旋转,敲击铃盖发出“发生火灾、报警阀开启并已喷水灭火”的声响警报。
水力警铃的工作压力不应小于0.05Mpa,其与报警阀连接的管道,管径应为20mm,总长不宜大于20m。
压力开关:压力开关是一种压力传感器,安装在延迟器出口后的报警管道上。报警阀开启后,报警管道充水,压力开关受到水压的作用后接通电触点,输出“发生火灾、报警阀开启并已喷水灭火”及启动供水泵的信号。报警阀关闭时电触点断开。
水流指示器:水流指示器是靠管内压力水流动的推力而动作,从而推动微动开关并发出报警信号,同时起到检测和指示报警区域的作用。
额定工作压力:1.2MPa;水流指示器离弯头或信号阀的距离不小于30cm;
水流指示器出来接3根线:常开触点,常闭触点,公共触点。
末端试水装置:作用:检验系统的可靠性、测试系统能否在开放一只喷头最不利条件下可靠报警并正常启动。测试水流指示器、报警阀、压力开关、水力警铃的动作是否正常,配水管是否畅通,以及最不利点处的喷头压力等。
做法:如图所示。
供水:
增压泵:流量:系统设计流量;扬程;一用一备(验收时进行模拟故障,分为主泵和备泵);
启泵方式:手动,自动,远程控制。
水泵出水管应设控制阀、止回阀、压力表和直径不小于65mm的试水阀。必要时,应采取控制供水泵出口压力的措施:
稳压泵:
流量:不大于1L/s,以确保不误起湿式报警阀。
扬程;一用一备;启泵方式:手动、自动(电接点压力表)。
稳压泵出水口有一个电接点压力表:
上面的指针是上限,下面的指针是下限,中间的黑色指针指示是实际压力的数值。实际压力在上限之上时,与上限接通,与下限断开。实际压力在上下限之间时,公共端与上限,下限都断开。实际压力在下限之下时,公共端与下限接通,与上限断开, 电接点压力表就是控制上下限压力用的。与继电器配合使用,通过接通或断开来控制电机的起停。
水泵接合器:
所有水泵接合器都接阀门;
每个水泵接合器的流量宜按10~15L/S计算。
消防水箱(12T,18T):
确保最不利点喷头的工作压力不小于0.05Mpa;
确保火灾初期10min的用水量;消防用水不作它用;应设止回阀。
消防水池:
例:喷淋系统设计流量为30L/s,火灾延续时间1h,则水池体积为30*1*3600=108T。
关于水泵基础:
水泵与基础之间要设减震垫
水泵的基础标高要考虑找平层跟粉刷层
水泵基础高度计算:h=a-b+偏心大小头偏差
其中,h为水泵基础高度;a为预埋套管中高度;b为水泵底到水泵进水口法兰中的高度。
关于自动喷水灭火系统的设计基本参数:
设置场所火灾危险等级:
轻危险级(基本没有);
中危险级:
Ⅰ级(除了厂房以外,喷水强度为6L/min.㎡);
Ⅱ级(一般厂房,喷水强度为8L/min.㎡ )。
严重危险级(很少):
Ⅰ级(印刷厂、酒精制品等工厂的备料与车间);Ⅱ级。
仓库危险级:Ⅰ级,Ⅱ级,Ⅲ级。
以中危险等级Ⅱ级,普通喷头布置为例展开。
民用建筑和工业厂房的系统设计参数:
中危险等级Ⅱ级的喷头作用面积为160㎡
Ⅰ级的系统流量:6L/min.㎡×160㎡/60=16L/S;
Ⅱ级的系统流量:8L/min.㎡×160㎡/60=21.33L/S;
系统设计流量需理论流量乘以系数,中危险等级Ⅱ级基本取30L/s。
喷淋系统管道内的水流速度宜采用经济流速,必要时可超过5m/s,但不应大于10m/s。
每米管道的水头损失应按下式计算:i= 0.0000107• V 2/dj 1.3
式中,i—每米管道的水头损失(MPa/m);
V—管道内水的平均流速(m/s);
dj—管道的计算内径(m),取值应按管道的内径减lmm 确定。
水力计算分析。
管道:
配水管道的工作压力不应大于1.20Mpa,并不应设置其他用水设施。
配水管两侧每根配水支管控制的标准喷头数,轻危险级、中危险级场所不应超过8只,同时在吊顶上下安装喷头的配水支管,上下侧均不应超过8只。严重危险级及仓库危险级场所均不应超过6只。
轻危险级、中危险级场所中配水支管、配水管控制的标准喷头数,不应超过下表的规定:
轻危险级、中危险级各配水管入口的压力均不宜大于0.4Mpa。
喷头布置:
喷头的间距(同一根配水支管上喷头的间距及相邻配水支管的间距 ):
不吊顶的场所,当配水支管布置在梁下时,应采用直立型喷头,喷头溅水盘离顶板的距离7~15cm。
吊顶的场所,喷头与吊顶齐平。
当在梁或其他障碍物底面下方的平面上布置喷头时,溅水盘与顶板的距离不应大于300mm,同时溅水盘与梁等障碍物底面的垂直距离不应小于25mm、不应大于100mm。
当在梁间布置喷头时,应符合规范的规定。确有困难时,溅水盘与顶板的距离不应大于550mm。
梁间布置的喷头,喷头溅水盘与顶板距离达到550mm仍不能符合7.2.1规定时,应在梁底面的下方增设喷头。
净空高度不超过8m的场所中,间距不超过4×4(m)布置的十字梁,可在梁间布置1只喷头,但喷水强度仍应规范要求。
走道喷头在无影响的情况下必须居中成排布置,间距尽量均匀。
喷头距离灯具或风口的尺寸不小于60cm。
自动喷水灭火系统设计规范50084-2017。直立型、下垂型的喷头与梁、通风管道的距离宜符合表:
当梁、通风管道、成排布置的管道、桥架等障碍物的宽度大于1.2m时,其下方应增设喷头,增设喷头的上方有缝隙时应设集热板。
建议支管直接做到风管的另一头,用内丝堵头堵住,再打支架,上下喷头共用一个支架。
支架:
不能采用侧抱或倒抱;
支架设置的位置:每个喷头设1个支架,所有转弯的地方,所有阀门、伸缩接的两侧必须设支架,不大于4m的立管设1个支架,大于4m设2个支架,大于8m设4个支架,类推。
支架的做法:DN50以下的可以采用L型支架,大于等于DN50的采用门字型支架,门字支架采用型钢斜45°切拼,进行倒角,凹面朝下,水平面朝上。
支架受力:第一个膨胀螺丝高于梁三分之二以上,每个膨胀螺丝必须高于梁二分之一以上。
立管上支架高度:离地1.5~1.8m。
支架的防腐要求:面漆、防腐漆刷两道。
支架角钢选型(一根管子的情况下):DN150:5#;DN100:4#;支管:3#。
自动喷水灭火系统的施工安装,应按照《自动喷水灭火系统施工及验收规范》GB50261-2017相关标准执行。
自动喷水灭火系统故障处理:
消防水源:
不设高位消防水箱的建筑,系统应设气压供水设备。气压供水设备的有效水容积,应按系统最不利处4只喷头在最低工作压力下的10min用水量确定。
在水务部门同意且市政给水管网为环状管网,生产、生活用水量达到最大且仍能满足室内外消防用水量时,消防泵可直接从市政给水管网吸水。
在火灾情况下,高层民用建筑的室内消防用水量不应考虑补水。
用于消防车停靠的屋面上,应设置室外消火栓。
建筑高度超过100m的建筑,消防给水系统可采用串联或并联供水系统,消防干管压力不应大于2.4MPa。
18层以上的高层住宅当分别设置两个消火栓箱确有困难时,可在同一个消火栓箱内设置两个栓口,但应分别由两根消防竖管接出。
当设两根消防竖管有困难时,可设一根竖管,但必须采用双阀双出口型消火栓。
1.十八层及十八层以下的单元式住宅;
2.十八层及十八层以下、每层不超过8户、建筑面积不超过650m2的塔式住宅。
室内消火栓不应设在封闭楼梯间、防烟楼梯间及其非合用前室内,住宅建筑执行确有困难时除外。
多层住宅建筑隔间面积大于200㎡的商业服务网点和高层住宅建筑的商业服务网点每个隔间内应设置一个消防软管卷盘,消火栓箱内可不设置水带和水枪,但必须保留消火栓栓口。
消防水泵:
消防水泵房和消防控制室应采取挡水措施;设置在地下时,还应采取防淹措施。消防水泵若选用恒压切线泵时,当消防泵的扬程小于1.0MPa可不设超压泄压装置。消防水池池底标高不应低于消防水泵房的地坪标高。
自动喷水灭火系统:
1大、中型幼儿园,总建筑面积大于500㎡的老年人建筑应设置自动灭火系统,并宜采用自动喷水灭火系统。
住宅主体下每个防火分区小于500㎡的地下室储藏间或自行车库,当该建筑设有喷淋系统时应设自动喷淋系统,当该建筑未设喷淋系统时可不设自动喷淋系统。
地下复式汽车库自动喷淋系统应按中危险级Ⅱ级设计,流量参照《全国民用建筑工程设计技术措施》(给水排水2009版)的相关规定确定。
局部设有送回风管(道)的集中空气调节系统的多层办公建筑,当设置空调系统部分的建筑面积之和大于3000㎡但空调风管不穿越防火分区、不穿越楼板,或者设置空调系统的部分建筑面积之和不超过3000㎡时,可不设自动喷水灭火系统。
湿式报警阀不得设于消防控制室内。在确有困难时,湿式报警阀可设于管道井内,但应便于操作并应设置排水设施。水力警铃的设置应符合规范要求。
水泵房、消防控制室和无可燃物的技术层可不设自动喷水灭火系统。
旅馆客房和医院病房可采用边墙型喷头。
其他灭火系统:
净高超过12m的中庭(办公楼无可燃物的中庭除外)需要设置自动灭火系统时,应设置固定消防炮等自动灭火系统。
餐厅建筑面积大于1000㎡的餐馆或食堂,其烹饪操作间的排油烟罩及烹饪部位应设置自动灭火装置,并应在燃气或燃油管道上设置与自动灭火装置联动的自动切断装置。食品工业加工场所内有明火作业或高温食用油的食品加工部位宜设置自动灭火装置。
地下汽车库的建筑灭火器配置可按A类火灾中危险级设计。地下汽车库的汽车疏散坡道在直通室外处可不设置防火卷帘和自动喷水灭火系统。
火灾自动报警及联动控制系统:
火灾报警系统示意图:
概述:火灾自动报警系统是由触发器件、火灾报警装置、火灾警报装置、以及具有其他辅助功能的装置组成的火灾报警系统。
火灾自动报警系统的作用:早期发现和通报火灾,防止和减少火灾危害,保护人身和财产安全。
火灾自动报警系统的工作原理:
安装在保护区的探测器不断地向所监视的现场发出巡测信号,监视现场的烟雾、温度等,并不断反馈给报警控制器,控制器将接收的信号与内存的正常值比较。当发生火灾时,探测器发出的信号符合火灾报警信号时,控制器发出声光报警,显示火灾区域的地址编码,并打印报警时间、地址等,同时向火灾现场和相邻区域发出声光报警,可同时输出控制信号,启动有关自动消防设备。
术语:
触发器件:自动或手动产生火灾报警信号的器件。包括火灾探测器和手动火灾报警按钮。
火灾探测器:能对火灾参数响应,自动产生火灾报警信号的器件。
手动火灾报警按钮:用手动方式起动自动火灾报警系统的器件。
火灾报警控制器(火灾报警装置):为火灾探测器传电、接收、显示和传递火灾报警信号,并能对自动消防设备发出控制信号的一种火灾报警装置。
火灾警报装置:火灾报警系统中用以发出区别于环境声光的火灾警报信号的装置。
警报信号:一种在火灾发生时由警报装置发出的提醒有关人员立即采取行动的特定声、光信号。
中继器:控制器离现场较远,在信号远距离传输中,为加强信号起中转作用以及用来转接其他类型探测器等所加的装置。
输入模块:把联动设备状态通过总线送到火灾报警控制器的装置。
输出模块:接收火灾报警控制器的信号,通过总线启动联动设备的装置。
短路隔离器:用在传输总线上,对各分支线作短路时的隔离作用。它能自动使短路部分两端呈高阻态或开路状态,使之不损坏控制器,也不影响总线上其他部件的正常工作,当这部分短路故障消除时,能自动恢复这部分回路的正常工作。也称总线隔离器。
线制:火灾报警装置与火灾探测器及其它器件之间的连接线制式。
总线:火灾报警系统中控制单元与探测单元等相关部件占用同一线路进行信号传输,此公共通道称为总线。
分路:分路是回路的一个分支,分路占用一个部位号,一个分路可以由一个或多个探测部件组成。
回路:将探测器等部件连接到火灾报警控制器的传输通路。
部位号:火灾报警控制器监视部件的编号。
部位:接入火灾报警控制器一个报警单元(分路)中的火灾探测器所监视的场所。
点:反映火灾报警探测器等部件的地理位置。一个点对应一个安装位置。
地址码:表征探测器等部件地址的编码信号。
编码信号:系统中采用调频、调幅、调脉宽等调制手段给出的代表火灾报警系统中各部件地址或状态的信号。
编码开关:能代表回路部件号的可设置的拨码开关。
编码部件:带有地址码的,占有地址部位号的探测器、中继器、短路隔离器等控制器可查巡的部件统称为编码部件。
编码底座:具有编码功能的探测器底座,作用是确定探测器或回路中其他部件的地址,使探测器分时占用总线。
自动报警系报警及控制流程:
日常具体操作:
系统组件简介:
火灾报警控制器:
火灾报警控制器是火灾自动报警控制系统的核心。
① 能接收探测信号,转换成声、光报警信号,指示着火部位和记录报警信息。
② 可通过火警发送装置启动火灾报警信号,或通过自动灭火控制装置启动自动灭火设备和联动控制设备。
③ 自动监视系统的正确运行和对特定故障给出声光报警。
火灾自动报警系统的形式:
区域报警系统:由区域火灾报警控制器和火灾探测器等组成,或由火灾报警控制器和火灾探测器等组成,功能简单的火灾自动报警系统。能直接接收某保护空间的火灾探测器或中继器发来的报警信号的单路或多路火灾报警控制器。
集中报警系统:由集中火灾报警控制器、区域火灾报警控制器和火灾探测器等组成,或由火灾报警控制器、区域显示器和火灾探测器等组成,功能较复杂的火灾自动报警系统。能接收区域火灾报警控制器(含相当于区域火灾报警控制器的其他装置)或火灾探测器发来的报警信号并能发出某些控制信号使区域火灾报警控制器工作的火灾报警控制器。
控制中心报警系统:由消防控制室的消防控制设备、集中火灾报警控制器、区域火灾报警控制器和火灾探测器等组成,或由消防控制室的消防控制设备、火灾报警控制器、区域显示器和火灾探测器等组成,功能复杂的火灾自动报警系统。显示一个楼层或其中一部分区域的火灾报警装置的状态,当有火警时能发出声光报警信号,与集中控制器连接。
探测器安装间距的极限曲线:
按梁间区域面积确定一只探测器保护的梁间区域的个数:
火灾自动报警系统的设计要求:
一般要求:
火灾自动报警系统应设有自动和手动两种触发装置;
火灾报警控制器容量和每一总线回路所连接的火灾探测器和控制模块或信号模块的地址编码总数,宜留有一定余量;
火灾自动报警系统的设备,应有采用经国家有关产品质量监督检测单位检验合格的产品。
消防联动控制设计要求:
当消防联动控制设备的控制信号和火灾探测器的报警信号在同一总线回路上传输时,其传输总线的敷设应符合消防配电线路敷设要求;
消防水泵、防烟和排烟风机的控制设备当采用总线编码模块控制时,还应在消防控制室设置手动直接控制装置;
设置在消防控制室以外的消防联动控制设备的动作状态信号,均应在消防控制室显示。
火灾警报装置的设计要求:
未设置火灾应急广播的火灾自动报警系统,应设置火灾警报装置;
每个防火分区至少应设一个火灾警报装置,其位置宜设在各楼层走道靠近楼梯出口处。警报装置宜采用手动或自动控制方式;
在环境噪声大于60dB的场所设置火灾警报装置时,其声警报器的声压级应高于背景噪声15dB。
火灾自动报警及联动控制系统的施工安装,应按照《火灾自动报警系统施工及验收规范》 GB50166—2016 相关标准执行。
消防电源:
消防供电负荷等级应按规范确定,当地供电部门提供的供电负荷等级可为参照依据。
在一、二级负荷等级的广播电视中心、医院、电厂等建筑内的特殊场所,若采取自动切断非消防电源方式会造成较大损失的,可采用手动切断非消防电源方式。
配电线路及电器设备防火:
在建筑物内(变配电室除外)敷设的高压供电线路应按消防配电线路要求敷设。
用于防火分隔且按一、二级负荷供电的多个防火卷帘,当涉及2个以上(不含2个)防火分区时,应采用放射式供电。可燃材料仓库的配电箱及开关应设置在仓库外。
火灾自动报警系统:应设置火灾自动报警系统的场所外,下列建筑或场所也应设置火灾自动报警系统:设置机械排烟、防烟系统、雨淋或预作用自动喷水灭火系统、固定消防水炮灭火系统等需与火灾自动报警系统联锁动作的场所或部位;二类高层建筑中旅馆的客房、公共活动用房;大(中)型幼儿园。未设置火灾自动报警系统的建筑当设有防火卷帘时,应在防火卷帘两侧设置火灾探测器,联动防火卷帘下降。
本文共有两个部分。本部分内容包括有:室内外消火栓系统,自动喷水灭火系统,火灾自动报警及联动控制系统。
防排烟系统:
名词解释:
防、排烟系统:建筑物内设置的用以防止火灾烟气蔓延扩大的防烟系统和排烟系统的总称。
防烟系统:采用机械加压送风方式或自然通风方式,防止烟气进入疏散通道等区域的系统。
排烟系统:采用机械排烟方式或自然排烟方式,将烟气排至建筑物外的系统。
机械加压送风:对楼梯间、前室及其它需要被保护区域采用机械送风,使该区域形成正压,防止烟气进入。
机械排烟:采用排烟风机将烟气排至建筑物外的方式。
自然排烟:利用火灾时产生的热烟气流的浮力和外部风力作用,通过建筑物的对外开口把烟气排至室外的排烟方式。
排烟防火阀:安装在机械排烟系统的管道上,平时呈常闭状态并满足漏风量要求。火灾或需要排烟时手动和电动打开,起排烟作用. 当排烟管道内烟气温度达到280℃时关闭,并在一定时间内能满足漏烟量和耐火完整性要求,起隔烟阻火作用的阀门。
建筑防排烟分为防烟和排烟两种形式。
防排烟内容:将火灾产生的烟气,在着火房间或着火房间所在的防烟区内就地排出;防止烟气扩散到疏散通道和其它防烟分区中去;确保疏散和扑救用的防烟楼梯及消防电梯间内无烟,使人员可以迅速疏散,给抢救工作创造条件。
防排烟的主要部位:房间、走道、防烟楼梯间、前室、消防电梯间前室、合用前室。
防烟方式:
不燃化防烟方式:在建筑设计中;尽可能地采用不燃烧的室内装修材料、家具、各种管道及其保温绝热材料,产生烟气量大大减少,烟气浓度大大降低。
密闭防烟方式:当发生火灾时将着火房间密闭起来。这种方式多用于较小的房间 ,因密闭性能好时,也能达到防止烟气扩散的目的。
阻碍防烟方式:在区域边界上设置隔烟和阻烟设施而实现的,这些设施包括防烟垂壁和挡烟梁两大类。
机械加压防烟方式:在建筑物发生火灾时,对着火区以外的有关区域进行送风加压,使其保持一定的正压,以防止烟气侵入的防烟方式。
排烟方式:
自然排烟方式:利用火灾产生的热烟气流的浮力作用和室外风力作用使烟气通过建筑物的对外开口排至室外的方式,实质是热烟气和冷空气的对流运动。
自然排烟口示例:
平时呈常闭状态,火灾时烟感器通过控制中心发出的信号,阀门开启排烟,阀门自动开启,并输出开启信号,也可以远距离手动开启或关闭。
自然排烟的影响因素:室外风向和风速随季节变化; 火灾期间烟气的温度随时间变化; 高层建筑的热压作用随季节变化。
所以,50米以上的一类建筑、100米以上的住宅建筑,自然排烟方式不能满足防排烟的要求。
机械防排烟:
借助机械力作用强迫送风或排气的手段来排除火灾烟气的方式。
送风和排烟可全部借助机械力作用,也可一个借助机械力的作用,另一个则借助自然通风或排烟作用,据此,机械排烟又具体分为三种方式。
机械送风防烟的原理:
机械防烟的烟气控制是利用风机造成的气流和压力差结合建筑物的墙、楼板、门等挡烟物体来控制烟气的流动方向。
系统组件简介:
防排烟系统的施工安装,应按照《采暖通风与空气调节施工验收规范》 GB50243—2016相关标准执行。
防烟、排烟及采暖、通风和空气调节:
机械加压送风系统的送风量,应按门洞风速法计算,开启门的数量应按防火规范的有关要求确定。门洞断面风速宜按以下确定:当楼梯间机械加压送风、合用前室机械加压送风时,取v=0.7m/s;当楼梯间机械加压送风、前室不送风时,门洞断面风速取v=1.0m/s;当楼梯间不设机械加压送风、前室送风时,门洞断面风速取v=1.2m/s。
自然排烟窗应设置在顶棚上或外墙上方,当设置在外墙上时,其下缘距室内地面的高度不宜低于储烟仓的下沿高度或室内净高的1/2,并应有方便开启的装置。低于储烟仓的下沿高度或室内净高1/2的开窗面积不应计入有效自然开窗面积,对于楼梯间、前室、合用前室以及规范、标准等有特殊规定的其它场所除外。
楼梯间和前室(合用前室)的机械加压送风系统,其加压送风量与余压值两者均应满足规范要求。在检测及验收时,均应测试余压值。
除设置在室外的风机,建筑内的排烟风机和加压送风机应各自独立设置在专用机房内,该房间应采用耐火极限不低于2.0h的隔墙和1.5h的楼板及甲级防火门与其它部位隔开;当空间条件受到限制时,可设置在专用空间内,该空间四周的围护结构应采用耐火极限不低于1.0h的不燃烧体,风机两侧应有足够的安装维修空间。
住宅建筑如果地下室≤2层或地下层室内地面与室外出入口地坪高差≤10m的非营业性场所,地上部分楼梯间为自然排烟的,地下部分楼梯间可不设置机械防烟;楼梯间的前室或合用前室,其地上部分为自然排烟的,地下部分楼梯间的前室或合用前室可不设置机械防烟。
对于多层建筑中净高大于12m的高大空间(含中庭)的排烟,可参照《建筑设计防火规范》(GB 50016-2014) 。
建筑高度超过50m的一类高层公共建筑中,仅服务于50m以下功能空间的符合自然排烟条件的防烟楼梯间及前室(合用前室)可采用自然排烟方式。
地下室(半地下室)防烟楼梯间与地上楼梯间均需设置加压送风系统时,宜分别独立设置。受建筑条件限制时,可与地上部分的楼梯间共用机械加压送风系统,但应分别计算地上、地下的加压送风量,共用加压送风的系统设计应采取有效措施满足地上、地下的送风量要求。
设置于地下室(半地下室)或地上四层(含)以上的歌舞娱乐放映游艺场所,当设置机械排烟系统时排烟设计应满足以下要求:
(1)当房间面积≥50㎡时应设置排烟口,房间面积<50㎡时宜设置排烟口;
(2)内走道应设置排烟口,且其排烟宜设置成独立的排烟系统;
(3)当多个相邻的房间均设有排烟口时,可根据需要多个房间合并成一个防烟分区,每个防烟分区排烟量不得小于12000m3/h;当房间面积较小(面积<50㎡)且未设有排烟口时,房间面积应计入内走道的排烟计算面积。
(4)当设置机械补风时,系统宜独立设置。内走道和面积较大的房间(面积≥50㎡)应设置补风口,补风口的布置应有利于排烟和人员疏散。
水泵房、制冷机房、空调机房、变配电室、柴油发电机房、燃油(燃气)锅炉(机组)的机房等机电用房,可不设置排烟设施。
档案馆内设置气体灭火系统或细水雾灭火系统的场所,可不设置排烟设施。
地下非机动车库,当建筑面积大于500㎡或分隔成多个隔间使用且建筑总面积大于200㎡时,应设置排烟设施。
半地下室汽车库及半地下建筑在自然排烟条件较好的情况下,最不利点到自然排烟口的距离不超过30m且自然排烟口面积不小于占地面积的2%时,可不设置机械排烟系统。
采用自然通风方式的开放式避难层(间),应设有不同朝向的可开启外窗或百叶窗,其有效面积不应小于该避难层(间)地面面积的5%,且每个朝向的有效面积不应小于2.0㎡。
排烟窗的有效面积按下列方式确定:
(1)对于悬窗、平开窗、顶开窗等,当开窗角大于等于70°时,其有效排烟面积可按其窗面积计算;当开窗角小于70°时,其有效排烟面积应按窗的开启投影面积计算;
(2)侧拉窗的有效排烟面积按可开启的最大窗口面积计算;
(3)百叶窗的有效排烟面积按窗的有效开口面积计算;
(4)其它可开启外窗型式的有效面积计算按有关规范、标准等的规定进行。
防火卷帘:
防火卷帘是一种特殊的卷帘门,通常安装在建筑中需要进行防火分隔的部位的上方或侧面。平时卷起,当发生火灾时,由火灾报警系统或人工控制展开,起到隔火、隔烟和隔热的功能,阻止火灾蔓延和烟气扩散。
应急照明及疏散指示(简述):
消防应急照明、疏散指示标志:
按一、二级负荷供电的应急照明应设置专用的应急照明配电箱,三级负荷可不设。按一、二级消防负荷供电的建筑底部设置小型商业服务网点时,如采用自带电源型消防应急灯具,可不设置专用的应急照明配电箱,但应设置专用的配电线路。
消防材料标准:
自动喷水灭火系统、消火栓系统:
角钢:
槽钢:
热镀锌钢管:
阀门配件:
喷头:
压力表:
消防泵和稳压系统:
消火栓箱:
水泵接合器:
火灾自动报警系统:
KBG管
金属线槽
防火涂料:
阻燃电线:
金属软管:
报警控制器及报警设备:
防排烟系统:
金属类 镀锌铁皮:
280℃防火阀
防火隔断:
防火门
防火卷帘:
应急照明及疏散指示:
应急疏散指示灯
关于特殊场所的消防设置:
电影厅、法院审判厅等为固定座位时,其厅室面积及相关消防设计应参照观众厅要求执行;设置在四层及以上的电影厅、法院审判厅等确有困难时,厅室面积可大于400㎡,但应满足以下要求:
(1)厅室应采用防火墙、甲级防火门与其他部位分隔;
(2)厅室应选用合适的自动灭火系统,设置自动喷水灭火系统时,室内的喷头应采用快速响应喷头;
(3)厅室应设置独立的机械排烟系统和补风系统;
(4)厅室座位数不得超过400座;当厅室建筑面积大于600㎡,该厅室座位数与面积比不应大于1/2。
设置在四层及以上宴会厅、餐厅、员工食堂、体育比赛、训练用房等可不考虑厅室面积限制。
教学建筑、食堂、菜市场采用三级耐火等级的建筑时,不应超过2层;采用四级耐火等级的建筑时,应为单层;设置在三级耐火等级的建筑内时,应布置在首层或二层;设置在四级耐火等级建筑内时,应布置在首层。
一、二级耐火等级菜市场的防火分区每层最大允许建筑面积,可按规范规定增加1.0倍,单层敞开式菜市场的防火分区最大允许建筑面积不限。一、二级耐火等级菜市场每层每个防火分区应设置不少于2个安全出口,且应符合疏散距离要求,可不考虑疏散宽度。 单层菜市场的钢结构可不采取防火保护措施;单层菜市场总面积不超过防火分区每层最大允许建筑面积时,可不设置自动灭火系统。
156.排屋、别墅户内楼梯可采用敞开楼梯,该楼梯地下与地上部分在首层可不作防火分隔。但应满足以下要求:
(1)地上部分层数不超过3层;地下部分层数不超过1层;
(2)直通室外的安全出口应设置在离该楼梯小于等于15m处。
(3)户内任一点到室外出口的距离不应超过30m,当设有自动喷水灭水系统时,疏散距离可增加25%,其中楼梯疏散距离按其水平投影计算。
(4)户内楼梯的宽度可按《住宅设计规范》GB50096关于套内楼梯的要求执行。
关于公路隧道:
(1)公路隧道项目项目分级及消防设施配置应按《公路隧道交通工程设计规范》(JTG/TD71-2004)执行,其中长度不超过500m的公路隧道可不设置消火栓系统。
(2)长度超过5000m的公路隧道采用纵向通风时,应设置通风竖(斜)井,并在通风竖(斜)井前后各200m范围内设置自动灭火系统。
(3)长度超过500m的公路隧道应设置人行横通道,间距宜为250~300m;长度超过1000m的公路隧道应设置车行横通道,间距宜为750~1000m。人行横通道和车行横通道的设置应考虑防火分隔、安全疏散和防止烟气蔓延的措施。
(4)长度超过3000m的公路隧道应限制危险化学品车辆通行。
关于体育建筑:
(1)体育馆、游泳馆等体育建筑可按照单、多层建筑执行,但应满足以下要求:
①主体建筑为单层,配套用房建筑高度不超过24m;
②主体与配套用房之间采取防火分隔措施、安全疏散完全独立。
(2)体育场馆比赛大厅(含看台和场地)和观众休息厅可按一个防火分区设计,看台人员可通过观众休息厅疏散至安全出口。但应满足以下要求:
①观众休息厅仅可用于人员通行和休息,观众休息厅应采用不燃、难燃材料装修,休息桌椅应为不燃材料,且不得影响人员疏散。
②比赛大厅看台任一点至比赛大厅通至观众休息厅的疏散门距离不应超过37.5m;休息厅内任一点至安全出口的最大步行距离不应超过40m。
③休息厅与比赛大厅之间应采用耐火极限不低于2h的隔墙和甲级防火门分隔。
④观众休息厅与相邻功能用房(卫生间和淋浴间除外)均应采用耐火极限不低于2h的隔墙、甲级防火门和防火卷帘分隔。
⑤观众休息厅和比赛大厅应分别设置独立的排烟设施。泳池看台区和戏水池区在计算排烟量或自然排烟口开窗面积时,水区面积可不计入。
⑥休息厅应设置自动灭火系统,喷头应采用快速响应喷头。游泳馆的泳池上空可不设置自动灭火系统和火灾自动报警系统。
⑦体育馆看台应采用灯光型疏散指示标志,观众席和运动场地应急照明的平均水平照度值不应低于20lx。主要疏散通道应急照明地面最低照度不应低于5Lx。
(3)体育场馆比赛大厅场地人员应通过“安全疏散通道”疏散至室外,“安全疏散通道”应满足以下要求:
①该通道不能用于人员通行外的其他用途;其装修材料应采用不燃材料。
②该“通道”两侧墙应为耐火极限不低于3h的不燃烧体隔墙,通道顶板应为耐火极限不低于1.5h的不燃烧体;隔墙上不得开设门窗洞口,与“安全疏散通道”连接的其它通道确有困难要进入该“安全疏散通道”的,入口处应设防烟前室,该前室的门应为常闭式防火门或火灾情况下可自动关闭的常开式防火门。
③该“通道”顶板下不得穿越与其无关的管道和线路;该“通道”的应急照明地面最低照度不应低于5Lx。
(4)体育场馆比赛大厅看台、观众休息厅的钢柱、钢梁、屋顶承重钢构件距楼面垂直距离不超过8m部位应采取防火保护措施,超过8m的部位可不采取防火保护措施。
(5)消防用电设备应按一级负荷供电。
关于商业服务网点:
(1)商业服务网点的总高度不应大于7.8m,内部可设一座疏散楼梯,设置形式可不限,其室内任一点到封闭楼梯间或直通室外出口的距离不应超过22m,当设有自动喷水灭水系统时,疏散距离可增加25%,其中楼梯疏散距离按其水平投影计算。商业服务网点的疏散楼梯宽度不应小于1.2m。
(2)物业用房、居委会办公、社区活动等小区配套服务用房符合商业服务网点要求的,可以参照住宅建筑底部的商业服务网点的要求执行。
(3)独立建造的不超过2层的商店建筑,符合商业服务网点要求的,可以参照住宅建筑底部的商业服务网点的要求执行;
(4)设置在非住宅建筑首层及二层的商店全部符合商业服务网点要求,可以参照住宅建筑底部的商业服务网点的要求执行。
(5)设置在非住宅建筑首层及二层的商店局部符合商业服务网点要求且与首层、二层其他功能之间符合防火间距要求(较高面墙比相邻较低面墙屋面高15m及以下范围内的外墙为无门窗洞口的防火墙且较低面墙屋顶无天窗或洞口、屋顶耐火极限不小于1h)的商店,可以参照住宅建筑底部的商业服务网点的要求执行。
(6)设置在非住宅建筑底部的商店参照住宅建筑底部的商业服务网点的要求执行时,其消防设施仍应按整体建筑控制。
关于物流建筑:
(1)物流建筑应按分拣等作业和储存功能划分不同的防火分区,储存区与其他功能空间之间应采用防火墙分隔。
(2)储存区的防火要求应按按本规范有关仓库的规定确定,其中一、二级耐火等级建筑中的丙类2项(除自动化控制的高架仓库,棉、麻、丝、毛及其他纺织品、泡沫塑料等仓库外)和丁、戊类物品储存区的防火分区最大允许建筑面积和储存区部分建筑的最大允许占地面积,当库区全部设置自动喷水灭火系统和火灾自动报警系统时,可按规范(不含注)的规定增加3.0倍。
(3)作业区的防火要求可按有关厂房的规定确定。
关于人员密集场所消防安全疏散要求:
(1)平时需要关闭或营业时需要关闭的安全出口的门应设置报警式逃生门锁系统或其他具有类似功能的能就地打开的门锁系统。
(2)疏散通道上平时需要常开或经常性开启的防火门可按常开式防火门要求设置。
(3)消火栓箱、灭火器等消防设施周围应用固定标线划定不小于1m×1m的操作场地,防火卷帘下方应用固定标线划定范围防止堆物影响防火卷帘降落。
(4)商场、超市等经营性人员密集场所的疏散通道的净宽度不应小于1.4m,两侧应采用固定黄色标线,防止疏散通道被占用。
(5)商场、市场、超市及歌舞娱乐放映游艺场所疏散走道上应设置能保持视觉连续性的疏散导流标志,并应符合下列条件:
①设置在地面上时,宜沿疏散走道或主要疏散路线的中心线布置;
②设置在墙面上时,其中心线距地面高度不应大于50㎝;
③疏散导流标志宜连续布置,标志的宽度不宜小于8㎝,长度不宜小于30㎝;
④当间断布置时,疏散导流标志间距不应超过3m;
⑤当疏散导流标志遇到的门不是疏散出口或安全出口时,宜在该处的地面连续指示;
(6)宾馆酒店的房间及KTV包厢内应设置视屏切换或语音提示系统。
施工质量通病:
消防水系统施工安装质量通病:
管道安装:管道安装时不清理管道内部的杂物,主干管在没有全部完工时,不及时封闭管口,以致于试水时杂物卡住阀门或止回阀。
避免方法:管道安装前一定要检查及清理管道内的杂物,主干管在没有全部完工时,一定要想办法用东西封闭管口,以免杂物进入管内,试压之前用水冲洗管道。
管道敷设时,管道的中心线与梁柱,楼板的最小距离,控制不到规范规定要求。
避免方法:管道安装时,管道的外边缘与梁柱楼板一公定要留三到五公分的距离,以便于土建批灰。
管道直径等于大于50mm时,配水干管或配水管,以及管道改变方向时,没有增设防晃支架。
避免方法:管道改变方向转弯时,在转弯的两边30㎝以内增设防晃支架,DN100以上的管道作门字支架,DN80以下的管道作工字支架。
地下室或地下构筑物外墙有管道穿过的,未按设计要求及标准图制作安装防水套管,防水套管安装高度、坐标位置不准确,不平整,影响防水效果;管道穿过结构伸缩缝,抗震缝及沉降缝敷设时,没有采取抗震,沉降防护措施;管道穿过楼板或穿墙时,漏设套管,不按照卫生间、防水间、住宅办公室套管出地平高度要求放置;套管用电气焊割切割不平整;套管与管道的间隙未采用不燃烧的材料填塞实,间隙缝宽度不一致;管道穿过建筑物的变形逢时,不加柔性短管。
避免方法:地下室或外墙一定要按标准制作防水套管,严格尺寸,位置准确;管道穿墙或楼板时,一定要安装套管,套管高出地平面5㎝,套管要用切割机切割,安装时管道一定要在套管的中间,间隙缝宽度一致,穿楼板的套管顶部高出装饰面20mm,底部平楼板底;卫生间的套管,在安装时,套管顶部高出装饰面50mm,底部平楼板底;穿墙套管,两端平墙面饰面。
管道丝口连接有绝丝现象,外露丝口过长现象,对规范要求外露2-3扣的规定控制不严;套丝太小,密封填料太少,包密封填料不均匀;套丝偏丝、上管错丝现象,以致管道连接不直;不清理丝口的密封填料。
避免方法:发现管道有绝丝现象时,必须重新更换,重新攻丝;外露丝口最多3扣丝口;套丝必须与管件的丝口相适合,发现有偏丝现象时,检查套丝机是否有问题,如有问题应立即更换套丝机;上管错丝时,必须重新上管,直到管道平直;包密封填料要适中,并且要均匀附在丝口上,接管完成后,丝口的密封填料必须清理干净。
法兰连接时,螺栓直径和长度不符合标准,拧紧后突出螺母的长度超过规范的规定;安放双垫片或在螺母下不加垫片;紧螺丝用力不均匀,半边紧半边松,导致胶垫挤压不均匀、法兰内胶垫放置错位、衬垫凸入管内,法兰纹内有沙浆,泥土不清理干净;安放双垫偏垫的现象导致漏水。
避免方法:法兰连接时,法兰纹内的泥土沙浆一定要清理干净,法兰螺丝的直径和长度必须符合标准,螺丝两边一定要加垫片;紧螺丝时必须对角同时收紧,一边紧一边查看胶垫的挤压情况,四周的挤压程度一样;胶垫安放四周的距离必须一致不错位。
卡箍(套)式连接两管口端不平整,有缝隙,两沟槽深度不一致,不均匀,上螺栓后管道不平整,卡箍(套)安装方向不一致。管与管之间缝隙太大,或间隙太大,卡箍内的胶垫不能密封管口。
避免方法:卡箍式连接时,压槽的深度要一致,两管口一定要平整,尽量不要有缝隙;卡箍套的安装方向必须一致;安装卡箍时一定要用洗洁精或洗衣粉水,不能硬紧螺丝;螺丝一定要收紧收到位。
粘接管道,管口抹胶不均匀,管口有缝隙;多出流挂在管道上的胶不及时清理。
避免方法:使用粘胶连接管道时,先要清理干净丝口的杂物及油污,抹胶要均匀,挤压多出流挂在管道上的胶必须及时清理干净。
横向安装的管道,当局部区域难以利用末端排水管排水时,没有采取相应的排水措施。
避免方法:在横向安装的管道最低处增设一排水口,视情况安装阀门
喷头小于或等于5只时,在管道低凹处漏设排水堵头。喷头数量大于5只时,漏装设带阀门排水管。
避免方法:在管道低凹处增设排水堵头,大于5只时不要忘记装设带阀门的排水管)
喷头安装时,不使用专用板手,利用喷头的框架施拧。
避免方法:使用专用或活动扳手,严禁利用喷头的框架施拧。
喷头安装溅水盘与吊顶、门、窗、洞口或墙面的距离不符合设计要求。
避免方法:严格按照规范要求安装。
喷头溅水盘高于与附近梁底或高于宽度小于1.2m通风管道腹面时,喷头溅水盘高与梁底,通风管道腹面的最大垂直距离与规范规定安装控制不严。
避免方法:严格按照规范要求安装。
喷头安装在不到顶的隔段附近时,喷头与隔段的水平距离和最小垂直距离不符合规范规定。
避免方法:严格按照规范要求安装。
报警阀组及水力警铃,水流指示器,信号阀,节流装置等其他组件安装不符合设计要求及规范规定
避免方法:报警阀组安装时,应安装在便于操作的明显位置,距室内地面高度宜为1.2cm;两侧与墙的距离不应小于0.5cm;正面与墙的距离不应小于1.2cm;报警阀组凸出部位之间的距离不应小于0.5cm;安装报警阀组的室内地面应有排水设施;报警阀组上的排水管在有条件的情况下应单独安装一条排水管;水力警铃应安装在公共通道或值班室附近的外墙上,管道公称直径为20mm时,其长度不宜大于20米;警铃回水管不能与报警阀的排水管连接在一条管上,应独立安装一条管;信号阀门应安装在水流指示器前的管道上,与水流指示器之间的距离不宜小于30cm;节流装置等一定要符合设计要求及规范。
延迟器与水力警铃管安装不水平,不垂直。
避免方法:延迟器与水力警铃管安装一定要垂直水平,并且有顺序不交叉地排列管道,注意延迟器的方向。
阀门安装时没有考虑到检修。
避免方法:在安装阀门前首先考虑一下以后的检修方不方便在进行安装。
室内消火栓安装:
消火栓口中心距地面尺寸控制不在规定范围。
避免方法:消火栓口中心距地面尺寸按新规范1.1m安装,最大不超过±2公分。
消防栓口安装在门轴侧。
避免方法:消防栓口与门轴一定要成反方向。
阀门中心距箱侧面,箱后内表面规定尺寸控制不严。
消火栓箱体安装不平整、不牢固。
消火栓箱体安装不正歪斜。消火栓箱体安装要平整牢固,垂直水平,采取水平尺或吊线进行调整。与土建配合不到位,土建补洞,挤加砖块,箱体变形,消火栓箱门安装不上。
避免方法:土建补洞时,上体上方一定要加钢筋再补砖,侧面不能用大力塞砖。
带有自救带的短管开口低,安装使用维修不方便。
消火栓箱门铝合金边框,阻挡消火带卡口与消火栓口连接。
左开门、右开门定位不清,栓口安装位置颠倒,影响使用功能。
避免方法:栓口一定要安装在开门的反方向。
支吊架制作与安装:
支吊架制作前,对施工现场不测量、计算不仔细,安排不周到;管道安装时,卡环孔错位,重新打孔,管架上出现废孔现象。
避免方法:在计划支吊架时,对现场反复测量计算,管道安排合理,在安装支吊架时必须拉线安装支吊架。
用气电焊割切支架、割孔。
避免方法:不允许用电气焊割切支架及割孔。
制作的支吊架不正,歪斜。
避免方法:制作支吊架时必须用角尺打两边角度,或用拉对角线的方法来制作支吊架。
在安装好的支架侧焊接支架、安装管道,一架两用。
避免方法:不允许再在支架侧焊接支架,不允许一架两用。
同一房间的立管支架,在没有特殊要求标高、间距的情况下,没有安装到同一标高上。
避免方法:立管支架在没有特殊要求标高间距的情况下,必须安装在同一标高位置。
安装的支吊架不在一条线上。
避免方法:同一平面横管支吊架,必须安装在一条线上,与喷头的距离统一为40cm。
安装的支吊架不水平,有的高有的低。
避免方法:有条件的情况下用红外仪器进行安装,或者拉线安装。
支吊架安装前不做防锈处理。
避免方法:支吊架制作好以后,必须先进行防锈处理,再进行安装。
管道的支吊架与喷头之间的距离小于300mm。
避免方法:支吊架与喷头之间距离统一为400mm。
管道转弯处支吊架分布不均匀,甚至没有。
避免方法:管道转弯的时候,两边离转弯处300mm必须有支吊架。
油漆:
锈蚀清理不干净,油漆涂刷附着力差,有脱落现象。
避免方法:管道表面先要清理干净,才能进行油漆。
油漆涂刷色泽不均匀,有起泡,流淌和漏涂缺陷。
避免方法:调油漆时天那水不能过多,一定要调均匀,油管时不能太厚,不要流淌,油仔细,不能漏刷。
焊口外露丝口不及时做防腐处理,涂刷防锈漆不均匀。
避免方法:焊口结束冷却时,一定要先用防锈漆作好防锈处理,外露丝口先涂防锈漆再刷面漆。
试水:
试压出现严重漏水,浸泡电梯。
避免方法:在电梯未安装好之前必须完成试压,条件不允许的情况下,必须分段封堵后试压。
压力超过1.0Mpa时,直接用铁锤敲打卡箍,不安全。
避免方法:试压中发现有卡箍漏水时,在管网压力有1.0Mpa左右时,不能用铁锤直接敲打卡箍,以免发生爆卡箍的现象,从而触发安全事故。
给管网放水之前,对消防箱内的栓头及铜闸阀以及喷淋的喷头、管口检查不仔细,导致水浸泡东西。
避免方法:在给管网放水之前,一定要对每一个消防箱内的栓头口与铜闸阀检查到位,全部关好;检查每一个位置的喷头是否完全安装,并且查看每一个喷头是否完好,仔细检查管道是否有管口未封堵,确定确实没有遗漏的地方,然后开始给管网放水,再检查。
消防电系统施工质量通病:
探测器底座安装接线不统一(不在分极性的情况下)。
避免方法:同一种性质的线路颜色必须统一。
主线与平面线颜色不统一。
避免方法:主线与平面线的颜色一定要统一。
模块箱内线路标示不清晰。主线终端与末端标示不清晰。
避免方法:必须加线码及贴标签用文字标识,用透明胶包牢固
线管与线槽刷的防火漆不到位。
避免方法:刷防火漆时一定要仔细,不能漏刷,要均匀。
线槽与线槽之间没跨接。
避免方法:线槽与线槽之间必须作跨接。
线槽内有接头。电线接头没有用端子连接与焊接。
避免方法:导线在管内或线槽骨不应有接头或扭结,导线的接头应在接线盒内用焊接或用端子连接。
探测器安装时离周边的遮挡物太近(小于0.5米),离风口太近(单风口小于1.5米, 多孔风口小于0.5米),安装时不居中。
避免方法:探测器安装时离周边的遮挡物不能小于0.5米,离空调送风口边的水平距离不应小于1.5米,至多孔送风口的水平距离不应小于0.5米,并且安装时要居中。
探测器同其他设备安装时不在同一直线。
避免方法:探测器安装时同其他设备安装时一定要在同一直线上。
预埋线盒安装设备时不牢固易倾斜。
避免方法:想办法一定要加固,不能让其松动。
同一报警区域模块没安装在同一地方,不便于维修。
避免方法:同一报警区域模块没安装在同一地方时,多加一个模块箱。
探测器安装时指示灯没有对走道及房间入口处。
避免方法:探测器安装时指示灯尽量对走道及房间入口处。
潮湿处需套软管时应用包塑软管不易生锈。
避免方法:刷油性防火涂料。
不同电压等级导线不应在同一线槽内。
避免方法:广播与电话必须单独作一条线管。
软管同线管直接连接。软管连接超过规定距离。
避免方法:在线管末端加一线盒,软管长度不能超过2米。
线管安装在天花内未固定。
避免方法:线管安装在天花内必须用吊码固定,不能随意放在天花内。
安装设备编码与主机显示位置不相对应。
避免方法:安装设备时,设备的编码必须与主机显示的位置相符合。
线盒与两端离墙码距离太近。
避免方法:线盒两端固定离墙码与线盒的距离不超过300㎜。
线盒内漏设护嘴。
避免方法:线盒内一定不要忘记设护嘴。
设备安装时未查线即安装。
避免方法:设备安装时必须先查线再安装。
上线盒盖时损伤电线。
避免方法:用机丝上线盒盖。
施工质量通病展示:
本文共有两个部分。本部分内容包括有:防排烟系统,防火卷帘,消防材料标准,施工质量通病。(完)
本文来源于互联网,暖通南社整理编辑。


















































































































