农村自建房到底有多辛苦?叶先生说到:“1年的工期,我整整廋了12斤!”
农村自建房的确不容易,不断下降的体重最直观地表达出了叶先生的辛苦。接下来,我们一起来听听叶先生是如何花35万,将自家的三层欧式小洋楼修建起来的吧!

叶先生:
大家好,我姓叶,来自广东。我关注住宅公园很久了,每天都看各位朋友的建房晒家文章,特别感同身受,所以我也决定来晒一晒我全家这一年多以来的劳动成果。
图中看到的就是我家的房子,带有一个小庭院。我和妻子是90后的小两口,宅基地是推翻了爷爷建的旧房子空出来的。房屋目前在收尾工作,弄好卫生搬好家具就能入住了。
我家宅基地占地10×20米,呈狭长型,一栋住宅再搭配一个庭院刚刚好。我和妻子参考了网上的一些建房图纸,又加入了自己的想法,然后找学设计的朋友出了简单的户型效果图。
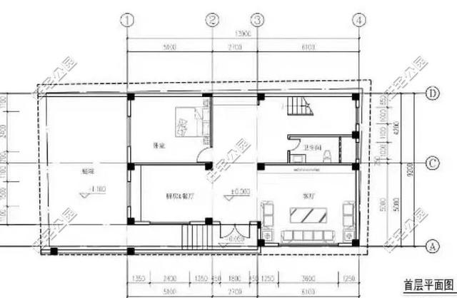
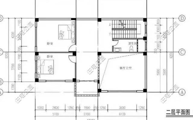
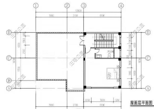
平面布局图放出来给大家参考参考。
户型占地118平,建筑面积307平,还外加了一个60平的小院。
有了图纸,我家于2018年3月开始动土施工。
由于父亲的离世,建房重担全压在了我一个人的身上,好在我岳父年轻时曾从事过建筑方面的工作,对建房懂的很多,我请到岳父帮忙监工,我则一边上班一边配合监工。
因为岳父懂得一些建房知识,所以我选择了以190元一平的价格包工给了农村施工队,施工内容包括土建、房屋室内批灰等。
请到的施工队技术还不错,岳父一边监工,一边指导纠正,眼见着房屋主体就建出来了。
坡屋顶砌筑完成,开始外墙抹灰。
就在外墙抹灰完成,准备喷涂真石漆时,我们和包工头之间的沟通出了问题,还出现因意见不合而争吵的现象。朋友们建房时,一定要和施工队及时沟通,尽量避免因沟通不及时而导致的问题出现。
房屋真石漆装饰完成时,正赶上冬末,院子旁的茶花树开的正灿烂,这份美好我用相机记录了下来。
在外墙施工时,室内装修同时进行。
我家室内是另请施工队装修,全屋扇灰21元一平。我家的硬件设施,如门、窗等,我都买的品牌货,讲究的就是安全与耐用。
我家露台上的柱子采用石材和瓷砖搭配,这样所需成本比较低,也十分美观。
在建房的一年时间,我从动工时的140多斤,整整瘦到了120多斤。充分证明了,农村自建房真的很辛苦呀...
接下来我带大家去室内看看。
室内装修都是我随便设计的,毕竟农村自建房,资金十分有限,一切都要以实用、实惠为主,太过华丽的装修不实在。
我家装修整体以清新的浅色系为主,搭配上实木家具,美观又大方。
这个电视背景墙是我跑到佛山找厂家定制的,微晶石仿石柱材料也是我自己去买的,花了9000多元,然后找人装好花费了2000多元。
大气时尚的挑空客厅搭配稳重深沉的欧式窗帘,装饰出来的效果真不错。
圆形的欧式餐桌椅,方便一大家人聚餐吃饭。
我利用一个多功能置物架分开餐厅与厨房,空间隔断不显得那么生硬,也方便平日上菜。
这是家中的老人房,设计在一楼,简单的几样家具,能满足老人的日常生活所需。
顺着楼梯,我带大家去二楼看看。
这是二楼的走廊,连通室外阳台。
这是娱乐室,我买了一张麻将桌,以后再布置点家具,方便平日在家打打麻将。
卧室我精心布置了一番。
卧室的衣柜都是我找装修公司定制的,柜子做出来很漂亮,但安装师傅技术一般,我每天都监督着师傅安装,这才有了这个效果。
这是主卧,我个人比较偏好现代风格,所以选择了简单个性的桌子和床,整体色调也以灰色为主。
我个人觉得还是挺不错的,毕竟农村建房,按自己的喜好来就好。
前面和大家讲到了,我家还有个60平的小院子,农村自建房,的确庭院是最不能少的。
我家院子占地不大,简单布置一番即可。
一个观赏水池,能提升庭院的整体气质。一个雨棚,实用又美观。
雨棚是我找厂家定制的,花了5000多元,主要用来遮挡鱼池和家中的电动车。
小院布置就不用麻烦工人师傅了,一家人齐上阵,亲自动手布置心爱的庭院。
我辗转去了佛山七八次,才把鱼池所需的假山买了回来,然后自己安装好。
岳父主要负责,我们搭副手,水池眼见着就弄好了。
你们还别说,装饰好假山,种养好花草、鲤鱼,还真是那么回事,瞬间提升了农村小院的水平。
到这里,我家房子就介绍完了。
在这一年里,我过的很充实,收获了很多朋友的支持,也学习了很多建房知识,更收获了我这黝黑的皮肤...
这是我妻子拍的,看我这肤色差距,就知道农村建房不容易。不放心农村施工队,所有事情就得亲力亲为,好在我有一个懂得建房的岳父,真的少了很多麻烦事。在这里我要特别感谢岳父:辛苦了!谢谢您为这栋房子的付出!
最后和大家说说造价:
我家房子于2018年3月开始动工,2019年8月完工,目前还剩一点收尾工作,整体打扫一番也可以入住了。
我家以190元每平包工给农村施工队,建材都是我和岳父亲自去购买的。我记得刚开始建房时,钢筋特别便宜,才3800元一吨,后来涨到了4300元一吨。房屋主体共花费了35万。
室内装修方面,全屋吊顶共花费了35000元,瓷砖均购于佛山,花费4万多。灯具购于中山,花费1.2万。沙发、衣柜、酒柜等家具,共花费了10万左右。全屋装修人工费花费12万。
庭院的水池共花费了8000多元,房屋总造价我还没有算,想等到全面完工了再仔细计算一下。
这栋三层带小院的农村住宅建成了,我还是相当满意的。其中我家建材购买的比较便宜,且是岳父在监工,所以少花了很多冤枉钱。
在土建方面,我没什么好说的,毕竟农村施工队的水平大家都知道,大问题不多但小问题不断,家里有个懂建房知识的人监工,这些问题也都能解决。
室内装修方面就水分多了,就拿我家的吊顶为例吧,当时我们走了很多厂家,都做的不怎么样,但我当时不懂,厂家也不会因为你不满意而进行调整,一个地方不好,就会引起后面的各种麻烦。所以大家建房时,一定要擦亮眼睛,选择技术过硬的厂家和施工队。
到这里,我家房子就和大家介绍完了。
说实话,我还是特别满意自家房子的。有很多朋友会羡慕我家宅基地比较大,也有朋友会羡慕我家房子建得便宜,而我觉得开心的是瘦了12斤,这就是痛并快乐着!但这也说明,农村建房的确不容易,各位朋友你觉得呢?







































