本案位于一处清幽之地,有山有水,面积1000平米,独栋别墅,装修造价280万。主人优雅绅士,希望打造一个现代时尚、身心舒畅的生活居所。整个别墅分为三层,负一为娱乐、休闲空间,一层为会客起居空间,二层则为卧室等私密空间,采用大大的落地玻璃及宽大门窗、内外互动、使室内外景观融为一体,开阔的视野释放无限自由。
在设计中融入了更多的自然素材,灰褐色的花岗岩护墙,蓝色的池水,木质的客厅地板再搭配白色冰裂纹的大理石,墙布榉木木皮,粉色系家具,整个空间的气质低调奢华。

客厅
客厅大大的落地玻璃设计,无阻碍的空间布局,极大的增强了视野,没有背景墙、没有特殊造型,讲究结构、美学、材质的碰撞,软装的搭配,让人随意自由。亮黄色的单人沙发是客厅最抢眼的色彩软装,增加空间的活跃感。
地下室客厅
地下一层客厅,圆滑的亚克力吧台,利用灯带和筒灯的灯光效果,与金属感的墙面设计相互碰撞,搭配简约的灰色布艺沙发和原木地板,是奢华与简约的碰撞融合。
餐厅
宽大的餐厅与厨房相连,仅用极细边框的玻璃推拉门隔开,运用实木皮与大理石的自然元素,并把花园与后山的景观引入室内,使人心旷神怡。
厨房
厨房宽敞的空间,利用墙柜、地柜等形式,形成强大的收纳功能,灰色大理石墙面、白色石英材质的岛台和杏色柜门的结合,使得厨房整体干净整洁,宽敞舒适!
主卧1
主卧大量使用原木材料装饰,没有主灯源,采用灯带、筒灯、壁灯与装饰元素的效果碰撞来营造卧室的温馨氛围。灰色硬包背景墙,与床、床柜和地毯同色系,整体温馨舒适,略带轻奢感。
主卫
深灰色不规则纹理的大理石墙面地砖,透明玻璃做干湿隔断,原木材质的简约浴室柜、一幅挂画。简单的装饰,是主卫明亮舒适宽敞。
儿童房
长方形的户型结构,灰白作为主色调,灯带作为房间主光源。大落地窗的设计,增加室内空间的视野延伸。
衣帽间
这种步入式独立衣帽间简直是所有女孩子一生都向往和喜爱的空间,独立摆放首饰品的玻璃台柜、亚克力玻璃作为衣柜门,整齐排列的衣服,,每天要穿什么都安排的明明白白的。合理舒适的功能划分,嵌入式强收纳的设计,使得衣帽间干净整洁。
休闲区
负一楼的整体是休闲功能为主,酒吧、影视、健身、麻将室等等,还有一个大大的泳池碧蓝池水与岩壁式的墙体相呼应,仿佛岩山涧流水,一缕清香幽静。
楼梯
卫生间
游泳池
直形的线条感中穿插了白色旋转楼梯,风景在室内外流转回归家的安逸与舒适。
游泳池楼梯
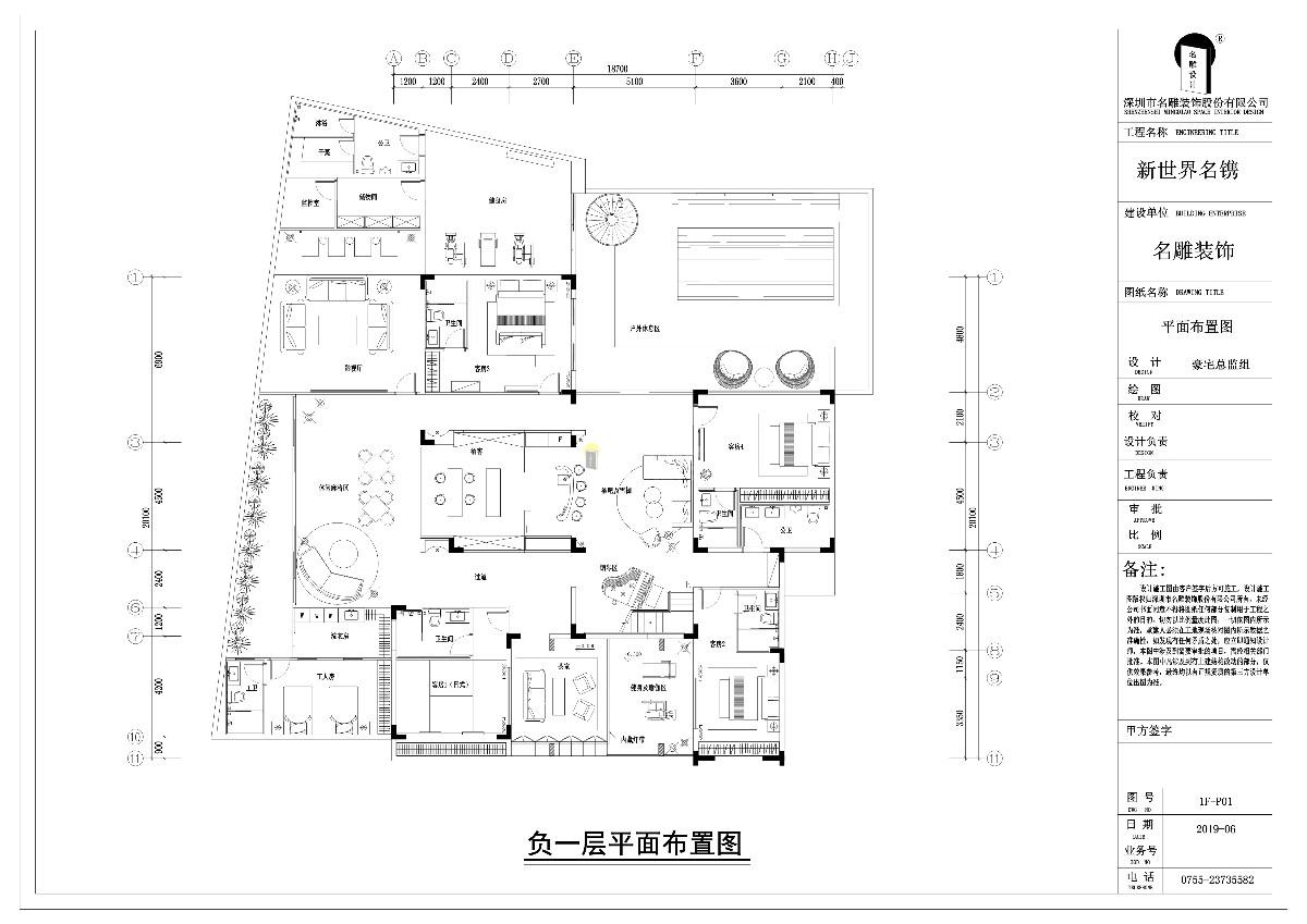
负一层平面布置图
负一层原始结构图
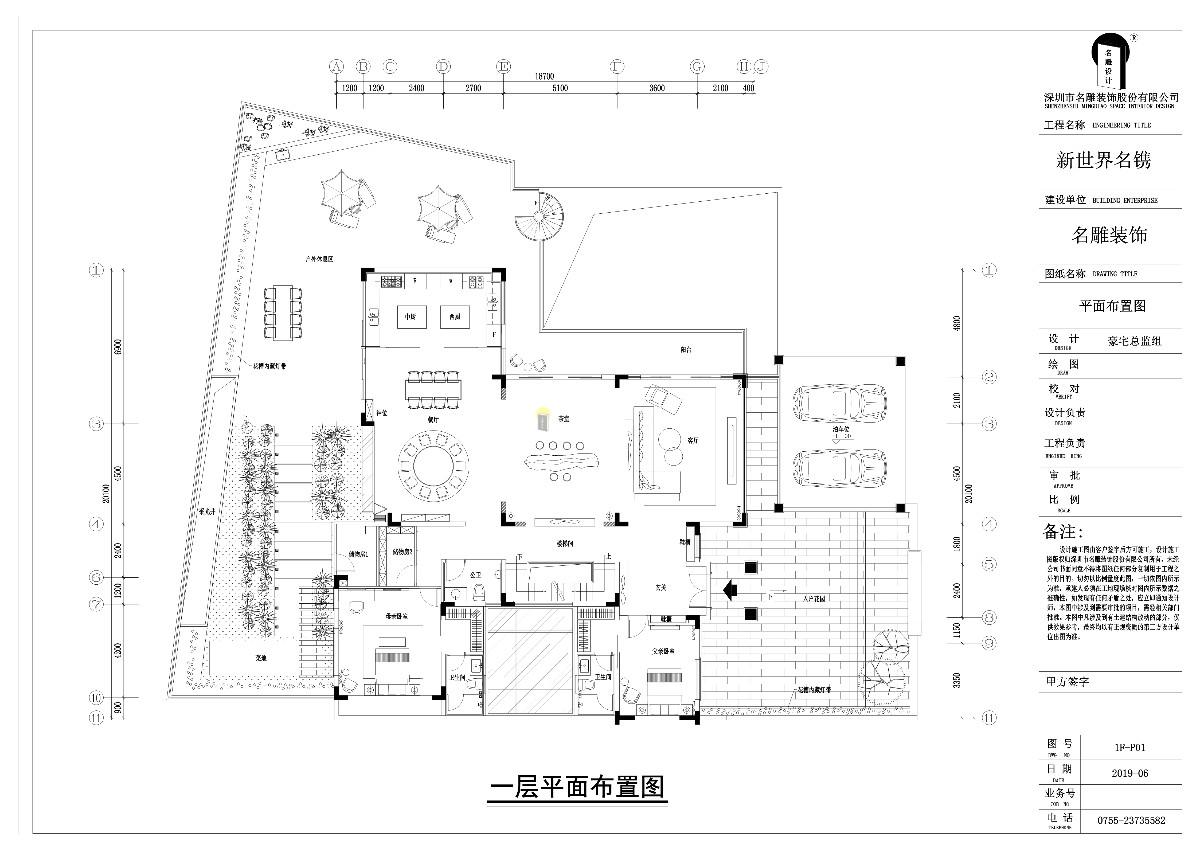
一层平面布置图
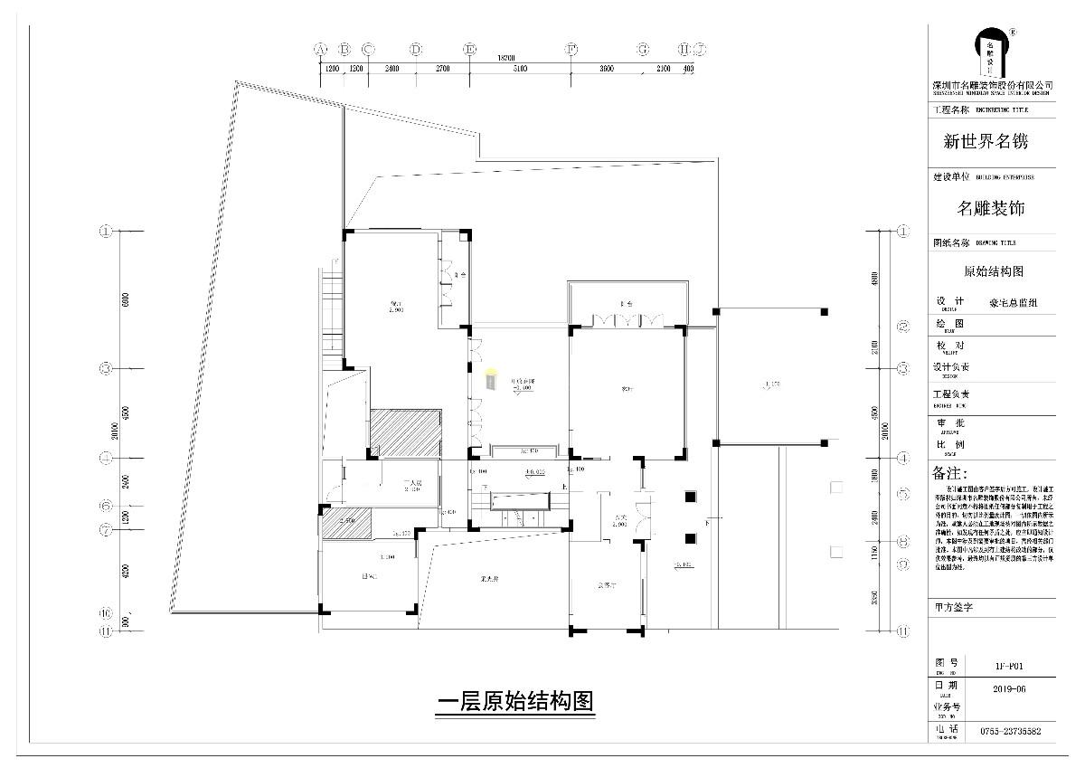
一层原始结构图
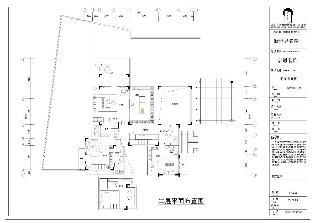
二层平面布置图
二层原始结构图
























