大概拥有一套自己的别墅,是每个成年人的梦想了吧。大城市虽繁华,但房价只升不降,更别提别墅豪宅,动辄百万千万。
而湖南浏阳的90后小伙,选择在家自建一套三代同堂而居的双层新中式别墅。

【项目自建】
本案自建项目,位于湖南浏阳,是经典的框架结构。该宅基地面积总计171.8㎡,经过平面设计,最终本案设计敲定为面积达343㎡的双层新中式豪华别墅,总计花费75万,对比一下千万级别墅,这简直是白菜价了。
△自建新中式别墅 总平面示意图
【宅基地情况】
该宅基地情况较为适合自建,东南两侧皆是村内道路,而西侧则是邻居住宅,北侧是家里的一个宅院。
业主在自建前,就对卧室数量有了一定的要求,因为是三代同堂居住,所以在布局方面需考虑到养老度假。最终根据业主要求和基地情况,本案项目确定为南北朝向的新中式别墅。
【平面布局】
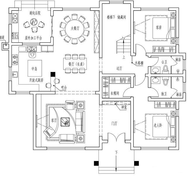
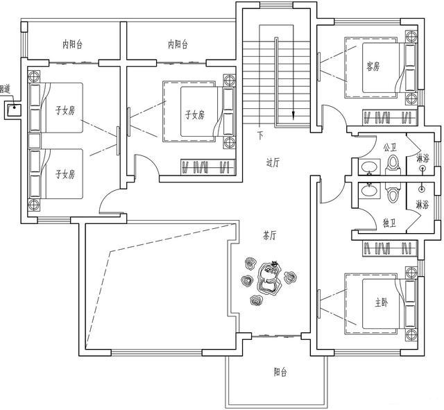
本案总计两层空间,布置了6间卧室,1个客厅,4个卫生间,1个厨房,1个衣帽间,1个储藏室,1个茶室,以及3个阳台。
△自建新中式别墅 一层平面图
一层平面布局上,增大了北侧的开放式厨房以及用餐空间,楼梯居中设置,并作为隔断。南侧的高挑空客厅,与东南侧的老人房相邻,方便父母来往。整体平面布局,合理规整,适合生活日常便利。
△自建新中式别墅 二层平面图
二层平面布局,主要以休闲居住为主功能。北侧布置了娱乐室or书房,且双子女房都配置了阳台设计,同时还提供了一间卧室供客人居住。南侧的挑空客厅和茶室搭配向外延伸的阳台,为业主提供了更多的室外活动空间。
△自建新中式别墅 西南侧效果图
△自建新中式别墅 东北侧效果图
【造型设计】
别墅建筑,整体上为新中式风格,在传统中式风格之上,加入了大开窗的设计,增加室内采光的同时,亦营造出一派通透的别墅之风。
△自建新中式别墅 东南侧效果图
别墅正面设计,门头处采用了方柱来强调门厅威严之感,且贯通至二层顶部,让建筑气派非凡。且门头于南侧客厅做到对应,里应外合,让建筑拥有入户既见景的变化感。
△自建新中式别墅 西北侧效果图
△自建新中式别墅 鸟瞰图
别墅外部划分,以装饰柱来体现,并均向外凸出,与窗户之间形成了凹凸起伏的层次感。
△自建新中式别墅 局部效果图
在立面造型上,呈现出大气简约之态,主体以大量的真石漆塑造出白墙之素雅。并且窗户以中式花窗元素,搭配基座,呈现出仪态万方的别墅之感。
△自建新中式别墅 局部效果图
△自建新中式别墅 局部效果图
建筑均为大开窗设计,并以透明玻璃和暖色墙面进行搭配,淡雅之中,显露落阔大方的别墅风格,整体轮廓,古色生香之余,又有简约时尚之感。
△自建新中式别墅 东立面图
△自建新中式别墅 西立面图
△自建新中式别墅 南立面图
△自建新中式别墅 北立面图
















