一
管理要求
1.1“四口”是指:楼梯口、电梯口、预留洞口、通道口。根据《建筑施工高处作业安全技术规范》(JGJ 80-2016)当垂直洞口短边边长小于500 ㎜时,应采取封堵措施;当垂直洞口短边边长大于或等于500 ㎜时,应在临空一侧设置高度不小于1.2 m的防护栏杆,并应采用密目式安全立网或工具式栏板封闭,设置挡脚板;当非垂直洞口短边尺寸为250~500 ㎜时,应采用承载力满足使用要求的盖板覆盖,盖板四周搁置应均衡,且应防止盖板移位;当非垂直洞口短边边长为500~1500 ㎜时,应采用专项设计盖板覆盖,并应采取固定措施;当非垂直洞口短边边长大于或等于1500 mm时,应在洞口作业侧设置高度不小于1.2 m的防护栏杆,并应采用密目式安全立网或工具式栏板封闭,洞口应采用安全平网封闭。
1.2“五临边”是指深度超过2 m的槽、坑、沟的周边,在无外脚手架的屋面(作业面)和框架结构楼层的周边;井字架、龙门架、外用电梯和脚手架与建筑物的通道、上下跑道和斜侧道的两侧边;尚未安装栏板、栏杆阳台、料台、挑平台的周边;在施工程楼梯口的梯段边。五临边必须设置防护栏杆,给排水沟槽、桥梁工程、泥浆池等临边危险部位应进行有效防护。
1.3井临边洞口高处作业前,应逐级进行安全技术教育及交底,落实所有安全技术措施和人身防护用品。
1.4 高处作业中的安全标志、工具、仪表、电气设施和各种设备,必须在施工前加以检查,确认其完好,方能投入使用。
1.5 攀登、悬空高处作业人员及搭设高处作业安全设施的人员,必须经过专业技术培训及专业考试合格,持证上岗,并必须定期进行体格检查。
1.6 施工中对高处作业的安全技术设施,发现有缺陷和隐患时,必须及时解决;危及人身安全时,必须停止作业。
1.7 作业场所有可能坠落的物件,应一律先行撤除或加以固定。高处作业中所用的物料,均应堆放平稳,不妨碍通行和装卸。工具应随手放入工具袋;作业中的走道、通道板和登高用具,应随时清扫干净;拆卸下的物件及余料和废料均应及时清理运走,不得乱置或向下丢弃。传递物件禁止抛掷。
1.8 雨天进行高处作业时,必须采取可靠的防滑措施。对进行高处作业的高耸建筑物,应事先设置避雷设施。遇有六级以上强风、浓雾等恶劣气候时,不得进行露天攀登与悬空高处作业。台风暴雨后,应对高处作业安全设施逐一加以检查,发现有松动、变形、损坏或脱落等现象,应立即修理完善。
1.9 因作业必须临时拆除或变动安全防护设施时,必须经施工负责人同意,并采取相应的可靠措施,作业后应立即恢复。
1.10 防护棚搭设与拆除时,应设警戒区,并应派专人监护。严禁上下同时拆除。
1.11 高处作业安全设施的主要受力杆件应经计算确保可靠,构造措施应符合现行规范的要求。
二
临边作业安全防护
2.1 基坑临边防护

2.2 屋面、楼层等临边防护
2.3 桥梁临边防护(无水/有水区域)
2.4 施工电梯卸料平台临边防护
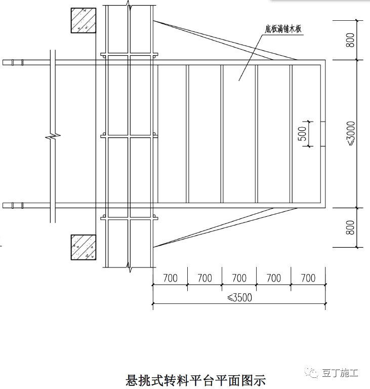
2.5 转料平台
三
洞口作业安全防护
3.1 小洞口防护
3.2 大洞口防护
3.3 电梯井口防护
3.4 电梯井钢平台
四
安全通道
4.1 基坑通道防护
4.2 安全通道防护
4.3 设施、施工机具防护
4.4 楼梯临边防护
内容来自 厦门市建设局
《建设工程文明施工与安全防护图集(2018版》













































