这是一套140平米的四房户型,整体空间以简洁净白的现代简约风格为基础,通过自然轻松的木质感定制柜,以清爽舒适的布置,在简单的装修空间里,营造出一种端庄大方的档次感,实现这样简洁的档次,在细节搭配与设计方面有着过人的功底。
图·赏 picture
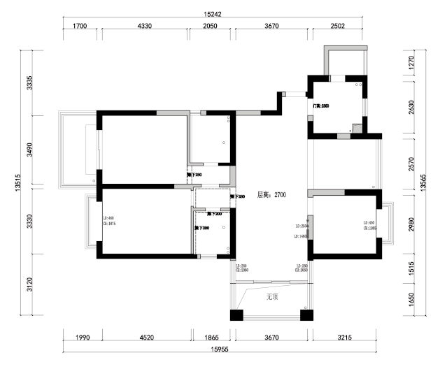
户型图+平面布置图

客厅
▲现代简洁的客厅,电视墙取消了电视柜,在壁挂电视机左侧装了一个木质的展示架,布置上书籍与陶艺品,让空间显得自然而气质。
▲简洁的沙发墙,布置一张黑色皮沙发,搭配一席地毯、摆一张小巧的圆茶几,让简单的空间也显得端庄大气。
▲懒人椅的布置,整体空间简简单单,却也充斥着档次的气质。
▲时尚线条感的音响与落地灯,茶几上的艺术头像摆饰,让空间简单却也充满了档次的气质。
餐厅
▲餐厅与客厅地面统一采用鱼骨拼的木地板,布置一套木质餐桌椅,搭配一张长板凳,侧边定制到顶的餐边柜,整体设计简洁而又大气。
▲餐厅背景墙侧边墙面打掉与双向柜体定制,餐边这侧做成展示格架柜,旁边墙面挂一幅粉色调的装饰画,让空间显得温馨而优雅。
厨房
▲L形的厨房,在灰色地面砖的基础,白色小格砖+摆设橱柜搭配,整体厨房空间明亮而又雅致舒适。
▲生活阳台与厨房之间打通,中间的门垛没装门,以不锈钢包边的门框处理,外面的洗衣机布置在洗衣池旁边,整体设计布置简洁自然。
卧室
▲卧室空间也是非常的简洁为主,木质地板、床铺与床头柜,床头两侧布置的长弧形的灯具,让空间充满了时尚的科技感。
▲素雅简洁的床单布置,也使得空间轻松闲适。
次卧
▲次卧空间也是非常的简洁,鱼骨拼的木地板,搭配木质床与床头柜,对称布置床头台灯,整个空间都充满了舒适轻松的年轻感。
▲床铺上的杂志,也彰显出主人时尚优雅的气质。
小卧室
▲小卧室以定制榻榻米+衣柜组合设计,洁白的墙面与柜门,搭配木色的榻榻米与格架,让空间自然而又美观。
▲衣柜里做个开放格,还能充当床头柜,简洁而又实用。
书房
▲书房以长虹玻璃门隔断,布置了沙发与书桌,定制一面大书架,整个空间简约而又优雅舒适。
▲靠窗的长板书桌,让办公看书的光线自然而舒适。
卫浴
▲公卫吧洗手盆设置在过道区域,整体雅白的墙面,让空间充满了现代时尚的质感。
▲主人卫生间在雅白的地面墙面下,装一个白色的洗手盆柜,设置一个浴缸,为主人提供了一个简雅舒适的卫浴享受空间。


























