本案例是位于长江边上的一个别墅楼盘,面积1000平米,工程造价是130万,整体的室内装修设计风格为法式风格。
该户型结构是典型重庆地形坡地结构,依山傍水。在做设计之初我们也充分考虑到户型结构的情况,以中轴线去划分整体空间,让空间动线更合理,让每层都能观赏到靓丽的风景,同时在材质上选用大理石、实木护墙、艺术涂料、油画及软装等。
客厅

双层挑高设计的法式风格客厅,白色和蓝色作为空间的主色调,突显法式的温馨浪漫感。精致的法式雕刻,不管是雕刻在大理石上还是宽大精美的家具上,都是营造出一种华丽、高贵、优雅的感觉。
餐厅
格调和颜色都与壁纸相同的法式复古餐桌,造型古朴的吊灯,在精美考究的天花吊顶的衬托下,使整个空间看起来赋予韵律感且大方典雅。
休闲厅
长长的休闲厅,延续了别墅整体的风格搭配。法式大理石装饰的壁炉精致雅致,空间中加以贵族紫做色彩点缀,给原本就足够典雅清新的环境,增添了几分浪漫的气氛。
主卧
卧室的装修第一眼就是典雅矜贵,精致的床体和家具,细节之处,处处突显法式的精致讲究。看似简单却充满讲究的线条和装饰,可以感受到空间带来散发的秀气和高雅感,无处不彰显居住者非凡的高贵品位。
老人房
因为是长者的居所环境,在不降低整体格调品位的基础上,简化墙体的设计,家具装饰也都是迎合长者的年纪喜好,沉稳贵气,主要强调居住的舒适感。
女儿房
法式风格的女儿房自然给人就是慢慢的公主风,白色为主要色调,搭配公主房必备色的粉丝色、气质抹茶绿和蓝色做装饰点缀。大大的落地窗,拉开窗帘放进室外的阳光,使房间充满自然、天真、清新典雅的气氛。
主卫
法式廊柱、复古吊灯、拱形门的设计,就算是泡澡的浴缸区域也是极富有仪式感的。宽敞的空间,米黄色的大理石装饰墙体和地面,金色局部点缀,不过于金碧辉煌,反而强调的是法式的清新浪漫优雅。
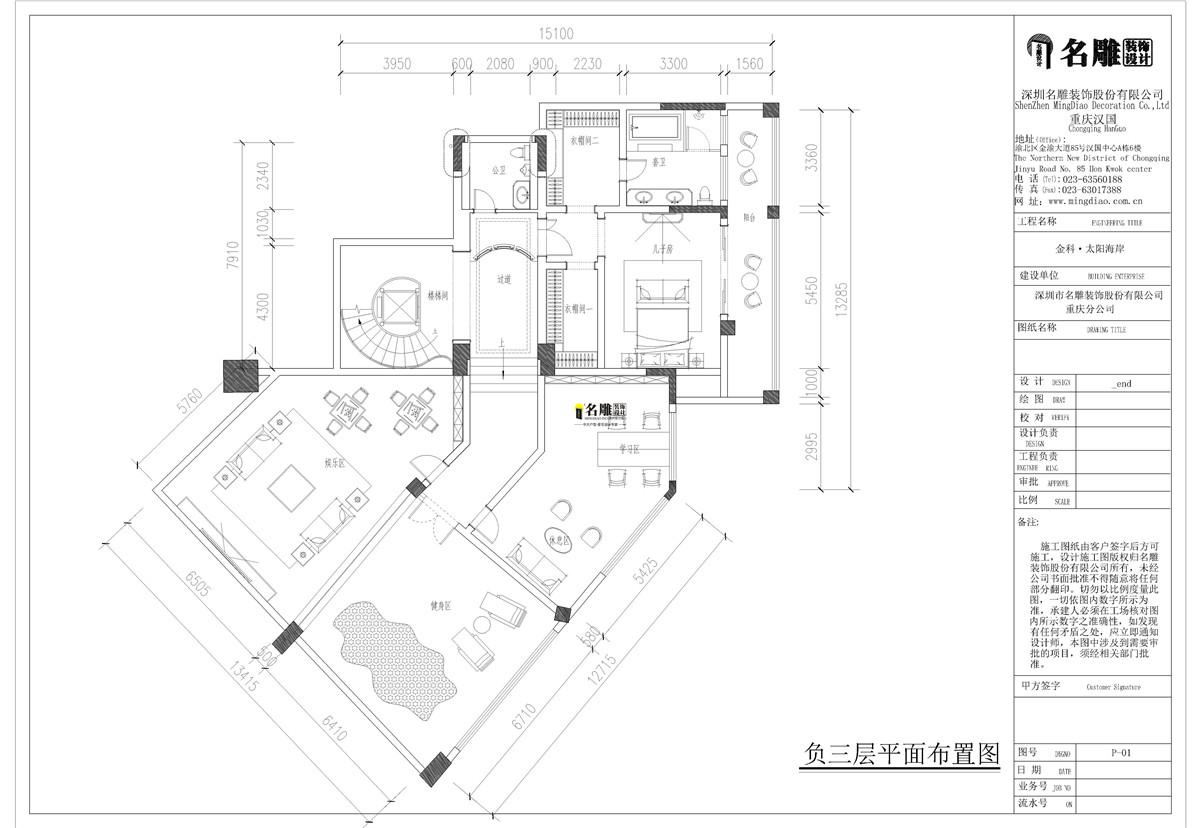
负三层平面图
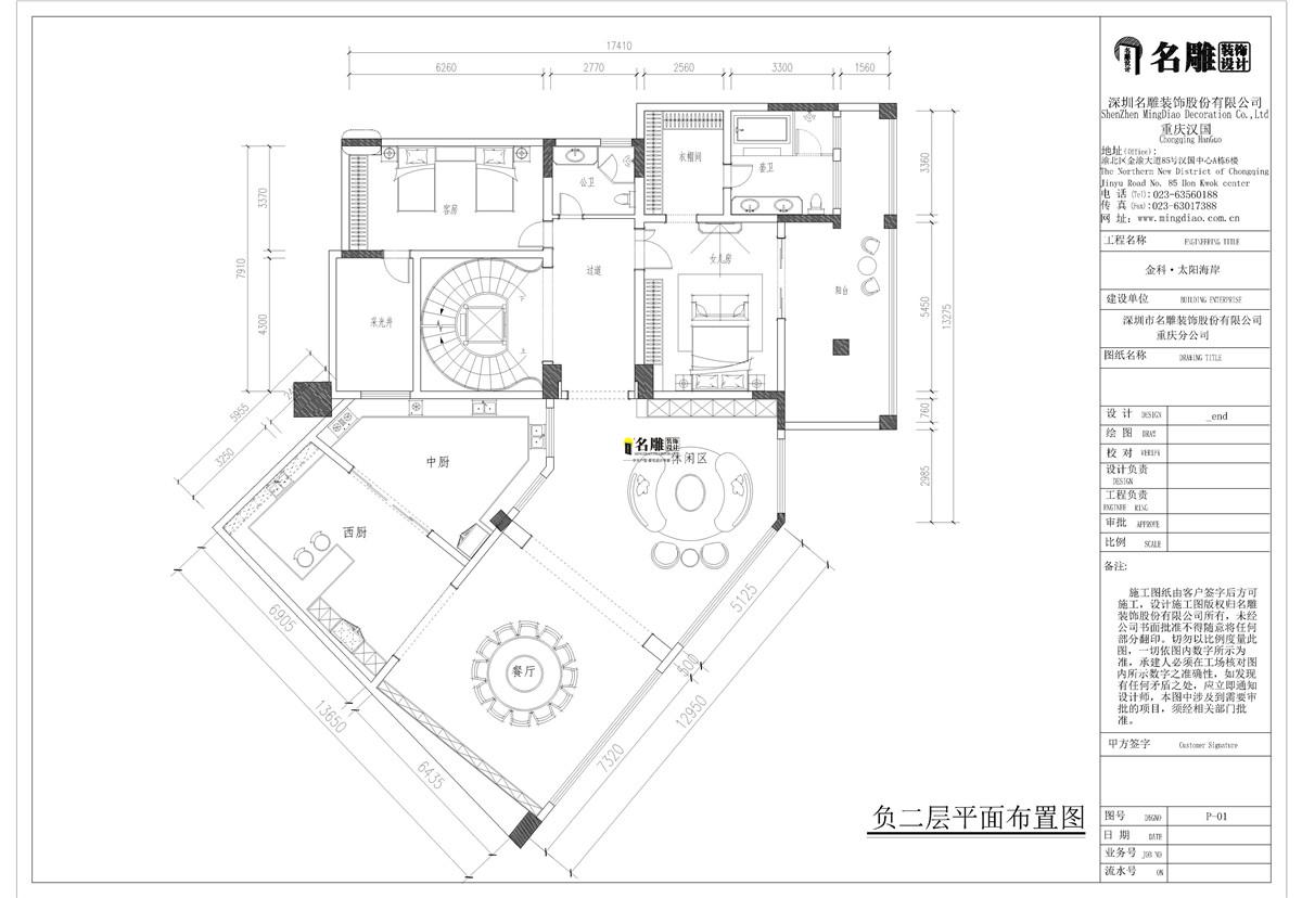
负二层平面图
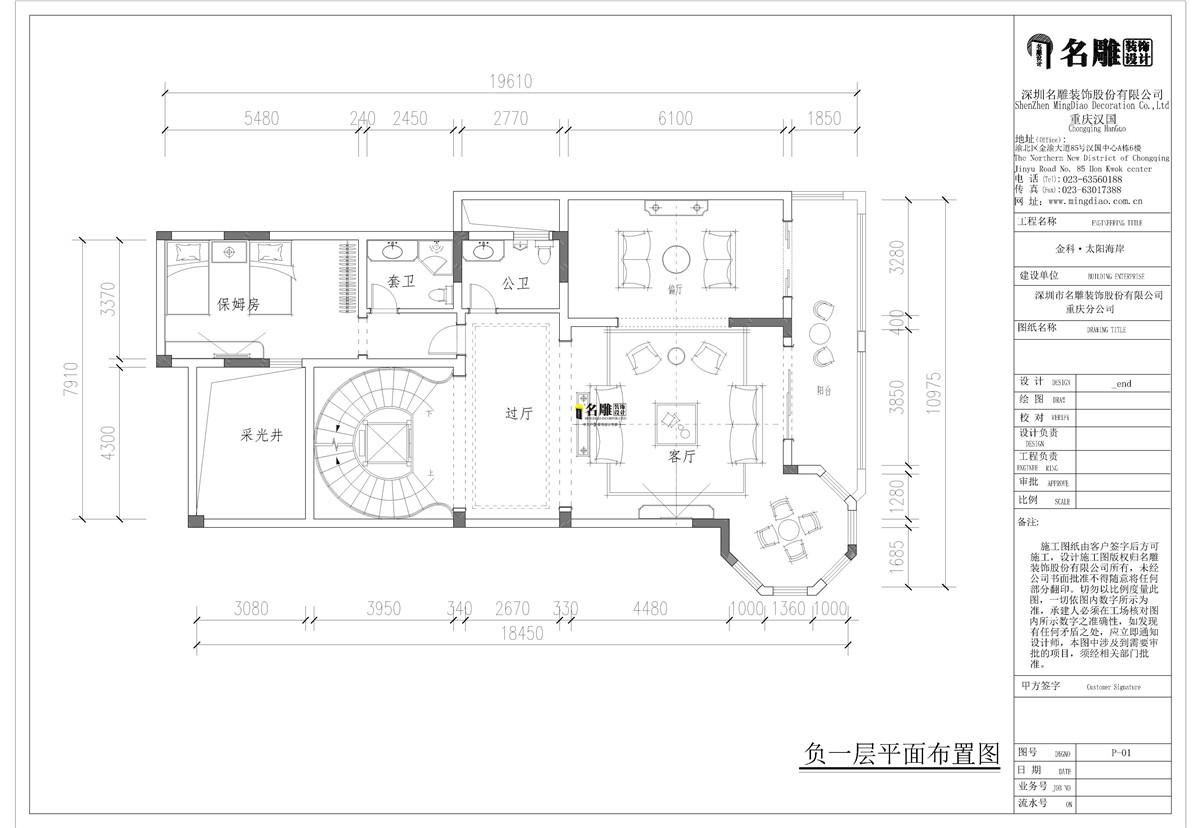
负一层平面图
一层平面图
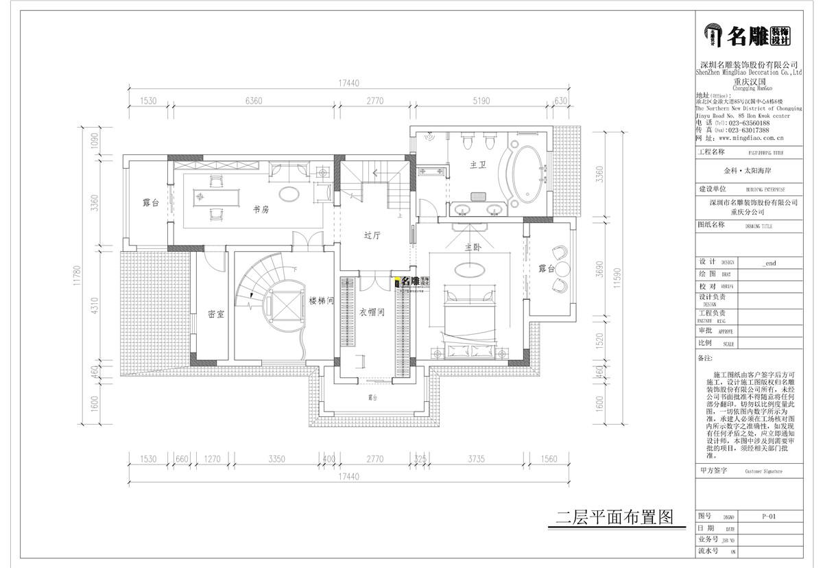
二层平面图












