保利·时代 —MATRIX DESIGN— 文化再发现—文化再定义—文化再呈现

本案项目坐落于成都内城,作为成都主城最大的旧城改造项目,承载着为内城复兴注入磅礴力量的使命,对人北CBD打造的进程有着跨时代的意义。
回望成都内城的过去,府河漂木兴旺一时,成都木综厂由此而生并一时名声大振,而后四川全部停止天然林采伐,木综厂也逐渐走入了历史回忆中。在历史记忆、文化底蕴与时代的展望下,Matrix此次设计有了对空间设计的脉络与基调,也汲取到了空间中的艺术表现的概念。 设计将浮、木、水、影与追忆释放在空间形态中,唤起物与人、人与空间之间虚又实的感知与想象,引领来宾从空间中追忆历史、体会艺术,同时见证成都内城的现代与未来。
室内空间设计上传递着现代风格简洁极致的细节美感,流露出独有的格调和艺术情怀。接待前厅,空间中用整块艺术铜板分割空间与动线,整体气质会相对更加硬朗,富有艺术馆的稳重大气的气质。
铜板材质的表面是光滑温润的,有轻微的反光。空间会显得更加具有分量感。玻璃幕墙一侧,是由木筏元素转化提炼的屏风造型,透光不同时间的光影变化,丰富生动。接待台上方吊挂的艺术装置,其主题为叶之荫蔽,叶子为万物洒下荫蔽,护佑的本质,都是因为对于这片生长地的热爱。灯光透过漂浮的圆片,会在地上投射出变化丰富的光影与颜色。空间稳重中带着灵动与飘逸,两者相得益彰。
大地博物馆,空间主题为时光回响,阳光唤醒森林,掉落的树枝铺满大地,也不知道经历过多少岁月,有的已经朽烂,有的长满青苔。脚踩地面发出的声音,是时光的回响,与历史的述说。 博物馆内放置各类以木与时光为主题的艺术展品,为人们带来一场视觉与精神的盛宴。空间以当代的表现手法,是为了对于生命力的赞叹,以极具张力的空间与艺术品表达着生长的姿态美。
时光长廊,连接着过去与未来,竖向的木条是由整木车圆的木柱,柱身开槽藏光,光线从不同的方向在空间中投。末端的墙面与天花采用灰色镜面玻璃,把空间在视觉上拉远拉高。墙上还会有印有历史老图片的夹丝玻璃,在灯光的渲染下,形成一个有趣的场景转换空间。
楼梯展示区,楼梯地面采用镜面处理的瓦尔斯大理石,大理石的纹路像水中的波纹,同时抬高的地面像是一个巨大的展台,衬托着双旋转楼梯这件巨型艺术品。 展台上与墙面上挂着的是艺术家的艺术作品:竹艺,艺树木无线生长的姿态,记录成都这块从木综厂到新的生成面貌的综合体的历史进程。楼梯上方天花是横竖分割的透光膜,空间光线柔和温馨,双弧形楼梯在顶面大面光源的牵引下,构成一股向上延伸的力量美感。
沙盘区,空间中可以看到一个贯穿着二层地面、二层墙面、三层墙面、三层天花的一个曲面。这个面打破了空间直接的独立关系,将之有机串联。使得整个沙盘区有一个向上延展的面。主要的设计目的是做体块、是一种内建筑的手法。
在大沙盘的上空,开有一个天窗,将自然光引入室内,可以丰富空间的光影层次,同时空间也会因为有光的进入而更加富有灵性。
洽谈区,视点中心有一面错位变化的背景墙,配合灯光,能有一面非常立体的背景。靠近玻璃幕墙的洽谈区有非常好的景观面,靠玻璃幕墙的沙发之间采用毛面石材的隔断相隔开,能够形成不同材质表面直接的对比,增加空间的丰富性。
以浅色温馨色彩为基调的空间,局部搭配现代人文艺术品,营造出一个干净纯粹、自然质朴又不失细节的空间。空间中艺术家的原创艺术珍品为空间中的细节增添更为丰富的层次与内涵,所有的一切恰到好处与自然流露的美感,是现代美学与大地艺术的最好体现。
[b]图纸呈现|[/b] [b]保利时代销售中心[/b]
△ 效果图
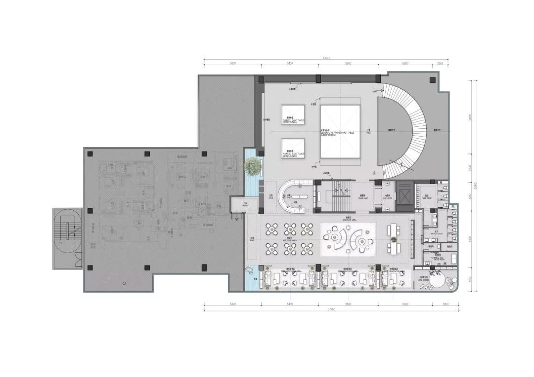
△ 一层平面图
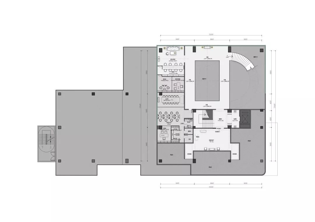
△ 二层平面图
△ 三层平面图 项目名称|保利时代销售中心 业主单位|保利发展 硬装设计|矩阵纵横 软装设计|矩阵鸣翠 建筑设计|深圳市杰恩创意设计股份有限公司 景观设计|成都绿茵景园工程有限公司 摄影公司|释象万合 项目类型|销售中心 项目面积|2200㎡ 硬装造价|3500元/㎡ 软装造价|2500元/㎡ 主要材料|白金摩卡大理石,蓝金沙大理石,白色渐变玻璃,艺术涂料,艺术铜板,水波纹不锈钢 设计时间|2019年06月 完工时间|2019年10月
以矩为方圆 万物皆成阵 深圳市矩阵室内装饰设计有限公司



















































