女主人在努力的辛苦付出与无尽的个人生活的牺牲后,终于获得了属于自己的家。从她喜爱的电影《天使爱美丽》当中,设计师获得了灵感。希望女主人可以依旧保持一个童心,追求热爱生活的心,继续成为努力美好的女性。

设计师对整体户型没有做过多调整,将布局不合理的厨房的隔墙和门给拆除。
客厅充满了女主人偏好的元素例如,绒面、黄铜、单人躺椅等非常有质感的元素。整体氛围充满了感官体验,拥有品质的同时也包含着生活的味道。
顶部选择了法式雕花造型再搭配黄铜灯,与茶几电视柜等黄铜元素相搭配。
客厅生活阳台的一隅,一个小圆桌,让充满法式风情的浪漫在这里生根发芽。或许会成为和小姐妹交流的一个别致场所。
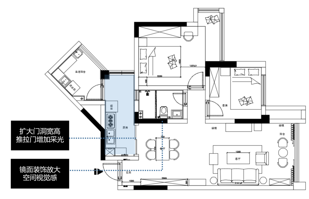
通过扩大门洞,让厨房的采光能通向客厅餐厅。
通过顶部边顶造型划分客餐厅区域,左边为客厅,右侧为餐厨区。
在餐厨区与客厅的中间的柜子也起到很好的过渡作用,从整体视角上来看,从右往左,不断变低,降低视线的聚焦点。
餐厅旁的大面十字格镜子,拓宽了视线,通过折射效果,让空间更为明亮,原本比较狭小的餐厅也变得更为宽阔。
卫生间同样采用了黄铜材质,让卫生间同样具有仪式感。地面瓷砖使用了大理石元素,白色与金色构成的卫生间。看起来整洁干净,也能看出女主人的优雅和注重品质。
主卧使用了相当浓烈的颜色
梳妆台侧面为L型飘窗台,无论是小憩,休息还是放置都有足够的空间,为房屋的使用带来多样可能性。
客房与主卧风格保持一致。同时客卧的衣柜和吊柜也为房屋增加了日常储物的可能。



















