这是一套70平的两居室,居室空间不大,不过装修设计上,还是蛮个性实用的,比如入户门,正对着客厅,为了阻挡视线,装了玻璃隔断。还有阳台,直接抬升了十几厘米,设成地台,作为一个休闲区,实用性更强了。再者餐厅、厨房、吧台等区域的设计,也都个性满满,值得借鉴。
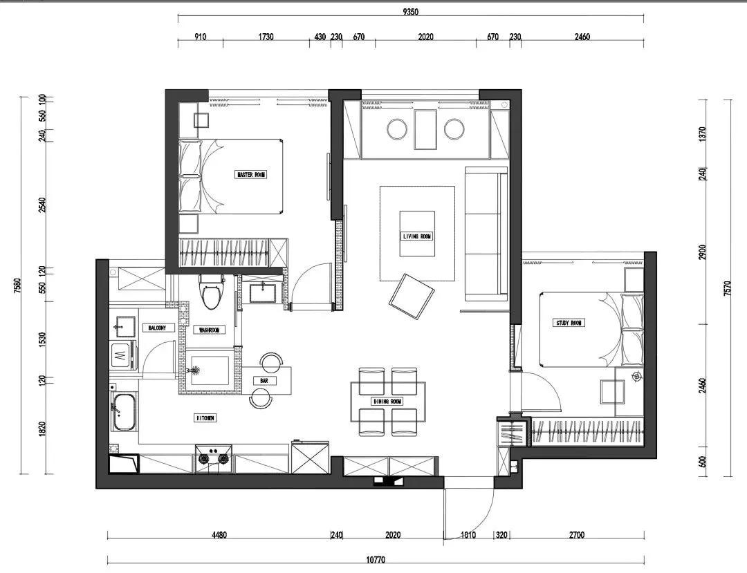
平面图

入户
一进门装了悬空的矮鞋柜,搭配上方的创意挂钩,还有旁边的全身镜,虽然都比较小,但入户功能齐全了,还很漂亮。
客厅
入户门正对客厅,装了玻璃隔断,进行了简单划分,这样一点都不影响室内的通透性。室内背景墙,都是浅色系列,设计也一点都不复杂,蛮简单大方。
客厅阳台,直接抬升了十多厘米,设成地台,当作休闲区,更实用了。再者来看客厅,背景墙的颜色,虽较简单,但家具、软装方面还是挺丰富的。
沙发墙上的挂画,还有地面上铺的地毯,颜色都挺清新漂亮。居室不大,家具都以小巧为主,包括茶几,非常简洁、简约。
客厅局部展示。茶几、沙发等家具,造型都很简洁、时尚。
阳台
阳台,设成了地台,摆上小桌、铺上毯子,就是一个休闲娱乐区。
阳台一端还装了收纳柜,起到储物功能,也是实用。居室里面,尤其是北欧装修,最好多一些盆栽绿植,效果立马清新很多。
这是室内一个大面积效果,地面通铺灰色瓷砖,超有质感。餐厅在入户另一边,以下具体看看。
餐厅,靠墙还装了餐边柜,白色无把手柜面,简约高级,中间空余位置,可以摆些饰品,方便又漂亮。
餐厅,桌椅白色+原木色,符合居室柜子,及装修的特点。旁边厨房,是开放式设计,大冰箱放在了橱柜旁边,简单隔开一下。
餐桌上花艺、餐具等,摆放齐全之后,整个还是挺精致漂亮,有情调的。餐桌旁边还设了一个吧台。
吧台
吧台的存在,让居室增添了很多情调,不仅功能越发齐全了,还更有美感了。吧台这里,重在装饰,悬挂的灯具,还有花艺点缀,都超好看。
厨房
厨房里面,整个墙壁、地面,都是灰色瓷砖,搭配白色整体橱柜,简约时尚,还相对耐脏一些。
墙壁上还装了隔板,高处可以摆些盆栽饰品,低处可以放些厨用物品,既丰富了厨房效果,还方便日常使用了,很聪明的方法。
厨房外面,有一个生活阳台,这里作为了洗衣房,装了洗衣机一体柜,还有晾衣架,满足日常洗衣、晾晒的需求。
主卧
主卧光线超好,有大大的落地窗,背景墙依旧十分简洁,没有多余饰品,及复杂的设计,窗帘颜色,十分醒目了。
卧室衣帽柜,用来日常收纳足够了。然后还在另一边墙壁上,装了置物架、挂钩之类,这些都可以用来装饰,或者使用,蛮方便的。
儿童房
儿童房,柜子装了蛮多的,床尾有一排开放式柜子,然后床头一边,有与书桌一体相连的衣柜,这些可以满足不同的收纳需求,如书柜、衣柜都齐全了。再者也完善了儿童房的功能。
卫生间
卫生间,把洗手台外置了,更方便日常使用。卫生间与厨房一样,都是灰色+白色的整体搭配,适合不太耐脏的区域,而且符合居室特点,简约质感。
























