在这里 · 向世界
展示你的设计态度
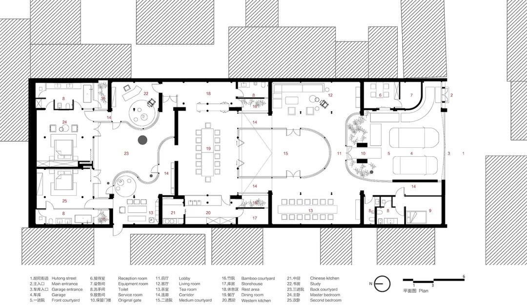
七舍合院位于北京旧城核心区内,院子占地宽约15米,长约42米,是一座小型的三进四合院。由于原建筑共包含七间坡屋顶房屋,且正好是该胡同的七号,故得名七舍。
原始建筑年代较为久远,除了基本上还保持的木结构梁柱和局部有民国特点的拱形门洞,其它大部分屋顶、墙面、门窗等都已经破损或消失。院内遗留了大量大杂院时期的临时建筑,遍布清空之后的建筑废料,杂草丛生、一片凋零。

因此,本次改造设计一方面是修复旧的——对院落房屋进行整理,保留时间迭代的印记,修复各个建筑界面,加固建筑结构,重现传统建筑的样貌;另一方面是植入新的——新的生活功能配备(卫生间、厨房、车库等),新的基础设施(水暖电设备管线)以及新的游廊空间。
新与旧相互叠合成为一个新的整体,来满足未来院子作为公共接待和居住空间的使用要求。
“游廊”一直是传统建筑中的基本要素,我们引入“游廊”作为本次改造中最为可见的附加物,将原本相互分离的七间房屋连接成为一个整体,它既是路径通道,又重新划分了庭院层次,并制造出观赏与游走的乐趣。
一进院被定义为停车院,设计保留原建筑屋顶移除墙面,并平移了主入口位置,以留出尽量宽阔的停车空地。前院之中有质量历史遗存如门楼、拱门雕花、甚至一颗枯树均被修复和保留,但拆除了前后院子之间的围墙,代之以透明的游廊作为建筑新的入口。游廊延续了坡屋顶的曲面形态特征,并结合前后院景观与功能进行相应的变化。
作为停车院的一进院
一进院,保留历史遗存
游廊在入口出微微上扬,结合两侧的曲线屋顶构成一个圆弧景框,将建筑、后院的大树和天空纳入风景之中。而另一侧的游廊屋顶则向下连接成为曲面墙,在停车院之内分隔出其后的卫生间、服务间、设备间等功能空间。
微微上扬的游廊入口,形成圆弧形框景
二进院是公共活动院,结合原本建筑一正两厢三间房屋的格局,分别布置了客厅、茶室、餐厅、厨房等。室内外空间划分依然采用对称式布局,继承了传统院落的空间仪式性。设计消除了房屋之间的台阶,代之以缓缓的坡道连接,并结合透明的游廊共同加强内部公共空间与院落之间的连通。
处于正房的餐厅可由新的折叠门向庭院完全开敞,保证室内活动灵活得延伸至弧形庭院之内。餐厅正中的拱门经过修复后成为进入后院的入口。
二进院,透明游廊加强内部公共空间与院落的连接
客厅
餐厅
游廊采用密肋梁和板,融入旧建筑环境中
三进院作为居住院,包括两间卧室以及茶室、书房等空间。旧建筑依然是一正两厢的格局,院内有三棵老树。游廊平面在这里演变为连续曲线形态,一方面与庭院内的三棵树产生互动,另一方面也营造出多个小尺度的弧形休闲空间。
两间卧室居于建筑最后面的房屋,室内根据屋脊呈对称式布局,两个卫生间均与小院子比邻,实现良好的采光和通风效果。
三进院入口
庭院与树互动
三进院书房
三进院茶室
三进院卧室
设计在保持传统建筑的材料特征基础上适度添加新材料,注重保持时间迭代的印记,让新与旧产生若干微差与叠合。原始建筑结构整体保留,局部破损构件依然以松木材料替换。新的游廊、门窗、部分家具使用竹钢作为新的“木”与旧木对应。
游廊采用框架结构支撑上设密肋梁和板,使其尽量通透轻盈融入到旧建筑环境之中。室内还结合使用功能搭配了不同旧木、原木家具,让不同色泽与质感的木相互混合。
室内材料细部
部分墙面采用玻璃砖
传统屋顶缺少现代防水材料,保温性能也比较差,因此本次改造在保持原建筑灰瓦屋面不变的基础上,优化了屋面做法,改善其物理性能。新的游廊屋面则采用聚合物砂浆作为曲面面层材料,用平滑的灰面与肌理的瓦顶相对应。旧建筑墙面依然以原本院内留下的旧砖为主材进行修复,让此前大杂院拆除的建筑材料得以循环利用。
室内外地面也延用了这种灰砖铺作,保持内外一体的效果。部分新墙面采用了透光的玻璃砖,但尺寸仍与旧建筑灰砖一致。施工过程中意外发现的石片、瓦罐、磨盘等,完工后将其作为景观、台阶、花盆点缀于室内外;建筑修复中作废的木梁则被改造成为座椅。旧材料被赋予新的使用而不断延续下去。
屋顶细部,平滑的灰面与原始的瓦片屋顶相对应
夜景
平面图
剖面图
细部图
项目名称:七舍合院
项目位置:北京
设计公司:建筑营设计工作室 archstudio
主设计师:韩文强
项目设计师:王同辉
结构咨询:张勇、洪雅竹元科技
机电咨询:郑宝伟、于妍、李东杰
照明顾问:董天华
植物顾问:张晓光
图片编辑:王同辉、文琛涵
施工团队:陈卫星等、洪雅竹元科技
建筑面积:约500平米
设计与施工时间:2017.9—2020.1
主要材料:竹钢、青砖、玻璃砖
摄影师:王宁、吴清山





































