
项目名称:云南保山陈家现代别墅
项目经理:张建峰
图纸编号:1682
建筑面积:680.8㎡
占地面积:236㎡
基地面积:837.9㎡
建筑尺寸:8.2m×19.4m
建筑结构:框架结构
建筑造价:136.2万元(室内装修费用另计)
项目概况
△总平面示意图(右侧为北)
基地情况:
东:邻家住宅
西:邻家住宅
南:村内小道
北:村内道路
项目简介:
该项目场地地块不规则,建成后一层将作为商铺使用,上层为自家居住,因此业主对房间需求较高;同时在立面造型上,业主偏爱简约的现代风格。设计师根据场地地形的特殊情况,及业主的需求和喜好,将项目形式确定为4层现代别墅。
平面布局
户型概况:
4层 / 7室 1厅 7卫 1厨 1储藏 1洗衣 5衣帽 1桑拿房 1汗蒸间 1茶室 1佛堂 1休息区 1棋牌室 1娱乐区 2商铺 5阳台 4露台
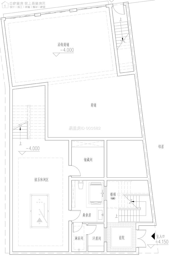
△一层平面图
一层为商铺,北侧大面积预留了商铺空间,后期可自由设置功能分区;南侧设置娱乐区、桑拿房等多功能休闲区,丰富整层的功能性。
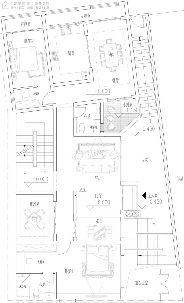
△二层平面图
二层主要以居住休闲为主,共布置2间卧室,东北侧预留了较大面积的餐厨空间与露台相连;业主家可通过东侧的内院,直接进入门厅和客厅区域。
△三层平面图
三层以居住休闲为主,共布置4间卧室套房,其中南侧的卧室套房功能较为齐全,搭配衣帽间、独卫和露台空间,丰富建筑功能的同时,为立面造型带来了更多变化。
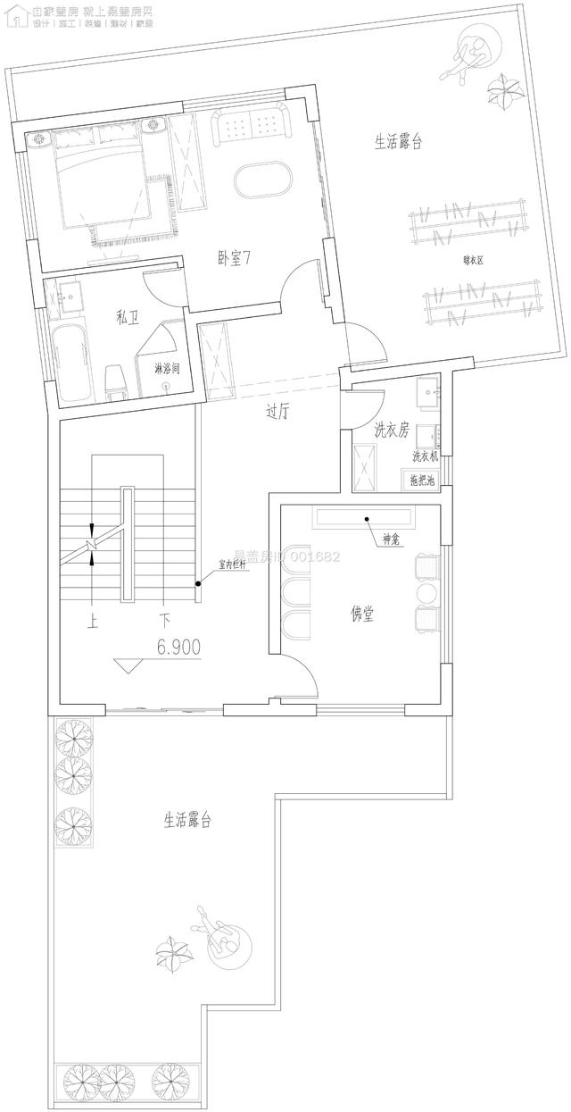
△四层平面图
四层以居住休闲为主,西北侧的卧室套房搭配独卫使用;东、南侧设置了两个双露台,丰富整层的休闲、晾晒功能。
造型设计
△鸟瞰图
△东南侧效果图
建筑为现代风格,立面采用大量的白色真石漆,搭配外墙木塑板和铝单板装饰;前院和内庭院放置于南、北两侧,更加凸显出建筑的卓然不凡。
△鸟瞰图
△人视图
建筑体块凹凸有致,北侧入口的商铺考虑其安全和独立性。
△东北侧效果图
△鸟瞰图
北侧的商铺采用三开间设计,双开玻璃门使得行人出入更加便捷,东侧预留的次入口也可进入其中,虚实变化让建筑更具趣味性。
△东立面图
△西立面图
△南立面图
△北立面图
设计师问答
1.作为设计师,设计过程中遇到了哪些困难?
答:本项目的宅基地地形呈不规则图形,需要在合理布局的前提下,平衡外立面的美观及室内空间的采光,整体具有一定挑战。
2.这个项目的设计周期是多久?
答:37天左右。
3.你觉得本项目在施工的过程中需要注意什么问题?
答:像这类两侧与邻家较近,左右夹缝的建筑主体对施工的基础施工要求要很仔细,注意把控好细节处。














