
项目名称:湖南娄底杜家欧式别墅
项目经理:熊俊杰
图纸编号:1812
建筑面积:535.9㎡
占地面积:146㎡
建筑尺寸:15m×13.1m
建筑结构:砖混结构
参考造价:95万元(室内装修费用另计)
项目概况
△总平面示意图
基地情况:
东:邻家住宅
西:村内道路
南:村内道路
北:村内小路
项目简介:
业主在项目前期表示喜欢空间舒适且流线顺畅的平面布局,在立面造型上希望突出其层次感。设计师根据场地情况,及业主的需求和喜好,将项目形式确定为带阁楼的3层欧式别墅。
平面布局
户型概况:
3层+阁楼层 / 7室 3厅 6卫 1厨 1堂屋 1储藏 1棋牌 1书房 1健身房 1影音室/多功能室 1洗衣房/内阳台 2阳台 1露台
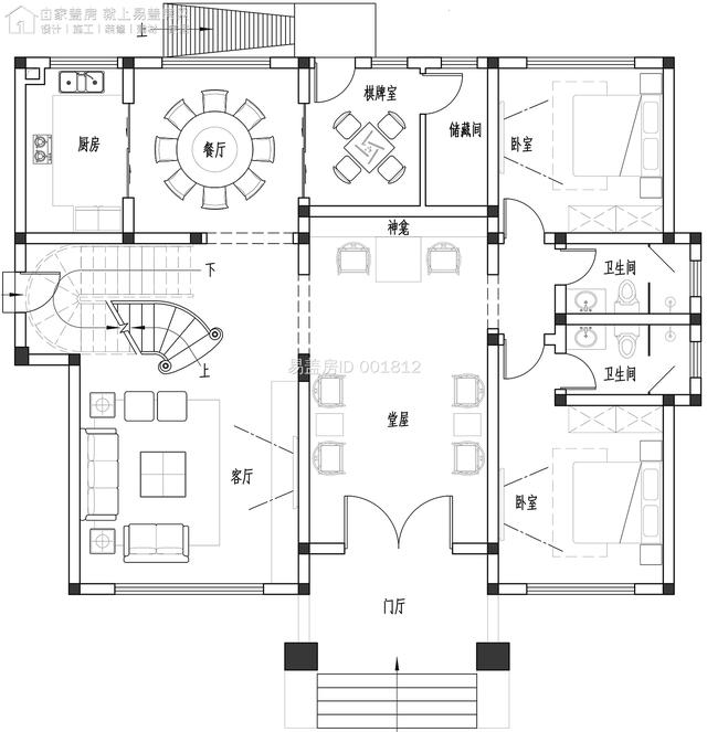
△一层平面图
一层主要设置为公共空间,含有丰富的休闲活动功能的同时,面积也十分开阔。设计师将堂屋作为空间中心,四周排布餐、厨、挑空客厅、棋牌室等空间;东侧预留了长辈套房,合理的功能分区和使用流线为生活创造更多便利。
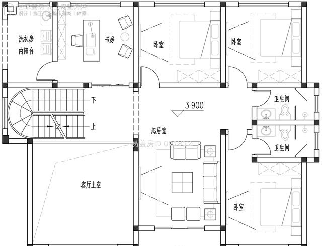
△二层平面图
二层以休闲起居功能为主,整层共布置3间卧室,其中东南侧的卧室套房搭配独卫使用;西北侧增设了书房和洗衣房,极大满足了业主的日常所需。
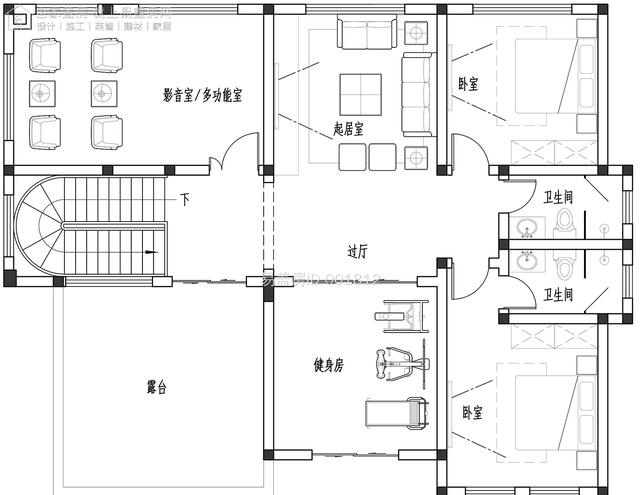
△三层平面图
三层以休闲娱乐功能为主,东侧预留了2间卧室套房;西北侧的影音室也可作为多功能室使用,搭配南侧的健身房功能,极大满足业主家的日常休闲、娱乐的需求。阁楼层未设置其功能,后期可根据业主家需求灵活使用。
造型设计
△南侧效果图
△东南侧效果图
△西南侧效果图
建筑整体为欧式风格,设计师在材质上选择浅色真石漆、灰白色地砖、深蓝色罗曼瓦,搭配多种窗框、栏杆等欧式构件,打造出丰富的立面视觉体验。
△东南侧效果图
△鸟瞰图
△局部效果图
建筑的南立面以不同的开窗设计提升视觉冲击力,搭配西南侧的室外露台空间,造型上的层次变化塑造出独特的韵律感。
△局部效果图
△局部效果图
△局部效果图
建筑立面选用简单的线条,搭配细节处的装饰构件,使得立面的延伸感更佳,同时也提升了建筑造型的整体完成度。
△东立面图
△西立面图
△南立面图
△北立面图
设计师问答
1.本项目的设计过程中你从哪方面考虑入手?
答:本项目以居住的舒适性出发,将每个卧室独立设置,极大保证使用的私密性。
2.本项目的设计周期是多久?
答:32天左右。
3.本项目在设计方面有什么特别之处?
答:本次设计室内设置了两部楼梯,一部楼梯与挑空的客厅相结合营造一个大气奢华的空间感受。
















