杭州“Panasonic Center”是继日本大阪和东京的全球第三家旗舰店。位于西湖商务区解百城市奥莱B座。“松下中心”作为体验式旗舰店,不同于其他专门从事线下销售的旗舰店,它更侧重于线下体验和近距离互动展示,以便消费者可以更直观地了解产品和品牌本身,从而在他们心中更新了百年历史的松下品牌的形象。在这方面,经过与松下项目团队的深入讨论,设计团队决定在极短的设计时间内从多个方向出发,以实现杭州设定的业务目标。 松下是日本百年企业,久而久之的降水量已成为松下的特色之一。为了在旗舰店中留下时间的印记,设计团队从传统的日本建筑中寻找答案,最后选择了具有代表性的日本传统方形玻璃元素,这些元素经过精制后变得更具象征意义。结合日本传统建筑的“规模感”之后,对旗舰店的建筑立面进行了重新构造,从而使抽象的“时间”得以形象化。

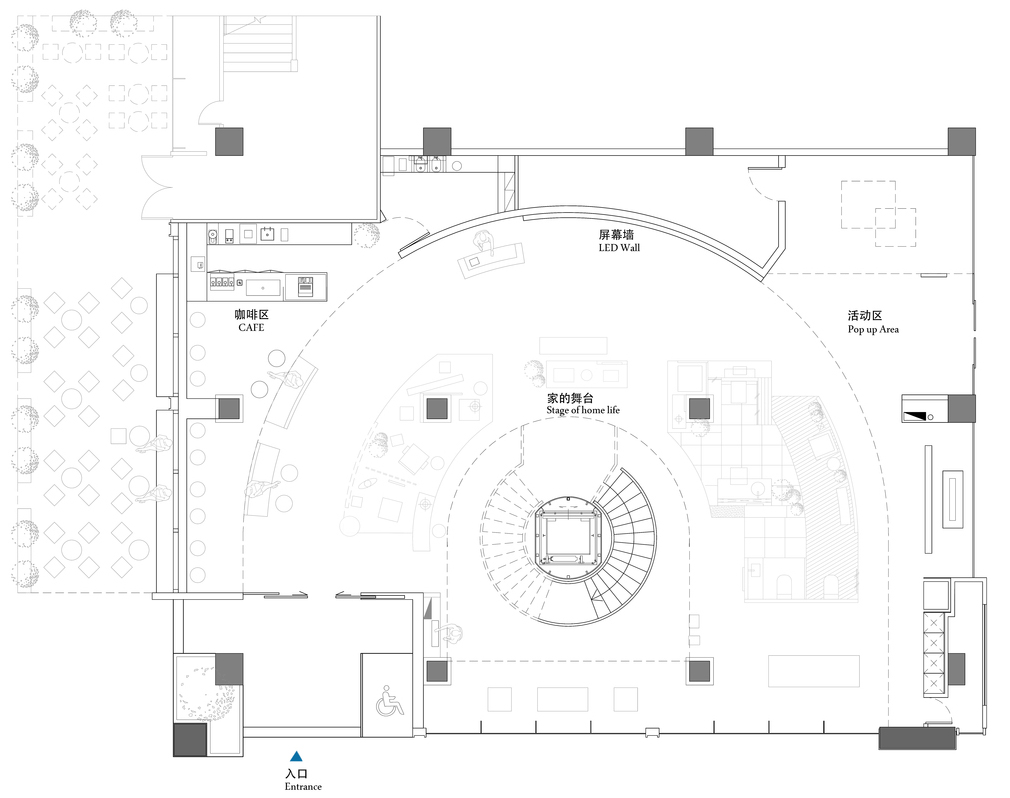
松下中心空间由两层组成,室内可用面积为1,033平方米。其中,数百个参展产品和大量未来活动可供设计团队作为主题。因此,就思维方向而言,设计师的目标是创造一个可以在将来灵活使用的高效空间。在对空间进行多次整理之后,设计团队选择了“ Panasonic Light Theatre”作为1F的空间主题,并划分了剧院的形式,其中大多数被设置为与主题相对应的灵活显示空间,并可以灵活地显示和由松下项目团队根据自己产品的主题建造。
此外,设计团队还开放了原始建筑立面的狭窄主入口,在室内和室外之间创建了一个过渡空间,以缓解过于靠近交叉路口的不利条件,并专门设置了无障碍坡道,以方便消费者。此外,在与杭州未来的步行街相邻的巫山路设立了一个咖啡馆区。同时,面向街道的幕墙被打开,并设置了一个敞开的吧台和一个外部隔间,以将室内空间扩展到室外。在其内部,整个圆形空间和高度分层的弧形LED墙软化了访问线和空间,使空间更具“戏剧性”。
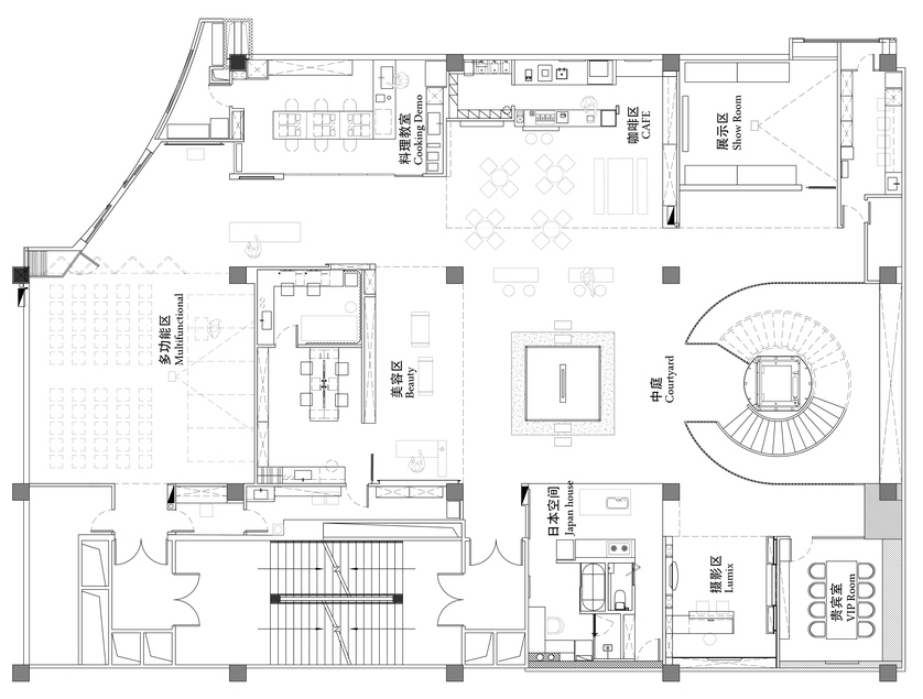
螺旋楼梯位于圆形空间中,将1F和2F连接起来。同时,在楼梯核心筒之间专门设置了无障碍电梯,为消费者提供了更便捷的服务。与1F不同,2F以“ Panasonic Light Life House”的空间主题为居住空间的展示。因此,设计团队参考了日本传统街道的矩形网格规划进行布局,从而形成了日本市区街道的微观景象。因此,当消费者爬上螺旋楼梯到达2楼后,他们将看到以日本庭院为元素的特色产品展示区。形式上的差异增强了其与1F的空间对比度。
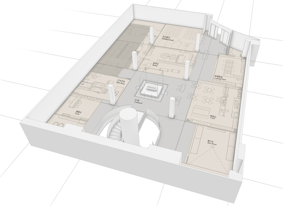
在2F的中心,设计团队介绍了传统的日式庭院概念,并结合现代设计技术为整个2F营造了现代的中庭氛围。正是这一系列的设计技术以自然的方式将传统与现代相结合。此外,在旗舰店中,设计团队还在设计之初就考虑了一些带有时间标记的“物品”,例如松下最经典的历史产品以及从这些产品衍生的“胶囊玩具”。
其他功能(例如“美容”,“餐饮”和“烹饪”)都以此为中心,就像日本传统的市区街道的布局一样。该空间以“院子”为中心,相互连接,并且材料和色调之间的统一性使整个2F变得更丰富而不杂乱。因此,当在2F的任何区域进行商业活动或现场广播时,不同空间之间就不会发生冲突。相反,它会更好地衬托活动,使其更加兴奋和活跃。
生活是一种哲学,舒适美好的生活可以治愈人们并给他们带来希望。设计师不仅要从视觉和空间的角度来考虑,而且要特别注意环境和氛围的创造,以便使杭州松下中心拥有一种生活氛围。空间中的所有小物件和植物都经过布置,以使消费者在这家体验旗舰店中感受到美丽而轻松的生活氛围,旨在传达松下的品牌精神:“让生活更美好,让世界更美好”。
轴测图:
项目空间信息: 空间名称:“Panasonic Center松下电器”体验式旗舰店 空间类型:商业空间、零售空间、品牌旗舰店、体验店 空间地址:杭州市上城区解百城市奥莱B座 设计公司:LDL Design 空间面积:1033平方米 空间主材:镜面不锈钢、不锈钢、瓷砖、木饰面、木地板、大理石、镜面、白色乳胶漆 空间摄影:王怡















