骚粉色为什么不能和举铁碰撞呢?其实你们都错了,粉色是一种可以促使人体分泌荷尔蒙的颜色,而荷尔蒙又可以使人兴奋,老铁们,你们看到沙滩上美女穿的粉色比基尼不激动吗?那你还是男人吗?

粉色的立体门头在夜晚非常醒目,也充满了诱惑力,它散发着一种性感和激情的味道,其实这正是JCS GYM想带给城市人们的感觉。
蔓延的骚粉色在前厅爆炸了,视线所及处满是浪漫的感觉,但你又似乎体会到了硬朗刚性的结构感,三角形态的吧台和地面天花配合营造出了一个G字母的形状,代表了力量和稳定。
利用吧台后面的空间打造了一个半隐蔽的拳击区域,动感富有引导性的穿孔钢板箭头造型把区域分隔,立方造型的框架灯光悬于天花。整体氛围配合音乐的律动,相信可以带给你不同的拳击体验。
竖向分隔的镜面用颜色和层次分开,间隔线性灯条的设计让空间延伸,随着灯光的层层递进,阶梯式的引导视觉进入。力量区的天花设计采用立方框架结构勾勒出了不规则的立体造型,体现了空间的层次和区域划分。
将室外繁华融入有氧区,在一面玻璃之隔的内则是一副动感十足的运动区域,运用了重量的漂浮感为设计理念设计的天花也采用粉色穿孔钢板的造型,两侧墙面的镜面把视觉延伸,在你奔跑的时候也可以倒映出你潇洒的身姿。
这里相比起外面的动感,可能略微安静了一些,灰色的主色调让整个空间凝聚起来,这里可以让你更加专注认真的享受细节运动,呼吸和流汗的感觉。
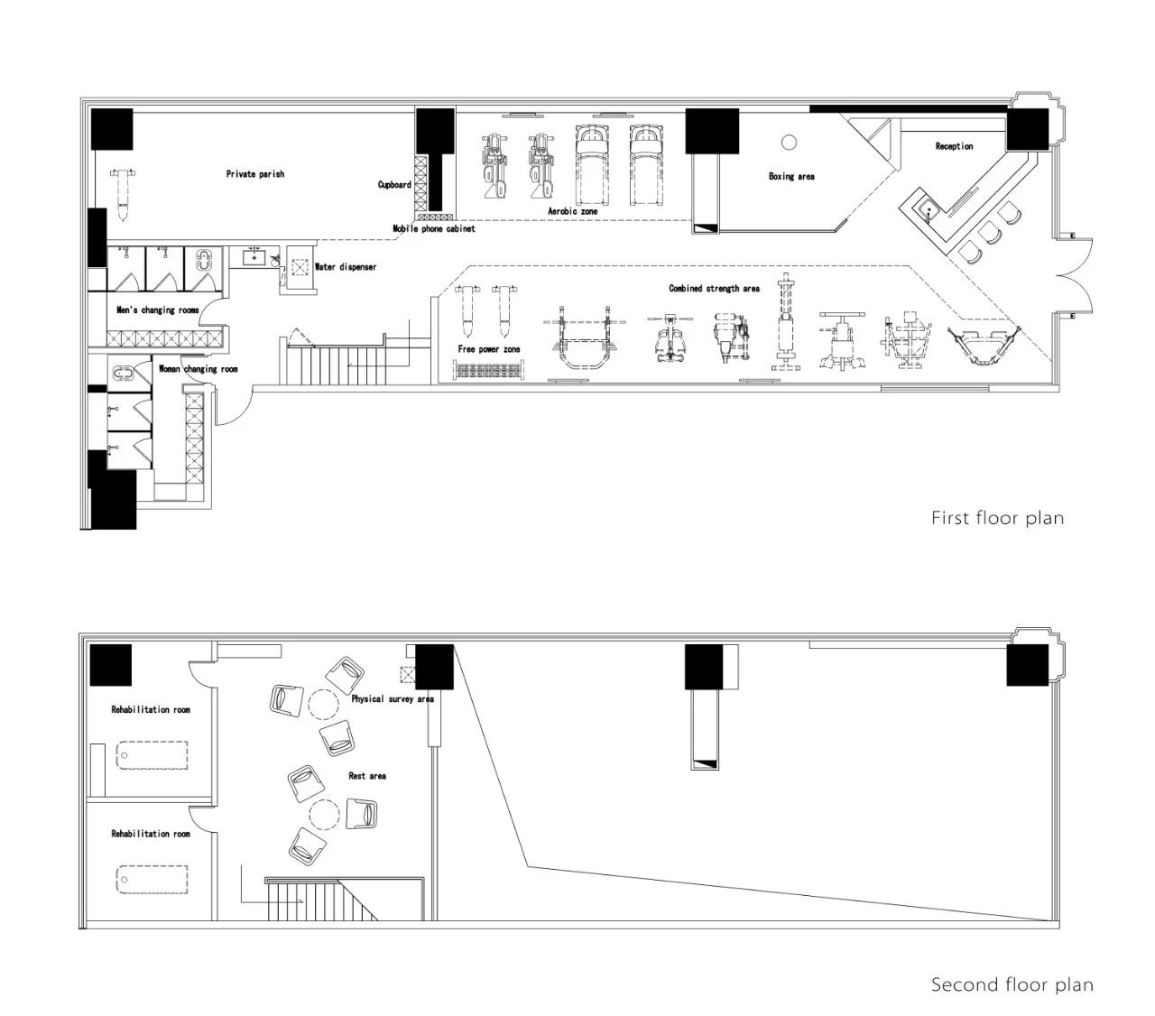
利用有限的空间格局,在二楼搭建出了一个兼休息区、体测区和康复室为一体的空间,休息区主要运用黑色和灰色,墙面的“Insist”告诉了大家这里最需要的是“坚持”。
安静私密的康复室内,在轻音乐中静静体会运动后的拉伸和康复带给你的放松和舒适感。 平面图
项目名称:JCS GYM 地址:四川泸州 面积:300m² 风格:现代 主案设计:张凯锋 项目设计:何超、秦智勇 VI设计:张镜天 摄影师:邓俊涛 [hr] 关于设计
JCS代表了创立这家健身房的三位年轻人,他们有着共同的爱好,共同的梦想,因为健身相识,为了梦想同行。在这里,LOGO的设计将他们联合在一起,组合出了哑铃的图形,力量感的重叠效果,坚实稳固。仔细端倪会发现LOGO内蕴藏了很多与健身相关的图案和符号,即杠铃、哑铃、箭头等,字体的设计立体厚重,延展和运用空间非常充分。
















