哥斯达黎加·Hija de Tigre女装店设计

在哥斯达黎加圣何塞的高端时尚区Escazú,Taller KEN工作室为女装品牌Hija de Ti

在哥斯达黎加圣何塞的高端时尚区Escazú,Taller KEN工作室为女装品牌Hija de Tigre设计了一家面积为450平方米的新门店。工作室不仅翻新了现有建筑物,还增加了全新的混凝土体块,并用颜色对室内外空间进行更新和提升,同时为这家专注于服务女性的商店专门打造了展示装置和家具。Hija de Tigre由一位母亲和两个女儿共同经营,其理念秉承家族女性继承和管理。

现有的建筑物已经涵盖了几个先前扩建的部分。设计团队为之增加了诸如室外电梯和楼梯等全新的元素,并用颜色组织起新旧体块,使建筑看上去彷佛如同一堆紧凑而俏皮的盒子,五光十色,鲜妍亮丽。设计团队清理了一部分外墙,剔除线脚和其他隔断,以获得简洁明晰的外观,此外还利用彩色反光玻璃窗对储藏区进行遮蔽。鲜艳的色彩灵感部分来自于拉丁建筑师路易斯·巴拉干(Luis Barragán)和里卡多·波菲尔(Ricardo Bofill)的创作,它们为环境营造出一种清新的哥斯达黎加式氛围,呼应了品牌千禧一代的客户以及商品本身。

Taller KEN联合创始人兼主持建筑师Inés Guzmán说:“外观是环境的结果。圣何塞郊区之前还是一片农田,直到最近,它才变成房屋、便利商场和购物中心社区组成的封闭式社区。对我们来说,这个项目是一个能使独立建筑‘脱颖而出’的机会,同时赋予周边环境以清新、时尚和靓丽的氛围,突破毫无新意的标准用色。”在室内装饰上面,分层的颜色和纹理不仅增加了空间的深度,并且非正式地划分了功能元素和商品。 “建筑的三层空间让我们有机会在同一家商店内创造出三个微妙的世界,”Guzmán说。一层空间通透明亮,地板由陶瓷碎片铺就而成,主要陈列家居装饰、配件和礼品。

二层专门用于休闲服饰和基础款服装展售,空间由中性色调和手工材料打造,包括柔和的双色几何粉红地板、沙色灰泥墙壁和质地轻软的装饰,如纱帘和深绿色天鹅绒沙发。 彩色纱帘等元素调节空间,帮助空气流通,同时为客人创造出适合自拍或尝试造型的“体验间”。

三层以设计师为导向,空间个性活泼鲜明,可为客户提供特别关照及造型服务。空间的元素更加曲线化和女性化,但色调也更为大胆。”Guzmán说。醒目的黑白色水磨石地板、钢制衣架、黄色和黑色的家具消解了三层商品的正式属性。而定制的深蜜色木工制品在全部楼层都有配备。

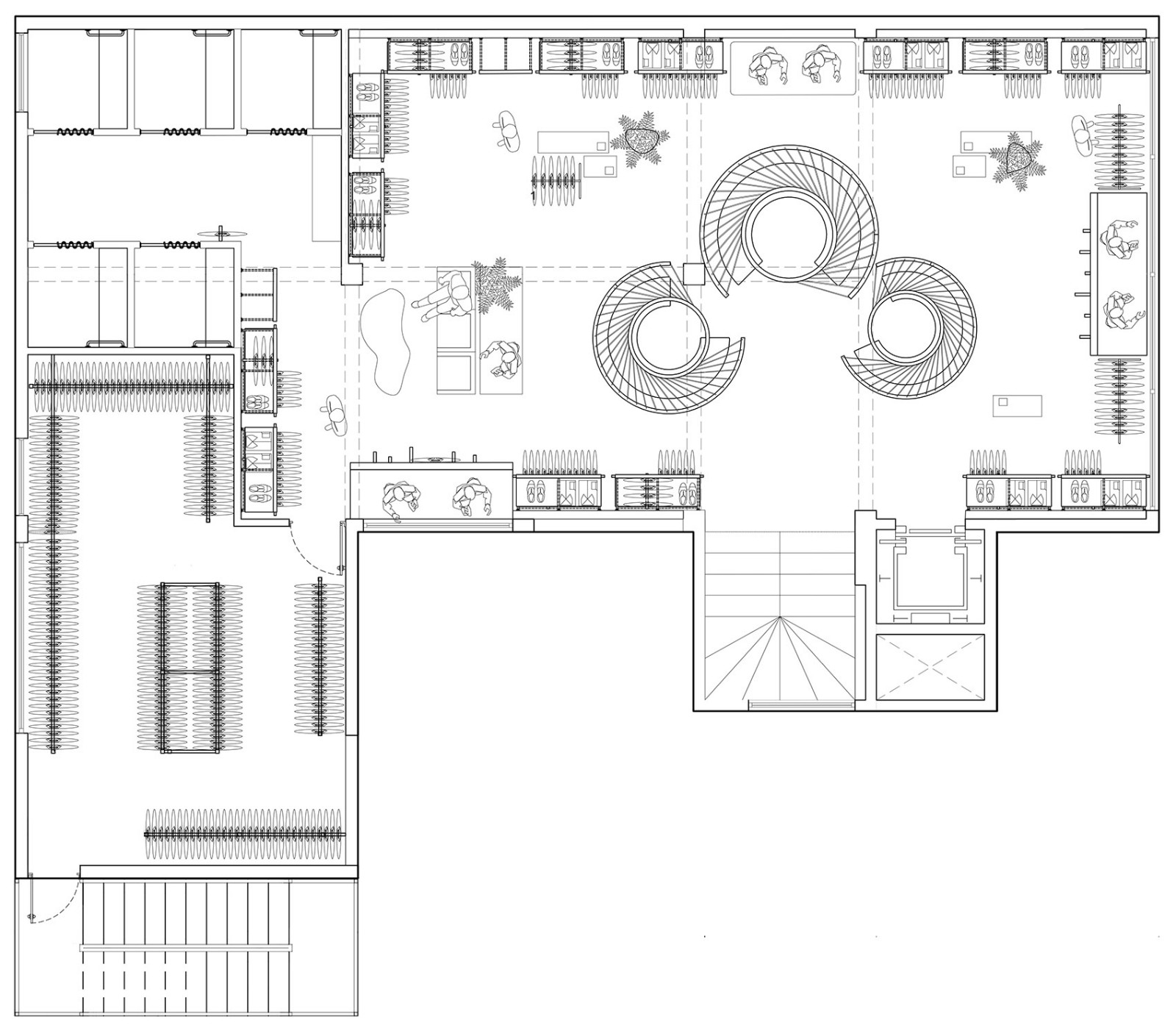
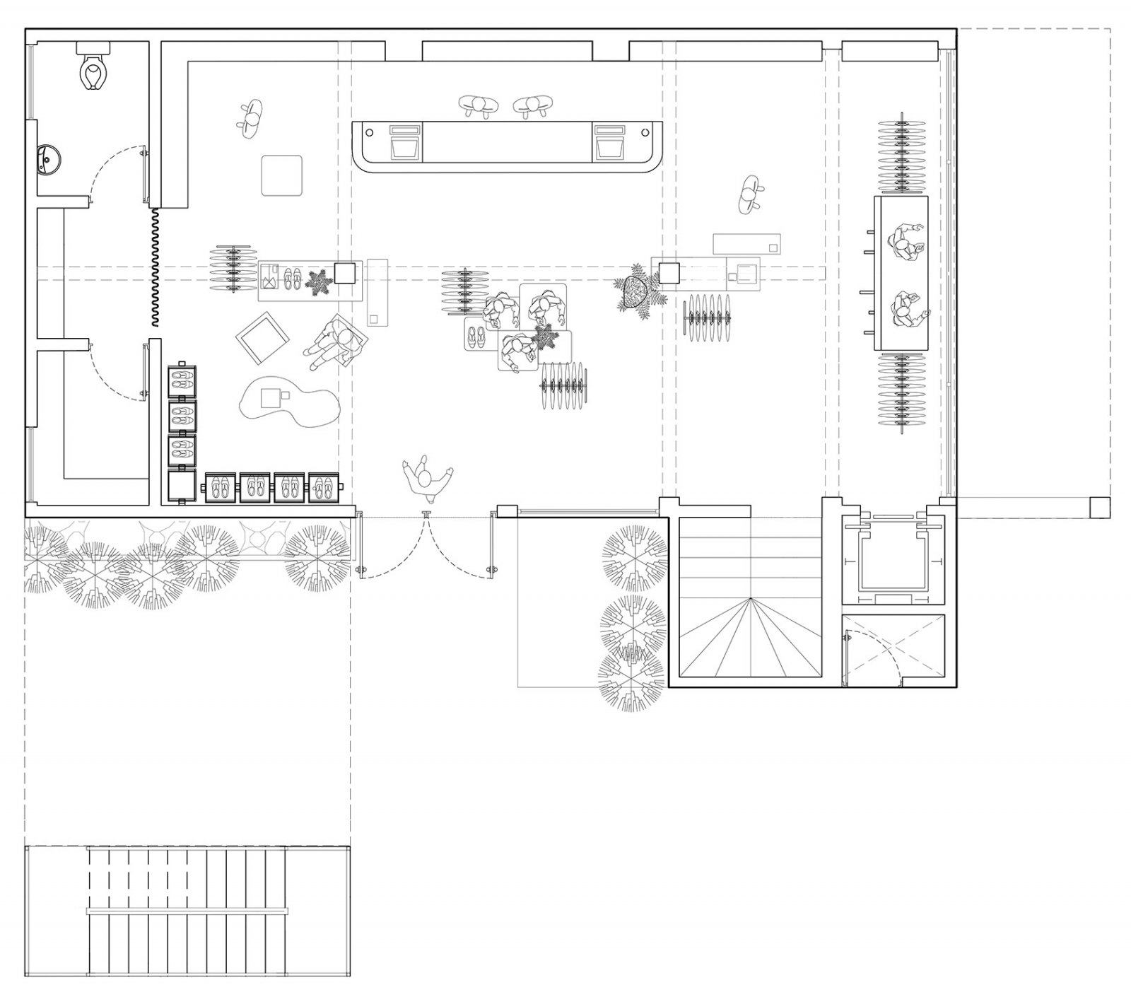
平面图

空间名称:Hija de Tigre女装店 空间类型:商业空间、服装店、专卖店 空间地址:哥斯达黎加 圣何塞 Escazú 设计公司:Taller KEN 空间面积:450平方米 空间主材:水磨石、钢架、玻璃、木材、瓷砖、镜面、涂料 空间摄影:Taller KEN

打开APP阅读更多精彩内容