该项目位于巴塞罗那Horta社区的一栋老建筑内,旨在将原先用作面包房的首层空间改造为一套配备新型能源、具有全新空间布局的实用型复式公寓。项目的成功之处在于为厨房和餐厅所在的下层空间提供了新的入口。楼梯通路为住宅创造了全新的平面布局,使居住者能更好地理解与融入其中。

建筑主要分为两部分,主楼层包含起居室和卧室,而下层则是办公间、厨房及带有露台的饭厅。低层高的公寓中使用了大量的木质壁板,该壁板贯穿整个居住空间,从而形成一道与天花板直接相连的白色楣板。木质壁板以灰褐色调涂刷横跨两层空间,串联起不同的元素和门窗,以一种水平式的景观创造出统一的美感。
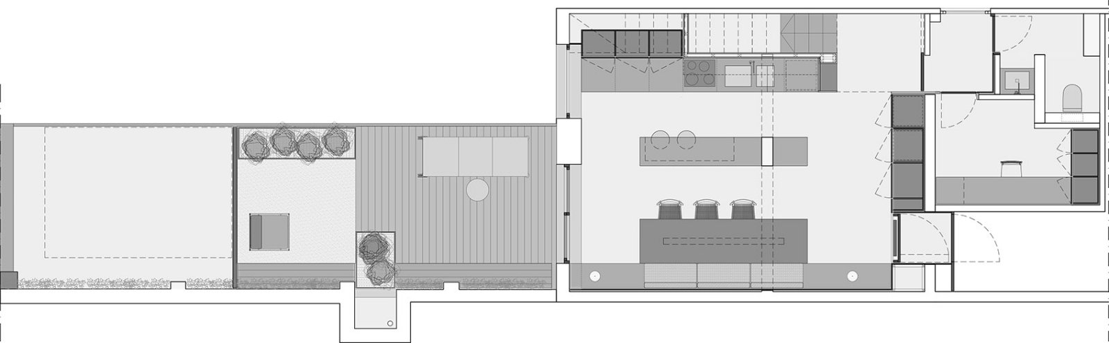
走廊内设有浴室、洗衣房和一间卧室,沿墙壁的搁架用来展示主人珍贵的纪念品及家庭非洲之旅的记录。走廊通向套间,橡木更衣室与房间隔开。在低层,厨房和餐厅与露台相连,露台采用热带Ipe木材装饰,并选择了和室内相同的连续长椅设计,以便提供更多的座位。在该区域,建筑原始的梁架结构显得更加突出,在视觉上与过去关联。
▼主层平面
▼低层平面
主楼层37平方米(室内)32平方米(露台) 下层74.8平方米


















