
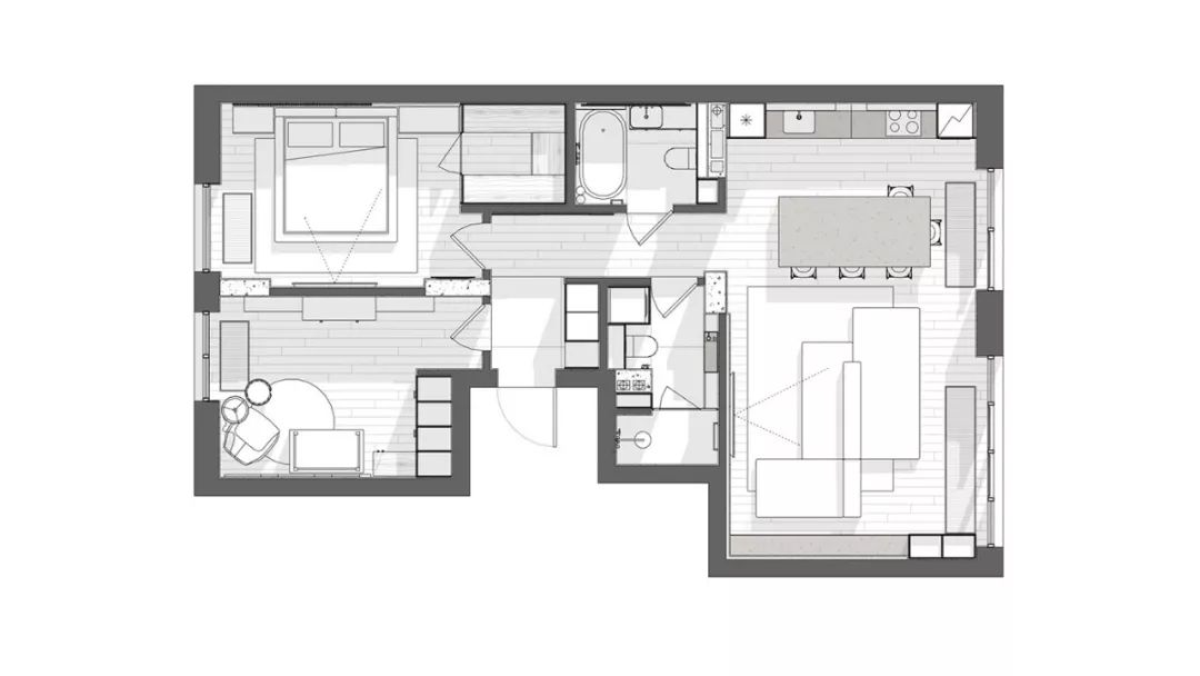
[b]简约空间[/b] N.Team Design新作,这套面积80㎡的住宅,由设计师Ivanna Pavlus、Anna Ilnitskaia共同设计,合理的布局和精致的设计,充满现代感的简约设计看起来就很舒心。 平面设计图▽
入口处的玄关柜设计也很值得借鉴,既不浪费空间,还能够强调隐私感和设计感。
客厅以纯净的白色或木色为底,绿色点缀,各功能区划分分明,又互相交合而成,汇聚一个独具设计感的空间。柔软舒适的布艺沙发,设计师将材料、色彩、灯光及元素进行简化,用简洁的视觉效果营造出时尚前卫的家居氛围。
厨房和客厅做了开放式的设计,大理石纹路和胡桃木收纳柜搭配,互为借景。整洁而富有层次感,材质的纯粹也使得空间更为的简洁和现代。
卫生间内大理石和简洁的墙壁搭配,明暗的变化,通过唯美的规划分割,完美实现功能与美感的结合,盎然有趣。洗手台通过简单的空间分割以及大胆的几何元素演绎,将实用与美观做到了极致。
主卧不同灰度值的过渡演绎,温暖的米色、咖色及棕色的完美交织,配合绿色的醒目点缀,能够透过时尚感官、凝聚源源不断的清新活力,一种兼备时尚而又充满韵味感的现代生活写照由此而生。
卫生间的设计设计师通过大理石和磁砖,既扩大了视觉空间又与整个风格十分搭调。
婴儿的房间融合了淡淡的粉黄色,上方的白色云朵吊灯温暖浪漫,装饰了房间更装饰了小孩的梦。




























