▼开放的室内空间,具有视觉上的穿透性

因在屋里活动时间长,重视亲子关系培养,故决定拿掉多余隔间,将重点放在公共空间的整体功能规划。甫入门可见客厅、游戏区、书桌兼用餐区、开放式厨房集结为一,利用家具将各区块功能性划分出来,不论是在中岛备料、大桌上办公,面向游戏区便于随时追踪孩子动态、对话。而视觉上的穿透性可能造成的杂乱无章则仰赖为女主人量身打造、丝毫不差的收纳柜体解决,使空间在视线上能够保持一致地俐落。 ▼客厅兼餐厅,拱形的玻璃后门直通阳台
▼客厅兼餐厅局部
空间较小的玄关概括了进出门所需配件外还巧妙地藏了一面全身镜,进门右侧规划为儿童游戏区,犹如秘密基地般的拱门造型与爬梯让孩子在其中穿梭自如,平台下方有个可放置婴儿推车、学步车等外出及日常备品的空间,刚好补足玄关收纳机能。墙面开孔让行经的大小面孔仿佛一幅幅独特的挂画,以最真实的样貌呈现。 ▼住宅入口右侧的儿童游戏区,墙面开孔让行经的大小面孔仿佛一幅幅独特的挂画
▼儿童游戏区里的拱门造型与爬梯,犹如秘密基地
溜滑梯采用可收纳式设计,阶梯与斜面精准密合,可毫不费力推拉收起放大整个公共区域的空间,也将女主人对「收纳」的讲究发挥到极致;用来加强隔屏结构的彩色单杠使玩法有更多变化。 ▼儿童游戏区里的滑梯,采用可收纳式设计,阶梯与斜面精准密合
复合式功能大桌面,对内单向抽屉能迅速清空桌面应付办公及用餐需求,笔电手机专用插座保持俐落美观。 ▼餐厅,对内单向抽屉能迅速清空桌面应付办公及用餐需求
▼餐厅,笔电手机专用插座位于桌子的下底面,保持俐落美观
厨房柜体依女主人习惯的作业模式分配,依序为干货区、小家电及崁入式电器;柜体门片皆可完全收纳至两侧缝隙,敞开时也不影响料理时来回奔走的整体动线;通往阳台的后门一并使用门片修饰让整墙风格一致,菱格开孔除了视觉上更活泼外也达到对流通风的效果。 ▼厨房局部
新的格局让女主人不再独自待在小小空间里被理不完的杂务绊住手脚、每天于顾小孩和繁琐的家务间拉扯得焦头烂额,而是优雅自如地领着小小主人对万事赋予行动力、用心参与生活的每一刻。一个空间可以拥有自己的个性、注入一些美感,而最终让每一位成员身处其中时,达到不论心理或生理的自在舒适是我们对顾客需求的一贯回应。
▼主卧室
▼小孩房
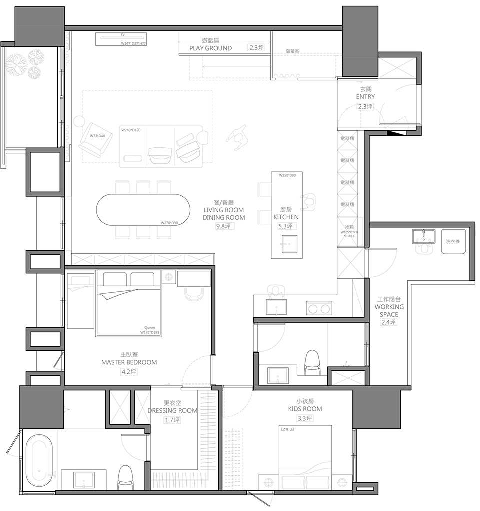
▼平面布置图
室内设计:HAO Design 地址:台湾高雄市 面积:150m²(45坪) 项目年份:2019 项目类型:住宅空间 摄影:Hey!Cheese 主要材料:意大利复古花砖、特殊土质涂料、实木染白、滑梯桦木夹板染色、 杏色实木烤漆厨柜、杜邦仿石纹人造石、MASTER超耐磨木地板

















