户型:二居
风格:混搭风
面积:97㎡
位置:北京市
方式:半包
预算:11万
本案为旧房改造,业主是一对来自北京的年轻夫妻,俩人均从事金融行业,工作忙碌,但却未放弃对生活的追求。
喜欢现代简约风格,同时也倾心于浪漫优雅的轻法风。两人理想中的家是自在放松的,能有舒适的动线和开阔的视野,不要闭塞的传统空间,希望空间可以充满互动感。
结合业主的喜好与生活习惯,设计师以现代简约为空间的基调,色调上以低饱和度的莫兰迪色系为主,加入布艺、皮质、藤编、石膏线等设计元素,打造一个通透又精致的生活空间。

▲原始户型图
存在问题及业主需求:
1.卫生间淋浴区域较局促;
2.主卧衣帽间宽仅86cm,做了柜体,人进不去;不做柜子,又太难利用;
3.以后会有小朋友的计划,父母偶住,希望保留两室格局;
4.两人衣物较多,希望在保证空间开阔的情况下,储物空间最大化,将其“藏于无形”;
5.在满足居住需求的同时,希望家人可以更多地共处与陪伴。
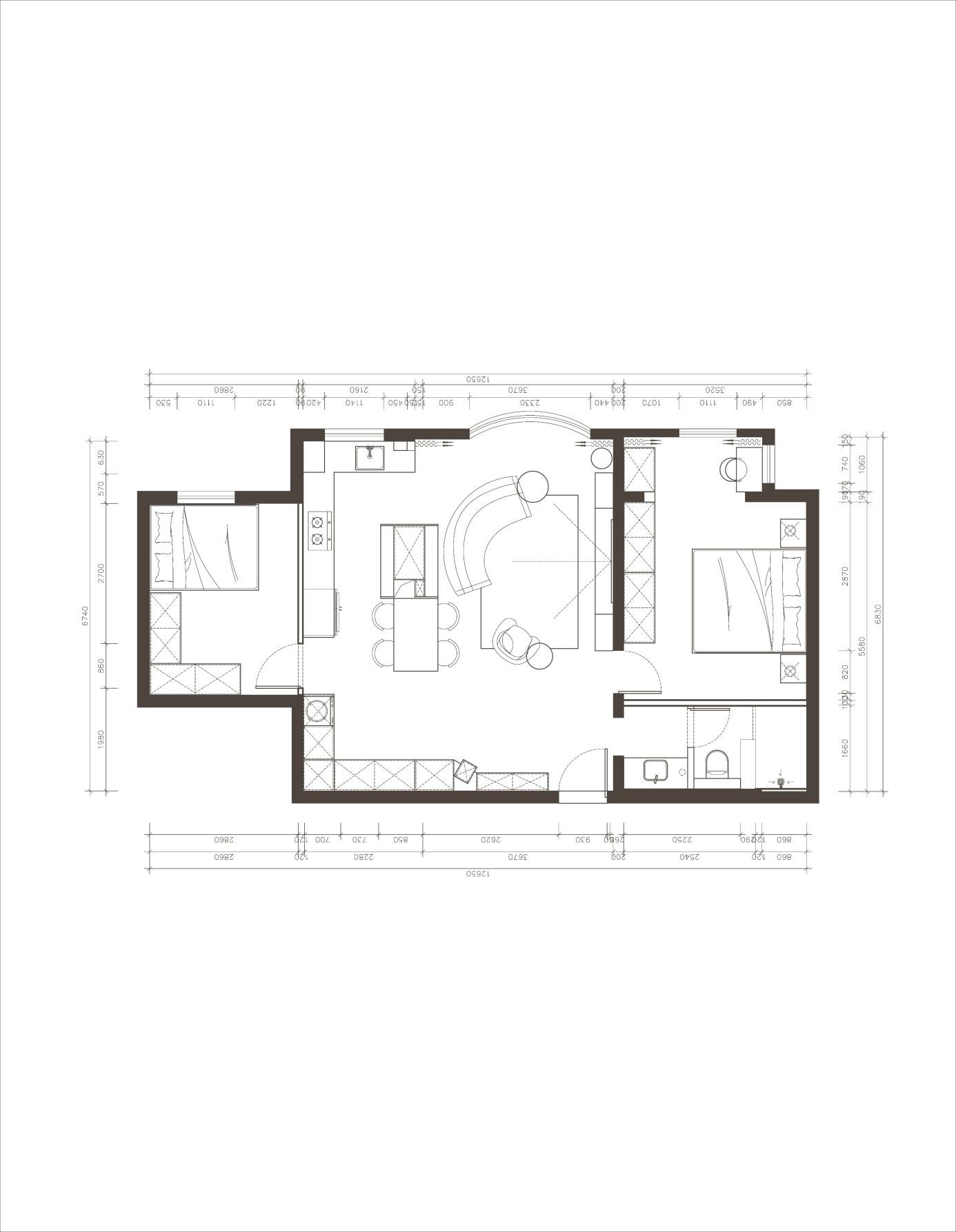
▲平面布局图
改造重点:
1.进门做L型一体式柜体,满足入户收纳 + 客厅空间装饰展示 + 杂物收纳等多重需求;
2.厨房完全打开,设计LDK式客餐厨一体化空间;
3.主卧床尾增设满墙衣柜,满足收纳需求;
4.原主卧鸡肋小衣帽间并入卫生间,并做三分离式卫浴。
入户
▲入户改造前
▲入户改造后
俩人的鞋子较多,在设计之初,就明确表示,玄关需要满足150双鞋子的收纳需求。
在入户柜体的设计上,我们格外注重实用性,L型超大收纳柜从入户门一直延伸至次卧门,依次是鞋柜、收纳展示区、换季收纳区、挂衣区、冰箱区,满足不同收纳需求,将物品尽量“藏”起来,保证视觉上的清爽。
拐角与冰箱衔接处,放置行李箱等不常用物品。
考虑到定制柜体的深度,以及客厅简约的设计风格等,特意挑选超薄冰箱博世(BOSCH 灰阶·纤薄嵌入),整机的深度只有636mm,几乎做到完全嵌入。
另外由于这款冰箱是底部散热,所以侧面最少只需要留下2cm的空隙即可,做到左右和前端几乎齐平,保证简约的视觉效果。
灰阶抗菌系列的金属外观,也和整屋的简约风格更搭。
双开门502升,满足一家人使用完全没有问题。
9月27日京东有个冰洗超级品类日活动,9月30日超薄冰箱节活动,以旧换新至高立减1500元,白条至高24期免息,有需要的朋友可以关注。
客厅
▲客厅改造前后对比图
▲后:男业主 左:设计师 右:女业主
原客厅还算方正,但整体中规中矩,而且也缺乏家人及区域间的互动。
以灵活有趣、开阔实用为出发点,将厨房完全打开后,打造开放LDK式客餐厨一体化设计。 空间围绕增设的岛台+餐桌+沙发,形成一个高效、有趣的回游动线,日常生活也围绕该动线延展开来。
定制的大尺寸edra云朵沙发简洁大方,丝绒质感和蓬松的羽绒填充,窝在沙发上仿佛置身云朵里,放松自在。
波浪全身镜增加设计感和空间感的同时,也让起到视觉延伸的作用。
柔软的棋盘格羊毛地毯营造轻松、有趣的视觉感,也让空间整体色调更好地融合在一起。
竖百叶帘对于热爱生活的业主两人来说简直就是福音,铺洒而来的光束朦胧清透,颜值也很在线。
电视是为偶住的老人准备的,空闲时两人更喜欢窝在沙发里,泡上一杯咖啡,打开隐藏式幕布,感受家庭式影院的惬意。
茶几特意选了轻便易挪动的款式,方便女主人在家里随时练习瑜伽等。
极简电视收纳柜与电子壁炉相结合,理性与感性的碰撞,形成富有张力的空间形态,也为空间注入活力与热性。
相较于边柜,铁艺小推车更加轻便、实用,可展示、可收纳,可随业主不同需求随意挪动。
厨房
▲厨房改造前
▲厨房改造后
厨房一侧为烟道,无法拆除也不能移动,规划了柱体+中岛台一体的设计,整个厨餐区形成“U型”结构,大大扩大了操作区域。
中岛台高950mm,长1420,宽900mm,搭配高脚凳,适用场景非常灵活,无论在这里简餐、工作、小酌都很惬意。
开放式厨房延续了玄关区域的暖白柜体,次卧采用隐形门设计,空间视觉更加完整、开阔。
这里借助橱柜空间,内嵌了西门子洗烘套装WM12P2602W+WT47W5601W,一方面保证整体效果的整洁舒适。
另外即洗即烘、免晾晒,加上边烘边除菌的功能,能放心解放卧室的阳台空间,让我们得以将阳台设计成优雅的法式休闲空间。
同时,考虑到西门子这款烘干机,在干衣过程中能将衣服上的绒毛、小碎屑和宠物毛毛等强效收集,也非常适合有宠物的家庭,在此简单推荐种草。
9月15日京东家电有个分区洗护洗衣机节活动,京东搜“皆大欢洗”,9月14日晚8点开抢,60天不满意可退,更可抢1000减915元大额券。有需要的业主朋友,可以关注。
餐厅
与中岛台并列布置了餐桌,轻松加强居家时光的互动性。一边烹饪一边与客餐厅的家人朋友聊天,让下厨瞬间变得惬意又美好。
临近餐桌的一侧,柱子包管还特意安排了插座,方便小家电在这里使用。
悬浮实木餐桌,亚克力的桌腿透光率到92%,营造餐桌悬浮在空中的视觉感,搭配三把不同款的餐椅,显得别致惬意。
▲主卧改造前后对比图
视觉上做减法,细节上做加法。主卧延续了整体极简的视觉感,又兼顾了轻法式的优雅的格调。
拆除原鸡肋小衣帽间后,为了保证充足的储物空间,在床位增设满墙收纳柜。 柜体下方根据屋主习惯,还特意做了几组抽屉,也大大提升了下方空间的利用率;衣柜内部以挂衣区为主,方便拿取衣物。
收纳柜由室内延伸至阳台,空间更具延伸性和整体感。
阳台做了弧形门洞设计,很好地创造出了视觉分区,也给这里增添一丝柔美感与结构感。
虽然家里有烘干机,但根据业主生活习惯,在这里还是布置了升降晾衣架,满足偶尔的晾晒需求。
不对称的床头灯、床头柜、摆件……各种个性化的元素,彰显着业主的独特品味。
次卧
次卧的入口临近厨房,考虑到卧室的隐私性及美观度,次卧做了隐形门设计。
▲次卧改造前后对比
次卧空间相对较小,目前兼做衣帽间及客房,将来留给宝宝。
L型衣柜局部镂空满足床头柜功能,相较于传统床头柜,更节省空间,同时满足更多收纳能力。
卫生间
▲卫生间改造前
▲卫生间改造后
面积扩大后,卫生间呈长条形,将洗手台独立,实现干湿分离,提升空间利用率;且洗手台位置就位于入户门右侧,回家清洁消毒也非常便捷。
洗手台侧面,半墙玻璃砖隔断的加入,补充湿区自然采光,也为空间增添了几分趣味性和设计感。






















